Bembridge, Isle of Wight
SP

Bembridge, Isle of Wight

By Spence Willard

£ 475,000

Reviews

3 out of 5 stars

Spence Willard says ..

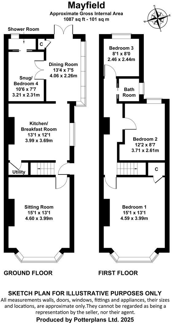
A charming period home with character and modern touches offering four bedrooms including a ground floor ensuite, off-road parking and private gardens.

Property Oracle says ..

This is a four-bedroom semi-detached house in Bembridge, Isle of Wight. The property appears to be in good condition, with a modern kitchen and bathrooms. It also benefits from a garden with a shed. The location is desirable, being close to local schools and amenities. The asking price of £475,000 seems reasonable compared to other properties in the area.

Therefore, we give this property 7 / 10. *Disclaimer: This is our option and does constitute a recommendation or financial advice. Do your own research. *

Price
8
Condition
7
Location
7
Land
6
Bedrooms
4
Bathrooms
2

The heatmap indicates the level of crime in the area. The color of the heatmap indicates the crime severity and recency.

Metrics Year-on-Year

Average area value
540,000.00 £
Decreased by 12.56 %
from 617,585.00 £
Average area rental value
1,035.00 £/mo
Decreased by 19.20 %
from 1,281.00 £/mo
Est rental Yield
2.30 %
Decreased by 7.63 %
from 2.49 %
Crime Rate
29.00 %
Unchanged by 0.00 %
from 29.00 %

Agent Activity

  • Spence Willard created the listing.

Nearby Schools

NameTypeOfstedDistance
Bembridge Church Of England Primary SchoolVoluntary Controlled SchoolGood0.70 KM
St Helens Primary SchoolCommunity SchoolGood2.80 KM
Nettlestone Primary SchoolCommunity SchoolGood4.25 KM
Brading Church Of England Controlled Primary SchoolVoluntary Controlled SchoolGood6.29 KM
Oakfield Church Of England Aided Primary School, RydeVoluntary Aided SchoolRequires improvement7.52 KM

Images

1.jpg 11.jpg 8.jpg 16.jpg 9.jpg 10.jpg 3.jpg 4.jpg 2.jpg 18.jpg 19.jpg 17.jpg 5.jpg 6.jpg 7.jpg 15.jpg 13.jpg 12.jpg 14.jpg 26.jpg 20.jpg 21.jpg 22.jpg 23.jpg 24.jpg 25.jpg 27.jpg 28.jpg

Nearby Streets

NameAverage PriceAverage SqftDistance
Turnstone Drive £ 000.00 KM
St Helen's Beach Promenade £ 285,00000.00 KM
The Duver £ 000.00 KM
Fishermans Walk £ 000.00 KM

Nearby Transport

NameNLCTLCDistance
Brading5530BDN5.65 KM
Smallbrook Junction5494SAB7.65 KM
Ryde St Johns Road5543RYR8.48 KM
Sandown5525SAN8.89 KM
Ryde Esplanade5542RYD9.24 KM

Nearby Listings

AddressPriceTypeScoreDistance
Bembridge, Isle of Wight £ 475,000BUY7 / 100.00 KM
Dennett Road, Bembridge, Isle of Wight £ 325,000BUY7 / 100.02 KM
Dennett Road, Bembridge, Isle of Wight, PO35 5XD £ 450,000BUYUnknown0.03 KM
Bembridge, Isle of Wight £ 495,000BUY7 / 100.03 KM
Dennett Road, Bembridge, Isle of Wight, PO35 5XD £ 350,000BUY6 / 100.04 KM

Nearby Properties

AddressPriceDistance
Elsinore £ 140,0000.01 KM
Mayfield £ 320,0000.01 KM
Fernlee £ 299,9500.01 KM
Belmont £ 300,0000.02 KM
Ashley £ 200,0000.02 KM