Cavendish Road, London
WI

Cavendish Road, London

By Wilkinson Byrne

£ 700,000

Reviews

3 out of 5 stars

Wilkinson Byrne says ..

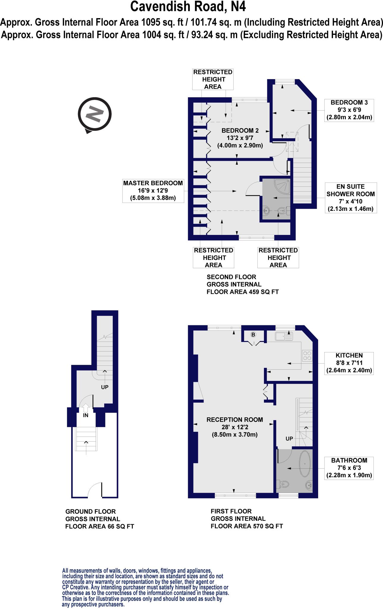
A three bedroom Victorian maisonette located on a quiet and sought-after residential road on the desirable 'Harringay Ladder'. Occupying over 1,095 Sq Ft of living space across two floors of an elegant end-of-terrace period property. Benefits include a spacious reception room, complete with high ...

Property Oracle says ..

Therefore, we give this property 6 / 10. *Disclaimer: This is our option and does constitute a recommendation or financial advice. Do your own research. *

Price
6
Condition
7
Location
8
Land
3
Bedrooms
3
Bathrooms
2
Sqft (est)
897.80

The heatmap indicates the level of crime in the area. The color of the heatmap indicates the crime severity and recency.

Metrics Year-on-Year

Average area value
889,615.00 £
Increased by 23.91 %
from 717,933.00 £
Est sale value
538,680.00 £
Decreased by 7.55 %
from 582,672.20 £
Average area rental value
2,306.00 £/mo
Increased by 18.56 %
from 1,945.00 £/mo
Est letting value
897.80 £/mo
Unchanged by 0.00 %
from 897.80 £/mo
Est rental Yield
3.11 %
Decreased by 4.31 %
from 3.25 %
Crime Rate
5.00 %
Unchanged by 0.00 %
from 5.00 %

Agent Activity

  • Wilkinson Byrne created the listing.

Nearby Schools

NameTypeOfstedDistance
South Harringay Infant SchoolCommunity SchoolGood0.26 KM
South Harringay Junior SchoolCommunity SchoolGood0.28 KM
The Ladder Children'S CentreChildren's Centre0.34 KM
Woodlands Park Nursery School & Children'S CentreChildren's Centre0.83 KM
North Harringay Primary SchoolFoundation SchoolGood0.89 KM

Images

100320254_WWHRS_F... 100320254_WWHRS_F... 100320254_WWHRS_F... 100320254_WWHRS_F... 100320254_WWHRS_F... 100320254_WWHRS_F... 100320254_WWHRS_F... 100320254_WWHRS_F... 100320254_WWHRS_F... 100320254_WWHRS_F... 100320254_WWHRS_F... 100320254_WWHRS_F... 100320254_WWHRS_F... 100320254_WWHRS_F... 100320254_WWHRS_F... 100320254_WWHRS_F... 100320254_WWHRS_F... 100320254_WWHRS_F... 100320254_WWHRS_F... 100320254_WWHRS_F... 100320254_WWHRS_F... 100320254_WWHRS_F... 100320254_WWHRS_F...

Nearby Streets

NameAverage PriceAverage SqftDistance
St Ann's Road £ 000.00 KM
Devon Gardens £ 000.00 KM
Portland Gardens £ 000.00 KM
Grafton Gardens £ 000.00 KM
Endymion Road £ 000.00 KM

Nearby Transport

NameNLCTLCDistance
Harringay6012HGY0.30 KM
Harringay Green Lanes7401HRY0.52 KM
Hornsey6015HRN1.37 KM
Finsbury Park6119FPK1.62 KM
Crouch Hill7406CRH1.79 KM

Nearby Listings

AddressPriceTypeScoreDistance
Cavendish Road, London £ 700,000BUY6 / 100.00 KM
Cavendish Road, London, N4 £ 350,000BUY7 / 100.01 KM
Cavendish Road, London, N4 £ 700,000BUY5 / 100.02 KM
Cavendish Road, London, N4 £ 385,000BUY6 / 100.05 KM
Burgoyne Road, London, N4 £ 1,000,000BUY6 / 100.06 KM

Nearby Properties

AddressPriceDistance
26 Cavendish Road £ 1,123,0000.00 KM
46 Cavendish Road £ 864,0000.00 KM
28 Cavendish Road £ 485,0000.00 KM
18b Cavendish Road £ 226,0000.00 KM
14a Cavendish Road £ 162,0000.00 KM