MA
St Stephens Gardens, Notting Hill
By Marsh & Parsons
£ 995,000
Reviews
3 out of 5 stars
Marsh & Parsons says ..
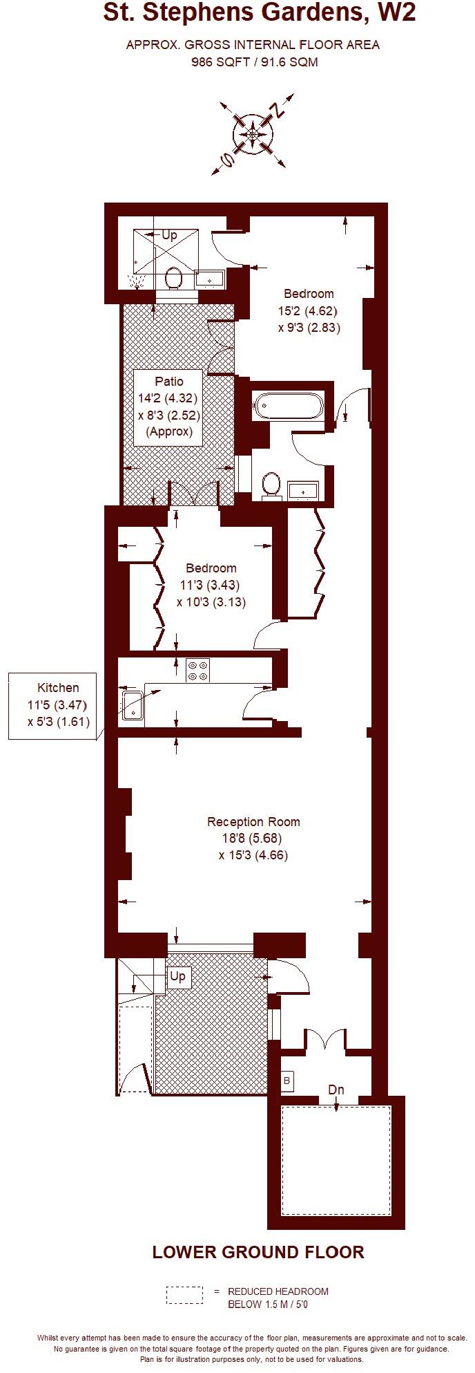
Benefiting from its own private entrance, this lovely lateral property is presented in excellent decorative order throughout. The accommodation features a generous, southerly reception/dining room with excellent entertaining space, a well-appointed contemporary designed separate kitchen, large pr...
Property Oracle says ..
Therefore, we give this property 7 / 10. *Disclaimer: This is our option and does constitute a recommendation or financial advice. Do your own research. *
- Price
- 9
- Condition
- 8
- Location
- 9
- Land
- 5
- Bedrooms
- 2
- Bathrooms
- 2
- Sqft (est)
- 986.00
The heatmap indicates the level of crime in the area. The color of the heatmap indicates the crime severity and recency.
Metrics Year-on-Year
- Average area value
- 1,797,217.00 £Increased by 26.51 %
- Est sale value
- 1,726,486.00 £Increased by 40.64 %
- Average area rental value
- 3,101.00 £/moIncreased by 21.61 %
- Est letting value
- 2,958.00 £/moIncreased by 50.00 %
- Est rental Yield
- 2.07 %Decreased by 3.72 %
- Crime Rate
- 6.00 %Unchanged by 0.00 %
from 1,420,594.00 £
from 1,227,570.00 £
from 2,550.00 £/mo
from 1,972.00 £/mo
from 2.15 %
from 6.00 %
Agent Activity
Marsh & Parsons created the listing.
Nearby Schools
| Name | Type | Ofsted | Distance |
|---|---|---|---|
| Bayswater Children'S Centre | Children's Centre Linked Site | 0.07 KM | |
| St Stephen'S Cofe Primary School | Voluntary Aided School | Good | 0.13 KM |
| St. Mary Of The Angels Catholic Primary School | Voluntary Aided School | Good | 0.13 KM |
| Wetherby Preparatory School | Other Independent School | 0.56 KM | |
| Westminster Academy | Academy Sponsor Led | Outstanding | 0.56 KM |
Images
Nearby Streets
| Name | Average Price | Average Sqft | Distance |
|---|---|---|---|
| Caradoc Close | £ 850,000 | 0 | 0.00 KM |
| Needham Road | £ 0 | 0 | 0.00 KM |
| Woodfield Road | £ 0 | 0 | 0.00 KM |
| Ledbury Mews West | £ 0 | 0 | 0.00 KM |
| Chippenham Mews | £ 800,000 | 0 | 0.00 KM |
Nearby Transport
| Name | NLC | TLC | Distance |
|---|---|---|---|
| Queens Park (London) | 1419 | QPW | 1.95 KM |
| Kilburn High Road | 1415 | KBN | 2.16 KM |
| Paddington | 3087 | PAD | 2.30 KM |
| Shepherd'S Bush | 9587 | SPB | 2.73 KM |
| Kensington (Olympia) | 3092 | KPA | 2.73 KM |
Nearby Listings
| Address | Price | Type | Score | Distance |
|---|---|---|---|---|
| St Stephens Gardens, Notting Hill | £ 995,000 | BUY | 7 / 10 | 0.00 KM |
| St. Stephens Gardens, Notting Hill, W2 | £ 1,750,000 | BUY | 6 / 10 | 0.00 KM |
| St. Stephens Gardens, London, W2 | £ 1,500,000 | BUY | 7 / 10 | 0.00 KM |
| St. Stephens Gardens, London, W2 | £ 575,000 | BUY | 7 / 10 | 0.00 KM |
| St. Stephens Gardens, London, W2 | £ 575,000 | BUY | 6 / 10 | 0.00 KM |
Nearby Properties
| Address | Price | Distance |
|---|---|---|
| 46 St Stephens Gardens | £ 490,000 | 0.01 KM |
| 42 St Stephens Gardens | £ 189,950 | 0.01 KM |
| 28 Shrewsbury Mews | £ 155,000 | 0.04 KM |
| 15 Shrewsbury Mews | £ 950,000 | 0.04 KM |
| 18 Shrewsbury Mews | £ 885,000 | 0.04 KM |