Starkings & Watson says ..
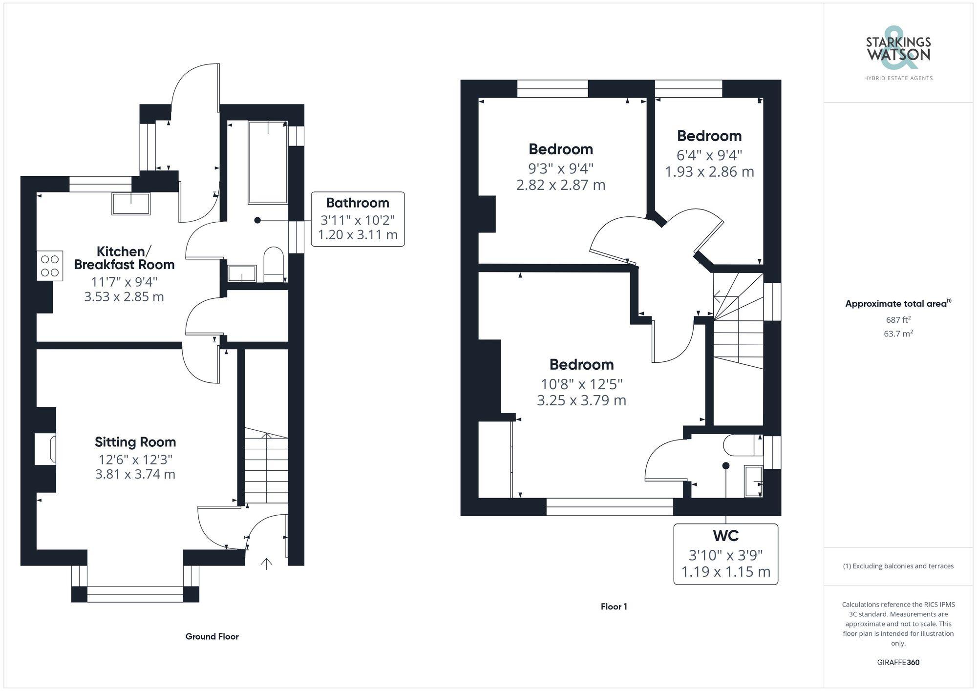
Located in a SOUGHT-AFTER LOCATION, within close proximity to the vibrant city centre, this stunning SEMI-DETACHED HOUSE offers an UPDATED & MODERNISED interior, with a spacious feel throughout. The HALLWAY ENTRANCE welcomes you with stairs rising to the first floor, leading to a charming 12' BAY...
Property Oracle says ..
Therefore, we give this property 7 / 10. *Disclaimer: This is our option and does constitute a recommendation or financial advice. Do your own research. *
- Price
- 6
- Condition
- 8
- Location
- 7
- Land
- 7
- Bedrooms
- 3
- Bathrooms
- 1
- Sqft (est)
- 595.35
The heatmap indicates the level of crime in the area. The color of the heatmap indicates the crime severity and recency.
Metrics Year-on-Year
- Average area value
- 226,667.00 £Decreased by 28.04 %
- Est sale value
- 201,823.65 £Increased by 12.25 %
- Average area rental value
- 1,050.00 £/moDecreased by 20.27 %
- Est letting value
- 595.35 £/moUnchanged by 0.00 %
- Est rental Yield
- 5.56 %Increased by 10.76 %
- Crime Rate
- 8.00 %Unchanged by 0.00 %
from 314,977.00 £
from 179,795.70 £
from 1,317.00 £/mo
from 595.35 £/mo
from 5.02 %
from 8.00 %
Agent Activity
Starkings & Watson created the listing.
Nearby Schools
| Name | Type | Ofsted | Distance |
|---|---|---|---|
| Thorpe St Andrew School And Sixth Form | Academy Converter | 0.86 KM | |
| Hillside Avenue Primary And Nursery School, Thorpe | Academy Converter | Good | 0.98 KM |
| St William'S Primary School | Community School | Good | 1.17 KM |
| Dussindale Children'S Centre | Children's Centre | 1.27 KM | |
| Dussindale Primary School | Academy Converter | Good | 1.76 KM |
Images
Nearby Streets
| Name | Average Price | Average Sqft | Distance |
|---|---|---|---|
| Witard Road | £ 0 | 0 | 0.00 KM |
| Hawthorn Drive | £ 132,813 | 0 | 0.00 KM |
| Sycamore Avenue | £ 0 | 0 | 0.00 KM |
| Primrose Court | £ 0 | 0 | 0.00 KM |
| Willow Gardens | £ 0 | 0 | 0.00 KM |
Nearby Transport
| Name | NLC | TLC | Distance |
|---|---|---|---|
| Norwich | 7309 | NRW | 4.73 KM |
| Salhouse | 7318 | SAH | 6.35 KM |
| Brundall Gardens | 7006 | BGA | 7.93 KM |
Nearby Listings
| Address | Price | Type | Score | Distance |
|---|---|---|---|---|
| Spinney Road, Norwich | £ 300,000 | BUY | 7 / 10 | 0.00 KM |
| South Hill Close, Thorpe St. Andrew, Norwich, Norfolk, NR7 | £ 350,000 | BUY | 7 / 10 | 0.08 KM |
| South Hill Close, Norwich, Norfolk, NR7 | £ 340,000 | BUY | 7 / 10 | 0.11 KM |
| South Hill Close, Norwich, Norfolk | £ 350,000 | BUY | 7 / 10 | 0.12 KM |
| Janet Smith Close, Norwich, Norfolk, NR7 | £ 280,000 | BUY | 7 / 10 | 0.16 KM |
Nearby Properties
| Address | Price | Distance |
|---|---|---|
| 29 Spinney Road | £ 210,000 | 0.04 KM |
| 39 Spinney Road | £ 280,000 | 0.04 KM |
| 42 Spinney Road | £ 258,000 | 0.04 KM |
| 38 Spinney Road | £ 146,500 | 0.04 KM |
| 35 Spinney Road | £ 209,000 | 0.04 KM |