Sargeants says ..
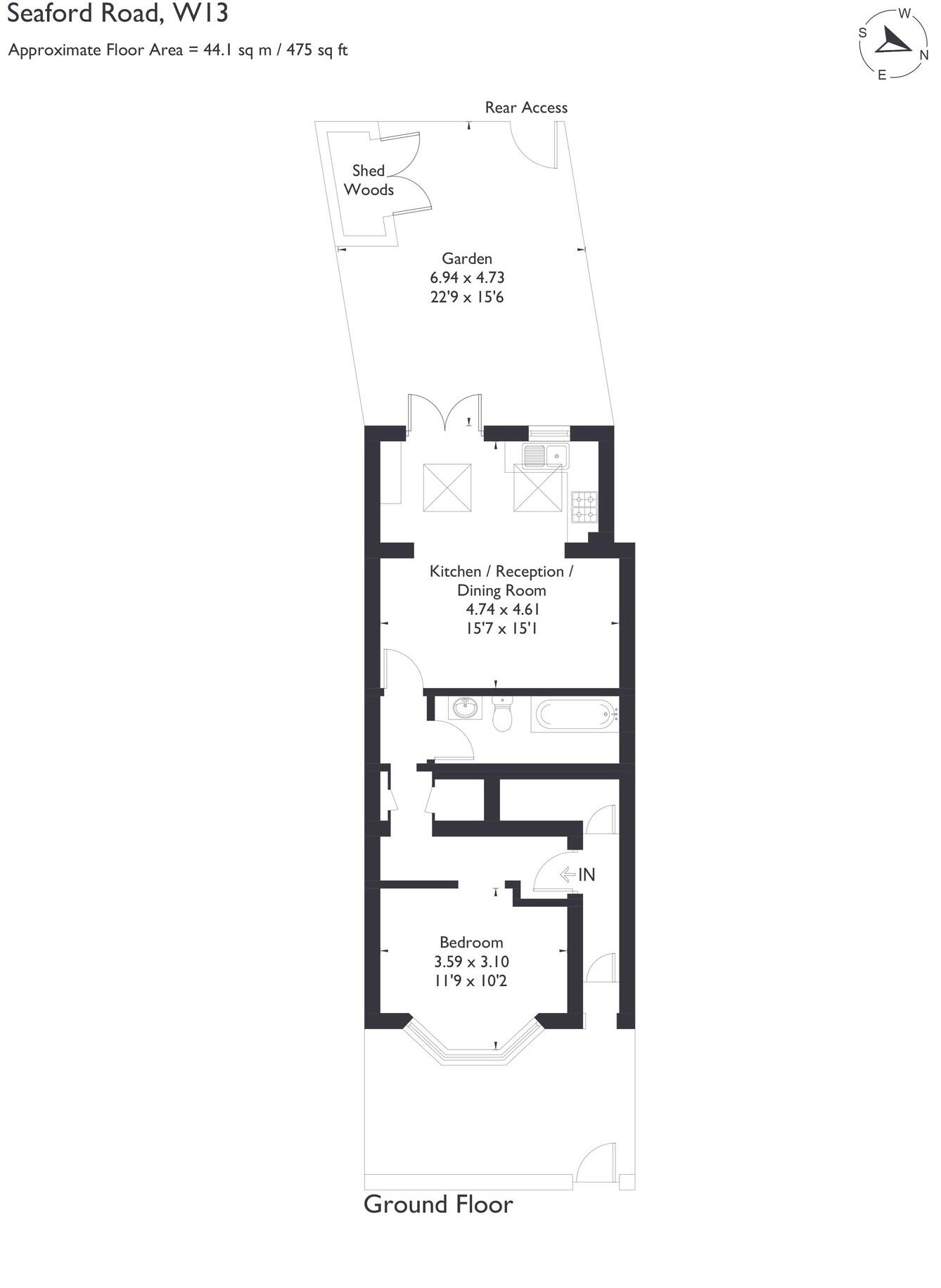
Welcome to this one bedroom, one bathroom ground floor flat, ideally situated in a highly sought-after location. At the front of the property, you’ll find a spacious double bedroom, complemented by a well-proportioned bathroom. Toward the rear, the home opens up into a generous reception...
Property Oracle says ..
This property is a one-bedroom flat located on Seaford Road in West Ealing, W13. The area benefits from relatively good transport links, with West Ealing station being approximately 0.74km away, providing access to TfL Rail services. Several primary schools with good Ofsted ratings are within a reasonable distance, making it potentially attractive to families. However, the property itself is relatively small at 110.82 sqft, and while it includes a small garden, the overall plot size is modest at 475 sqft. The list price of £450,000 is significantly below the average price for the area (£736,069), but it is important to note that average sqft and price per sqft data is not available for this property type. The condition of the property appears to be good, with a modern kitchen and bathroom, although the images do not show the whole property. Further investigation would be needed to fully assess the property’s condition and value for money.
Therefore, we give this property 6 / 10. *Disclaimer: This is our option and does constitute a recommendation or financial advice. Do your own research. *
- Price
- 6
- Condition
- 8
- Location
- 7
- Land
- 4
- Bedrooms
- 1
- Bathrooms
- 1
- Sqft (est)
- 110.82
- Lot (est)
- 475.00
The heatmap indicates the level of crime in the area. The color of the heatmap indicates the crime severity and recency.
Metrics Year-on-Year
- Average area value
- 811,000.00 £Increased by 5.83 %
- Est sale value
- 56,074.92 £Decreased by 24.59 %
- Average area rental value
- 2,084.00 £/moDecreased by 2.53 %
- Est letting value
- 110.82 £/moUnchanged by 0.00 %
- Est rental Yield
- 3.08 %Decreased by 8.06 %
- Crime Rate
- 6.00 %Unchanged by 0.00 %
Agent Activity
Sargeants created the listing.
Nearby Schools
| Name | Type | Ofsted | Distance |
|---|---|---|---|
| Seva Special School | Other Independent Special School | 0.51 KM | |
| Fielding Primary School | Community School | Outstanding | 0.65 KM |
| Insights Independent School | Other Independent Special School | Good | 0.65 KM |
| St John'S Primary School | Community School | Good | 0.69 KM |
| Ealing Alternative Provision | Pupil Referral Unit | Good | 0.71 KM |
Images
Nearby Streets
| Name | Average Price | Average Sqft | Distance |
|---|---|---|---|
| Burns Road | £ 0 | 0 | 0.00 KM |
| Dean Villas | £ 0 | 0 | 0.00 KM |
| Dane Road | £ 575,000 | 0 | 0.00 KM |
| Mayo Court | £ 739,950 | 0 | 0.00 KM |
| Sutherland Avenue | £ 484,950 | 0 | 0.00 KM |
Nearby Transport
| Name | NLC | TLC | Distance |
|---|---|---|---|
| West Ealing | 3188 | WEA | 0.74 KM |
| Drayton Green | 3099 | DRG | 1.52 KM |
| Hanwell | 3191 | HAN | 2.06 KM |
| Castle Bar Park | 3098 | CBP | 2.16 KM |
| Ealing Broadway | 3190 | EAL | 2.27 KM |
Nearby Listings
| Address | Price | Type | Score | Distance |
|---|---|---|---|---|
| Seaford Road, West Ealing, W13 | £ 450,000 | BUY | 6 / 10 | 0.00 KM |
| Seaford Road, London | £ 475,000 | BUY | 5 / 10 | 0.05 KM |
| Seaford Road, London | £ 535,000 | BUY | 6 / 10 | 0.05 KM |
| Chesham Terrace, Ealing, London, W13 9HX | £ 399,950 | BUY | Unknown | 0.06 KM |
| Seaford Road, West Ealing | £ 625,000 | BUY | 6 / 10 | 0.07 KM |
Nearby Properties
| Address | Price | Distance |
|---|---|---|
| 68 Seaford Road | £ 424,000 | 0.02 KM |
| 72 Seaford Road | £ 750,000 | 0.02 KM |
| 74a Seaford Road | £ 202,500 | 0.02 KM |
| 76 Seaford Road | £ 400,000 | 0.02 KM |
| 70 Seaford Road | £ 890,500 | 0.02 KM |