Home says ..
*** WELCOME TO PHASE TWO OF THE GRAND*** The careful and sympathetic restoration of this historic and well-loved building offers the unique opportunity to own a home that combines the splendour of a bygone era with the benefits of a brand new, high-specification apartment in the vibrant...
Property Oracle says ..
The property is a well-presented 2-bedroom, 2-bathroom flat located in a desirable area of Leigh-on-Sea. The flat benefits from excellent transport links and nearby schools, making it attractive to families and commuters. However, the lack of outdoor space is a significant drawback. The property is in excellent condition, having undergone a recent modernisation. The asking price is significantly higher than the average price per square foot in the area, which may or may not be justified depending on the buyer’s priorities.
Therefore, we give this property 6 / 10. *Disclaimer: This is our option and does constitute a recommendation or financial advice. Do your own research. *
- Price
- 6
- Condition
- 10
- Location
- 9
- Land
- 1
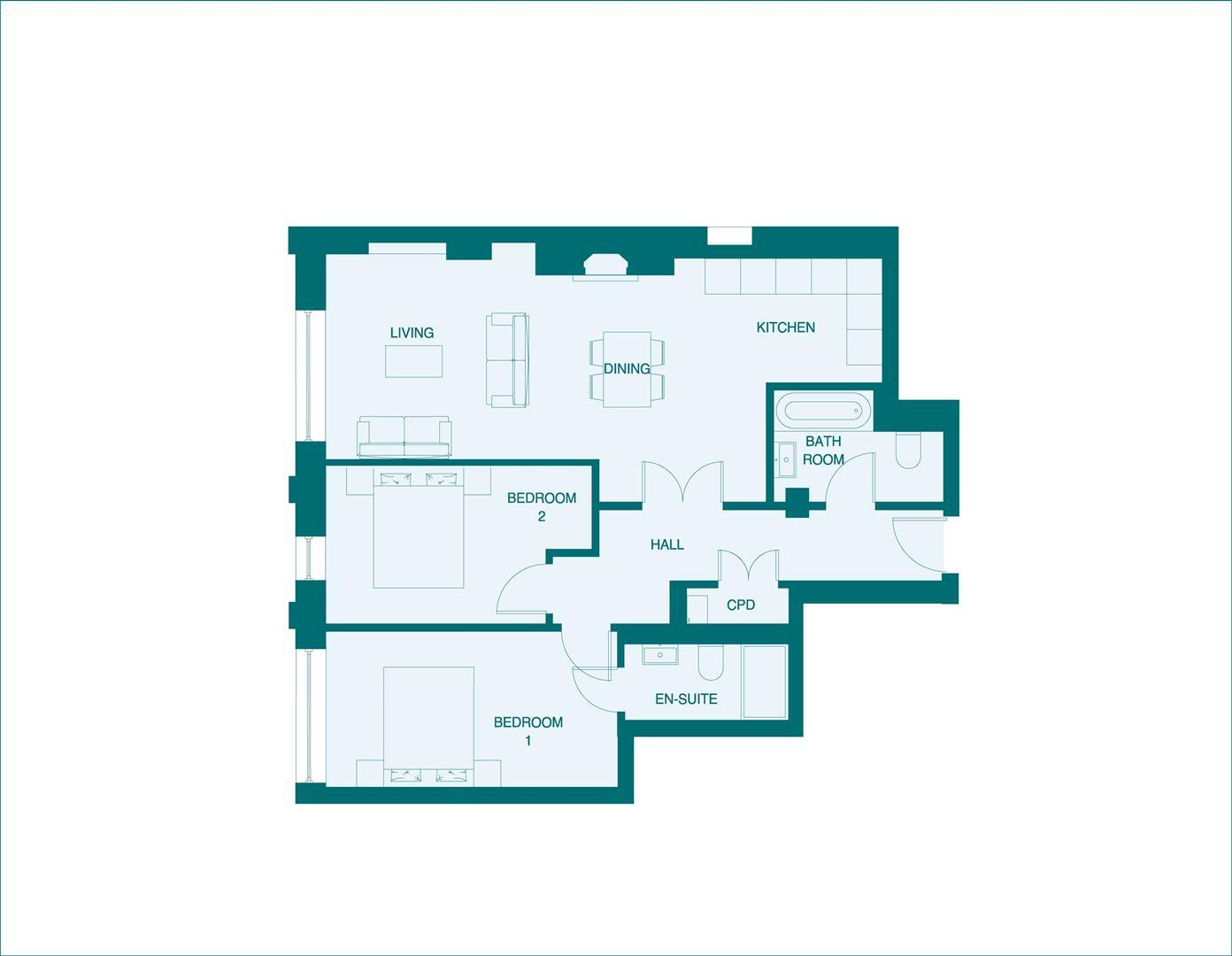
- Bedrooms
- 2
- Bathrooms
- 2
- Sqft (est)
- 570.00
The heatmap indicates the level of crime in the area. The color of the heatmap indicates the crime severity and recency.
Metrics Year-on-Year
- Average area value
- 457,857.00 £Increased by 6.96 %
- Est sale value
- 303,240.00 £Increased by 9.24 %
- Average area rental value
- 1,636.00 £/moIncreased by 2.83 %
- Est letting value
- 570.00 £/moUnchanged by 0.00 %
- Est rental Yield
- 4.29 %Decreased by 3.81 %
- Crime Rate
- 26.00 %Unchanged by 0.00 %
Agent Activity
Home created the listing.
Nearby Schools
| Name | Type | Ofsted | Distance |
|---|---|---|---|
| Leigh North Street Primary School | Community School | Requires improvement | 0.21 KM |
| West Leigh Junior School | Academy Converter | 1.07 KM | |
| West Leigh Infant School | Community School | Good | 1.07 KM |
| Darlinghurst Academy | Academy Converter | Good | 1.46 KM |
| Estuary High School | Other Independent Special School | Good | 1.50 KM |
Images
Nearby Streets
| Name | Average Price | Average Sqft | Distance |
|---|---|---|---|
| Alley Dock | £ 0 | 0 | 0.00 KM |
| Grange Road | £ 0 | 0 | 0.00 KM |
| Station Road | £ 408,000 | 0 | 0.00 KM |
| St. Clement's Avenue | £ 700,000 | 0 | 0.00 KM |
| Leigh Cliff Road | £ 950,000 | 0 | 0.00 KM |
Nearby Transport
| Name | NLC | TLC | Distance |
|---|---|---|---|
| Leigh-On-Sea | 7446 | LES | 1.61 KM |
| Chalkwell | 7469 | CHW | 1.75 KM |
| Westcliff | 7476 | WCF | 4.06 KM |
| Prittlewell | 7419 | PRL | 6.24 KM |
| Southend Victoria | 7420 | SOV | 6.25 KM |
Nearby Listings
| Address | Price | Type | Score | Distance |
|---|---|---|---|---|
| Broadway, Leigh-On-Sea | £ 700,000 | BUY | 6 / 10 | 0.00 KM |
| Broadway, Leigh-On-Sea | £ 825,000 | BUY | 6 / 10 | 0.01 KM |
| Broadway, Leigh-On-Sea | £ 325,000 | BUY | 6 / 10 | 0.01 KM |
| Broadway, Leigh-on-Sea, SS9 | £ 400,000 | BUY | 6 / 10 | 0.01 KM |
| Broadway, Leigh-On-Sea | £ 800,000 | BUY | 6 / 10 | 0.01 KM |
Nearby Properties
| Address | Price | Distance |
|---|---|---|
| 45c Broadway | £ 165,000 | 0.04 KM |
| 49a Broadway | £ 83,000 | 0.04 KM |
| 15 West Street | £ 56,000 | 0.07 KM |
| 3 West Street | £ 370,000 | 0.07 KM |
| 9 West Street | £ 382,500 | 0.07 KM |