Brookings says ..
BROOKINGS ARE DELIGHTED TO OFFER FOR SALE THIS WELL PRESENTED THREE BEDROOM SEMI DETATCHED HOUSE SITUATED IN ROMFORD. MORE DETAILS.........
Property Oracle says ..
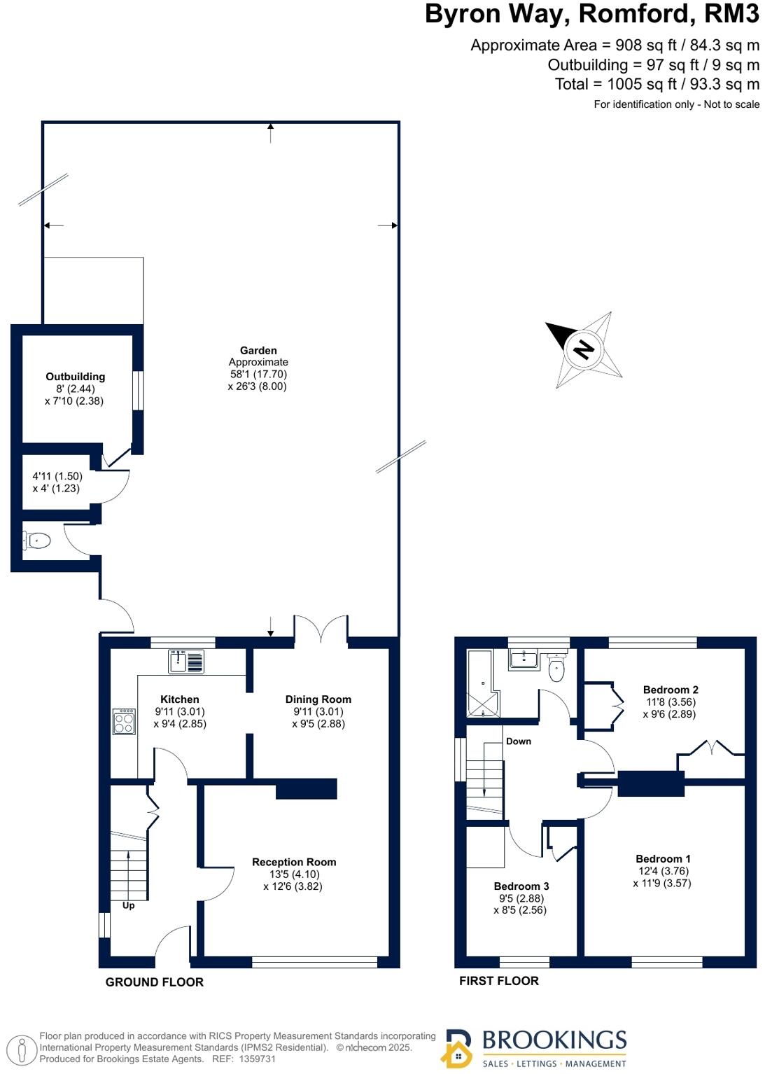
This semi-detached property on Byron Way in Romford offers three bedrooms and one bathroom. The house features a modern kitchen and bathroom, and a generously sized garden with a patio area. While the property appears to be in good condition, some minor updates could further enhance its appeal. The location provides convenient access to schools and transportation. The asking price of £450,000 is relatively high for the area, suggesting there is room for negotiation.
Therefore, we give this property 7 / 10. *Disclaimer: This is our option and does constitute a recommendation or financial advice. Do your own research. *
- Price
- 6
- Condition
- 7
- Location
- 7
- Land
- 8
- Bedrooms
- 3
- Bathrooms
- 1
The heatmap indicates the level of crime in the area. The color of the heatmap indicates the crime severity and recency.
Metrics Year-on-Year
- Average area value
- 297,629.00 £Increased by 0.56 %
- Average area rental value
- 1,009.00 £/moDecreased by 1.85 %
- Est rental Yield
- 4.07 %Decreased by 2.40 %
- Crime Rate
- 2.00 %Unchanged by 0.00 %
Agent Activity
Brookings created the listing.
Nearby Schools
| Name | Type | Ofsted | Distance |
|---|---|---|---|
| Hilldene | Children's Centre | 0.78 KM | |
| Lime Academy Ravensbourne | Academy Special Converter | Good | 0.79 KM |
| Hilldene Primary School | Community School | Good | 0.85 KM |
| St Ursula'S Catholic Primary School | Voluntary Aided School | Outstanding | 1.12 KM |
| The Royal Liberty School | Academy Converter | Good | 1.15 KM |
Images
Nearby Streets
| Name | Average Price | Average Sqft | Distance |
|---|---|---|---|
| Natasha Court | £ 205,000 | 0 | 0.00 KM |
| Marlowe Gardens | £ 0 | 0 | 0.00 KM |
| Brooklime Path | £ 255,000 | 0 | 0.00 KM |
| St Patrick's Place | £ 0 | 0 | 0.00 KM |
| Henbane Walk | £ 300,000 | 0 | 0.00 KM |
Nearby Transport
| Name | NLC | TLC | Distance |
|---|---|---|---|
| Gidea Park | 6877 | GDP | 1.66 KM |
| Harold Wood | 6879 | HRO | 2.45 KM |
| Emerson Park | 7473 | EMP | 3.19 KM |
| Romford | 6886 | RMF | 3.88 KM |
| Upminster | 7464 | UPM | 6.00 KM |
Nearby Listings
| Address | Price | Type | Score | Distance |
|---|---|---|---|---|
| Byron Way, Romford, RM3 | £ 450,000 | BUY | 7 / 10 | 0.00 KM |
| Byron Way, Harold Hill, Essex, RM3 7PR | £ 390,000 | BUY | 6 / 10 | 0.12 KM |
| Byron Way, Romford, Essex | £ 475,000 | BUY | Unknown | 0.13 KM |
| Byron Way, Romford, Essex | £ 314,000 | BUY | Unknown | 0.13 KM |
| Byron Way, Romford, RM3 | £ 700,000 | BUY | 7 / 10 | 0.13 KM |
Nearby Properties
| Address | Price | Distance |
|---|---|---|
| 61 Straight Road | £ 210,000 | 0.09 KM |
| 55 Straight Road | £ 199,995 | 0.09 KM |
| 57 Straight Road | £ 115,000 | 0.09 KM |
| 49 Straight Road | £ 605,000 | 0.10 KM |
| 73 Straight Road | £ 345,000 | 0.10 KM |