Development Opportunity, Great Bardfield
PE

Development Opportunity, Great Bardfield

By Pestell & Co

£ 1,195,000

Reviews

2 out of 5 stars

Pestell & Co says ..

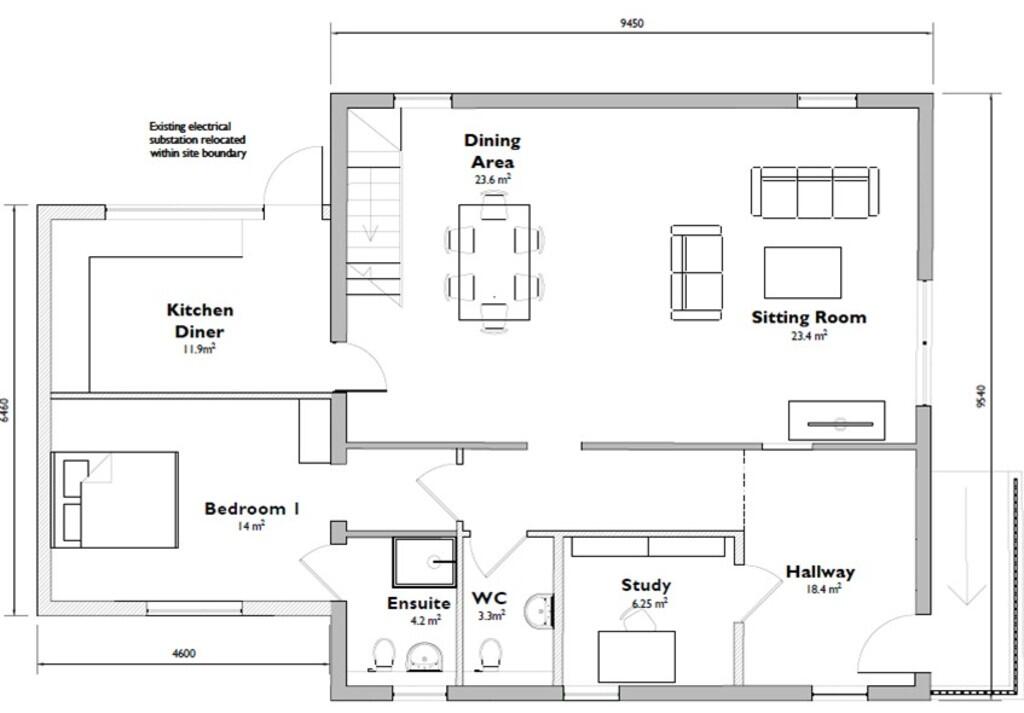
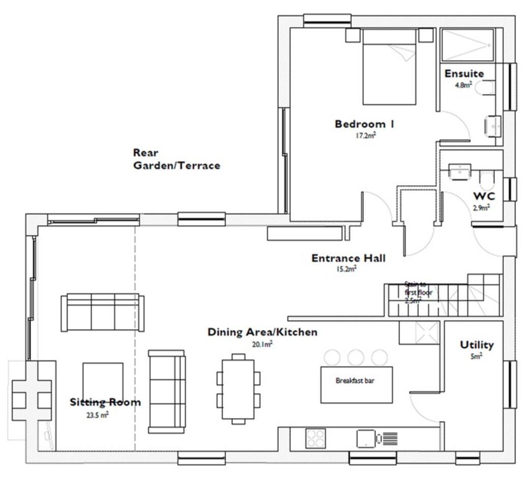
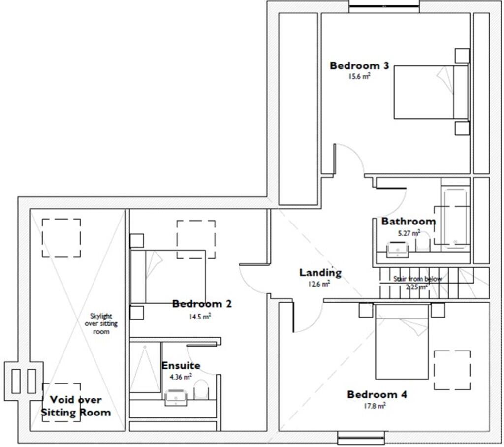
A development opportunity to convert a 4400 sq. ft barn into two dwellings, convert an additional 2000 sq. ft office building into a 4 bed detached property, along with a further building plot for a 1762 sq. ft detached four bedroom property. LAN123

Property Oracle says ..

Therefore, we give this property 5 / 10. *Disclaimer: This is our option and does constitute a recommendation or financial advice. Do your own research. *

Price
5
Condition
3
Location
7
Land
7
Bedrooms
0
Bathrooms
0

The heatmap indicates the level of crime in the area. The color of the heatmap indicates the crime severity and recency.

Metrics Year-on-Year

Average area value
503,333.00 £
Decreased by 23.15 %
from 654,985.00 £
Average area rental value
2,825.00 £/mo
Increased by 41.25 %
from 2,000.00 £/mo
Est rental Yield
6.74 %
Increased by 84.15 %
from 3.66 %
Crime Rate
65.00 %
Unchanged by 0.00 %
from 65.00 %

Agent Activity

  • Pestell & Co created the listing.

Nearby Schools

NameTypeOfstedDistance
Great Bardfield Primary SchoolCommunity SchoolGood0.39 KM
Finchingfield St John The Baptist Cofe Primary AcademyAcademy Converter3.05 KM
Wethersfield Cofe Vc Primary SchoolVoluntary Controlled SchoolGood5.38 KM
Stebbing Primary SchoolCommunity SchoolGood6.42 KM
Great Sampford Community Primary SchoolCommunity SchoolGood7.32 KM

Images

DSC_0006 DSC_0010-DSC_0012 DSC_0001-DSC_0003 DSC_0004-DSC_0006 DSC_0007-DSC_0009 DSC_0013 DSC_0012 DSC_0005 DSC_0003 DSC_0002 DSC_0028-DSC_0030 DSC_0019-DSC_0021 DSC_0022-DSC_0024 DSC_0016-DSC_0018 DSC_0013-DSC_0015 DSC_0008 Barn Proposed Sou... Barn Proposed Sou... DSC_0025-DSC_0027 DSC_0009 DSC_0011 DSC_0014 DSC_0010 DSC_0001 Proposed Site Pla... Proposed Barn Gro... Proposed Barn Fir... Barn Proposed Nor... Barn Proposed Nor... New Build Propose... New Build Propose... Proposed Office G... Proposed Office F...

Nearby Streets

NameAverage PriceAverage SqftDistance
Newland Avenue £ 000.00 KM
Vine Street £ 000.00 KM
Mill Close £ 450,00000.00 KM

Nearby Listings

AddressPriceTypeScoreDistance
Development Opportunity, Great Bardfield £ 1,195,000BUY5 / 100.00 KM
reat Bardfield CM7 £ 450,000BUY7 / 100.05 KM
Bardfield Centre, Great Bardfield, Braintree, CM7 £ 1,300,000BUY6 / 100.06 KM
Bardfield Centre, Great Bardfield, Braintree, Essex, CM7 £ 1,195,000BUY6 / 100.07 KM
Braintree Road, CM7 £ 350,000BUY7 / 100.08 KM

Nearby Properties

AddressPriceDistance
1 St Marys Court £ 356,0000.23 KM
3 St Marys Court £ 435,0000.23 KM
2 St Marys Court £ 322,0000.23 KM
5 Alienor Avenue £ 245,0000.27 KM
19 Alienor Avenue £ 405,0000.27 KM