Lochleven Road, Lochore, KY5
By Home Sweet Home Estate Agents Fife
£ 159,995
Reviews
3 out of 5 stars
Home Sweet Home Estate Agents Fife says ..
For sale at a New Price this Beautiful & Spacious Mid Terraced Traditional Cottage with enclosed garden, off street parking & Garden Room. Award Winning Home Sweet Home Estate Agents Fife are pleased to offer for sale a well-maintained family home comprising Welcoming Entrance Hall - Lounge - Mod...
Property Oracle says ..
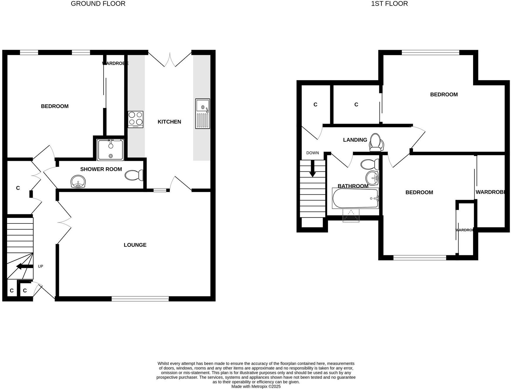
This is a three-bedroom terraced property on Lochleven Road, Lochore, Fife. The property benefits from two bathrooms and a garden with a shed and decked area. The interior appears to be in good condition, with modern fixtures and fittings. The property is located within a reasonable distance of local amenities and transport links. The property is listed at £159,995, which represents good value for money when compared to the local averages.
Therefore, we give this property 7 / 10. *Disclaimer: This is our option and does constitute a recommendation or financial advice. Do your own research. *
- Price
- 8
- Condition
- 7
- Location
- 6
- Land
- 7
- Bedrooms
- 3
- Bathrooms
- 2
- Sqft (est)
- 912.00
The heatmap indicates the level of crime in the area. The color of the heatmap indicates the crime severity and recency.
Metrics Year-on-Year
- Average area value
- 546,663.00 £Increased by 20.32 %
- Est sale value
- 541,728.00 £Increased by 55.50 %
- Average area rental value
- 2,315.00 £/moIncreased by 58.13 %
- Est letting value
- 1,824.00 £/moIncreased by 100.00 %
- Est rental Yield
- 5.08 %Increased by 31.27 %
- Crime Rate
- 0.00 %
Agent Activity
Home Sweet Home Estate Agents Fife created the listing.
Images
Nearby Streets
| Name | Average Price | Average Sqft | Distance |
|---|---|---|---|
| Rosewell Drive | £ 270,000 | 0 | 0.00 KM |
| Melrose Gardens | £ 100,000 | 0 | 0.00 KM |
| Denholm Way | £ 0 | 0 | 0.00 KM |
| Marmion Road | £ 0 | 0 | 0.00 KM |
| Montrose Crescent | £ 0 | 0 | 0.00 KM |
Nearby Transport
| Name | NLC | TLC | Distance |
|---|---|---|---|
| Lochgelly | 9156 | LCG | 2.38 KM |
| Cowdenbeath | 9185 | COW | 5.30 KM |
| Cardenden | 9112 | CDD | 6.82 KM |
Nearby Listings
| Address | Price | Type | Score | Distance |
|---|---|---|---|---|
| Lochleven Road, Lochore, KY5 | £ 159,995 | BUY | 7 / 10 | 0.00 KM |
| Lochleven Road, Lochore, KY5 | £ 159,995 | BUY | 7 / 10 | 0.00 KM |
| Lochleven Road, Lochore, KY5 | £ 159,995 | BUY | 7 / 10 | 0.00 KM |
| Rosewell Drive, Lochgelly, KY5 | £ 175,000 | BUY | 6 / 10 | 0.14 KM |
| Lochleven Road, Lochore, Lochgelly, KY5 | £ 125,000 | BUY | 8 / 10 | 0.15 KM |