Wigorn Road, Smethwick, B67
By Oakmans Estate Agents
£ 245,000
Reviews
3 out of 5 stars
Oakmans Estate Agents says ..
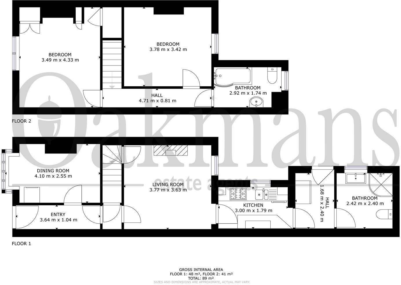
** TWO BATHROOMS ** IDEALLY LOCATED ** LARGE, PRIVATE REAR GARDEN ** Oakmans are proud to offer a well proportioned, two bedroom mid-terraced property situated on the highly popular and residential Wigorn road. This property boasts move in ready accommodation and further benefits from ...
Property Oracle says ..
Therefore, we give this property 7 / 10. *Disclaimer: This is our option and does constitute a recommendation or financial advice. Do your own research. *
- Price
- 8
- Condition
- 6
- Location
- 7
- Land
- 7
- Bedrooms
- 2
- Bathrooms
- 2
- Sqft (est)
- 777.37
The heatmap indicates the level of crime in the area. The color of the heatmap indicates the crime severity and recency.
Metrics Year-on-Year
- Average area value
- 350,323.00 £Decreased by 1.18 %
- Est sale value
- 335,046.47 £Increased by 20.73 %
- Average area rental value
- 1,334.00 £/moDecreased by 2.49 %
- Est letting value
- 777.37 £/moUnchanged by 0.00 %
- Est rental Yield
- 4.57 %Decreased by 1.30 %
- Crime Rate
- 5.00 %Unchanged by 0.00 %
from 354,508.00 £
from 277,521.09 £
from 1,368.00 £/mo
from 777.37 £/mo
from 4.63 %
from 5.00 %
Agent Activity
Oakmans Estate Agents created the listing.
Nearby Schools
| Name | Type | Ofsted | Distance |
|---|---|---|---|
| St Gregory'S Catholic Primary School | Academy Converter | Outstanding | 0.33 KM |
| Bearwood Primary School | Community School | Good | 0.63 KM |
| Abbey Junior School | Community School | Good | 0.66 KM |
| Abbey Infant School | Community School | Good | 0.73 KM |
| Our Lady Of Fatima Catholic Primary School | Academy Converter | 0.82 KM |
Images
Nearby Streets
| Name | Average Price | Average Sqft | Distance |
|---|---|---|---|
| St Marys Road | £ 305,000 | 0 | 0.00 KM |
| Park Road | £ 254,992 | 0 | 0.00 KM |
| Beechwood Road | £ 399,950 | 0 | 0.00 KM |
| Hagley Road | £ 1,297,500 | 0 | 0.00 KM |
| Drayton Road | £ 187,500 | 0 | 0.00 KM |
Nearby Transport
| Name | NLC | TLC | Distance |
|---|---|---|---|
| Smethwick Rolfe Street | 1150 | SMR | 2.53 KM |
| Smethwick Galton Bridge | 1114 | SGB | 3.15 KM |
| The Hawthorns | 4523 | THW | 3.69 KM |
| Langley Green | 4607 | LGG | 4.00 KM |
| University (Birmingham) | 4504 | UNI | 4.92 KM |
Nearby Listings
| Address | Price | Type | Score | Distance |
|---|---|---|---|---|
| Wigorn Road, Smethwick, B67 | £ 245,000 | BUY | 7 / 10 | 0.00 KM |
| Loxley Road, Smethwick, West Midlands, B67 | £ 220,000 | BUY | 5 / 10 | 0.06 KM |
| Wigorn Road, Bearwood, B67 | £ 265,000 | BUY | 8 / 10 | 0.09 KM |
| Upper St. Marys Road, Bearwood, West Midlands, B67 | £ 230,000 | BUY | Unknown | 0.10 KM |
| Upper St.Mary's Road, Bearwood, Birmingham, B67 5JR | £ 275,000 | BUY | 6 / 10 | 0.11 KM |
Nearby Properties
| Address | Price | Distance |
|---|---|---|
| 59 Wigorn Road | £ 118,000 | 0.01 KM |
| 71 Wigorn Road | £ 425,000 | 0.01 KM |
| 72 Wigorn Road | £ 125,000 | 0.01 KM |
| 68 Wigorn Road | £ 190,000 | 0.01 KM |
| 55 Wigorn Road | £ 155,000 | 0.01 KM |