Marsh & Parsons says ..
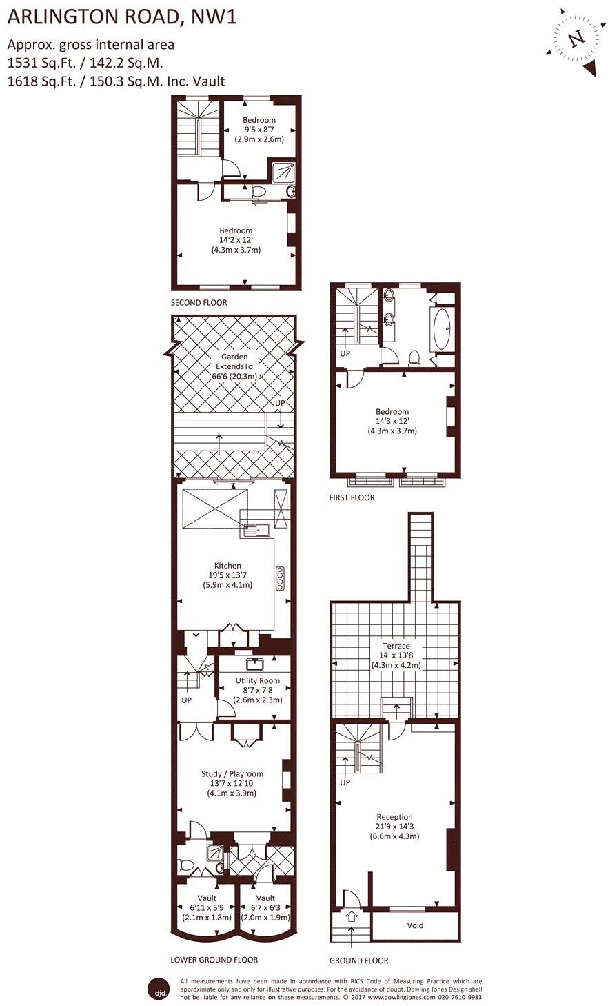
This beautifully refurbished four-storey home combines period charm with modern design, featuring a dual-aspect reception room, glass-extension kitchen, and an 80ft southwest-facing garden. It also offers three double bedrooms, a playroom/study, and a spacious family bathroom.
Property Oracle says ..
This is a four-bedroom terraced house located on Arlington Road in Camden, near Regent’s Park. The property is in good condition and benefits from a modern kitchen and bathrooms, a garden, and a roof terrace. The property is well-located, with several schools and transport links nearby. The asking price is £1,800,000.
Therefore, we give this property 7 / 10. *Disclaimer: This is our option and does constitute a recommendation or financial advice. Do your own research. *
- Price
- 6
- Condition
- 8
- Location
- 8
- Land
- 7
- Bedrooms
- 4
- Bathrooms
- 3
- Sqft (est)
- 1,491.50
The heatmap indicates the level of crime in the area. The color of the heatmap indicates the crime severity and recency.
Metrics Year-on-Year
- Average area value
- 1,623,158.00 £Decreased by 45.13 %
- Est sale value
- 2,557,922.50 £Decreased by 11.69 %
- Average area rental value
- 2,702.00 £/moDecreased by 17.80 %
- Est letting value
- 2,983.00 £/moUnchanged by 0.00 %
- Est rental Yield
- 2.00 %Increased by 50.38 %
- Crime Rate
- 14.00 %Unchanged by 0.00 %
Agent Activity
Marsh & Parsons created the listing.
Nearby Schools
| Name | Type | Ofsted | Distance |
|---|---|---|---|
| St Michael'S Church Of England Primary School | Voluntary Aided School | Good | 0.52 KM |
| The Cavendish School | Other Independent School | 0.52 KM | |
| Regents Park Children'S Centre | Children's Centre | 0.56 KM | |
| Richard Cobden Primary School | Community School | Outstanding | 0.57 KM |
| Our Lady Roman Catholic Primary School | Voluntary Aided School | Good | 0.57 KM |
Images
Nearby Streets
| Name | Average Price | Average Sqft | Distance |
|---|---|---|---|
| Mary Terrace | £ 350,000 | 0 | 0.00 KM |
| Delancey Studios | £ 550,000 | 0 | 0.00 KM |
| Symes Mews | £ 0 | 0 | 0.00 KM |
| Park Village Mews | £ 3,000,000 | 0 | 0.00 KM |
| Parkway | £ 675,000 | 0 | 0.00 KM |
Nearby Transport
| Name | NLC | TLC | Distance |
|---|---|---|---|
| Camden Road | 1440 | CMD | 0.74 KM |
| Euston | 1444 | EUS | 1.21 KM |
| Kentish Town West | 1449 | KTW | 1.32 KM |
| Kentish Town | 1553 | KTN | 1.64 KM |
| St Pancras | 1555 | STP | 1.65 KM |
Nearby Listings
| Address | Price | Type | Score | Distance |
|---|---|---|---|---|
| Arlington Road, Primrose Hill, NW1 | £ 1,800,000 | BUY | 7 / 10 | 0.00 KM |
| Arlington Road, London | £ 2,000,000 | BUY | 8 / 10 | 0.00 KM |
| Arlington Road, Camden | £ 1,800,000 | BUY | 7 / 10 | 0.00 KM |
| Arlington Road, London, NW1 | £ 475,000 | BUY | Unknown | 0.01 KM |
| Arlington Road, Camden Town, NW1 | £ 425,000 | BUY | 7 / 10 | 0.01 KM |
Nearby Properties
| Address | Price | Distance |
|---|---|---|
| 85 Arlington Road | £ 670,000 | 0.01 KM |
| 47 Arlington Road | £ 268,000 | 0.01 KM |
| 33 Arlington Road | £ 72,000 | 0.01 KM |
| 61 Arlington Road | £ 1,975,000 | 0.01 KM |
| 41 Arlington Road | £ 1,540,000 | 0.01 KM |