Ashton & Perkins says ..
We are delighted to offer this spacious and modern one bedroom apartment, with the option of being chain free and with views over central park from the South facing balcony. Positioned perfectly for local amenities, plus just over a mile to Chadwell heath train station and direct links to..........
Property Oracle says ..
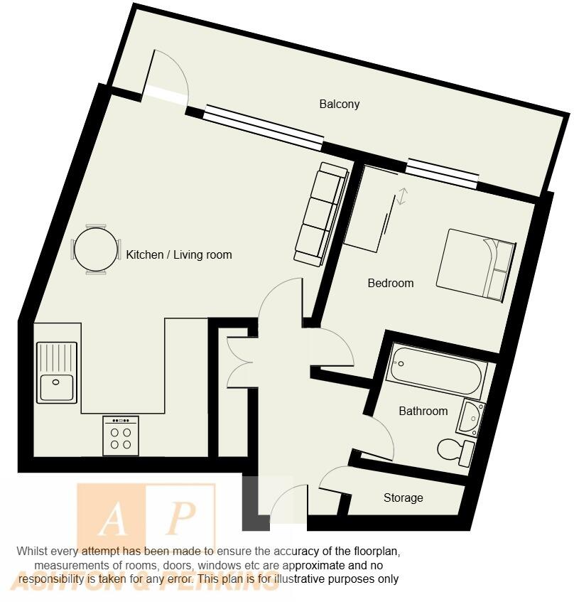
The property is a one-bedroom flat located on Stour Road in Dagenham, Greater London. The flat is modern and well-presented, with a contemporary design throughout. The images show a bright and airy living space, a modern kitchen, a well-appointed bathroom, and a private balcony. The property appears to be in excellent condition, with no visible signs of wear or damage.
The location is good, with several schools and transportation links nearby. William Bellamy Primary School, rated ‘Good’ by Ofsted, is within easy walking distance. Chadwell Heath TfL Rail station is approximately 3km away, providing convenient access to central London.
The property has a small balcony, however, there is no garden. The size of the flat is 332 sqft. Considering the average price per sqft in the area is £360, and this property is listed at £240,000, the price seems reasonable, particularly given the modern condition and convenient location. However, it is worth noting that the average property size in the area is significantly larger (1016 sqft), so this flat is considerably smaller than average.
Based on the information provided, the property presents as a well-maintained, modern flat in a convenient location, offering good value for money given its size and condition.
Therefore, we give this property 6 / 10. *Disclaimer: This is our option and does constitute a recommendation or financial advice. Do your own research. *
- Price
- 7
- Condition
- 10
- Location
- 8
- Land
- 2
- Bedrooms
- 1
- Bathrooms
- 1
- Sqft (est)
- 332.00
The heatmap indicates the level of crime in the area. The color of the heatmap indicates the crime severity and recency.
Metrics Year-on-Year
- Average area value
- 358,479.00 £Decreased by 2.93 %
- Est sale value
- 140,104.00 £Increased by 20.57 %
- Average area rental value
- 1,595.00 £/moIncreased by 2.84 %
- Est letting value
- 332.00 £/moUnchanged by 0.00 %
- Est rental Yield
- 5.34 %Increased by 5.95 %
- Crime Rate
- 4.00 %Unchanged by 0.00 %
Agent Activity
Ashton & Perkins created the listing.
Nearby Schools
| Name | Type | Ofsted | Distance |
|---|---|---|---|
| William Bellamy Primary School | Community School | Good | 0.11 KM |
| William Bellamy Children'S Centre | Children's Centre | 0.11 KM | |
| All Saints Catholic School And Technology College | Voluntary Aided School | Good | 0.51 KM |
| Trinity School | Community Special School | Outstanding | 1.05 KM |
| Robert Clack School | Community School | Good | 1.06 KM |
Images
Nearby Streets
| Name | Average Price | Average Sqft | Distance |
|---|---|---|---|
| Althorne Way | £ 0 | 0 | 0.00 KM |
| Jacobs Close | £ 0 | 0 | 0.00 KM |
| Rowlands Road | £ 400,000 | 0 | 0.00 KM |
| Tony Rawson Way | £ 600,000 | 0 | 0.00 KM |
| Heathway | £ 460,000 | 0 | 0.00 KM |
Nearby Transport
| Name | NLC | TLC | Distance |
|---|---|---|---|
| Chadwell Heath | 6874 | CTH | 3.02 KM |
| Romford | 6886 | RMF | 3.54 KM |
| Dagenham Dock | 7440 | DDK | 3.89 KM |
| Goodmayes | 6878 | GMY | 4.92 KM |
| Gidea Park | 6877 | GDP | 6.15 KM |
Nearby Listings
| Address | Price | Type | Score | Distance |
|---|---|---|---|---|
| Stour Road, Dagenham, RM10 | £ 240,000 | BUY | 6 / 10 | 0.00 KM |
| Saddler House, Dagenham | £ 230,000 | BUY | 6 / 10 | 0.03 KM |
| Mason Apartments, 115 Rainham Road North, Dagenham, RM10 | £ 240,000 | BUY | 6 / 10 | 0.04 KM |
| Rainham Road North, Dagenham, RM10 | £ 300,000 | BUY | 6 / 10 | 0.10 KM |
| Stour Road, Dagenham | £ 150,000 | BUY | Unknown | 0.16 KM |
Nearby Properties
| Address | Price | Distance |
|---|---|---|
| 123 Gosfield Road | £ 280,000 | 0.21 KM |
| 127 Gosfield Road | £ 135,000 | 0.21 KM |
| 23 Gosfield Road | £ 33,000 | 0.23 KM |
| 67 Gosfield Road | £ 280,000 | 0.23 KM |
| 77 Gosfield Road | £ 128,000 | 0.23 KM |