Venditum says ..
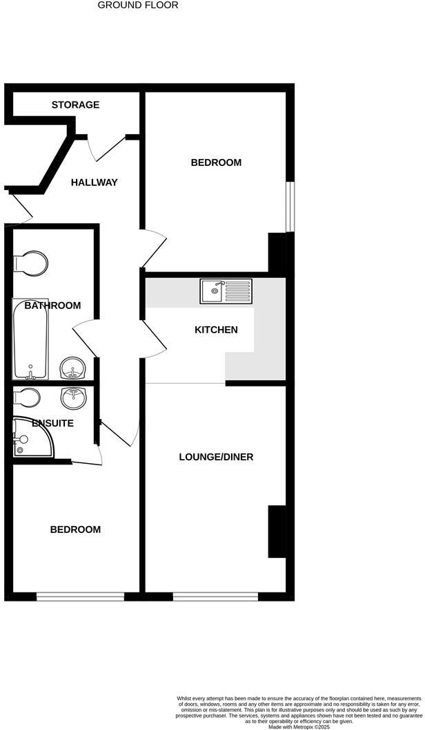
A spacious and stylish apartment perfectly positioned for the railway station and city centre with the huge advantage of allocated off-road parking. Flat 9, 161 Fisherton Street is part of a well-managed modern development which offers a long list of features only appreciated by a viewing. The pr...
Property Oracle says ..
Therefore, we give this property 7 / 10. *Disclaimer: This is our option and does constitute a recommendation or financial advice. Do your own research. *
- Price
- 6
- Condition
- 8
- Location
- 8
- Land
- 6
- Bedrooms
- 2
- Bathrooms
- 2
- Sqft (est)
- 573.00
The heatmap indicates the level of crime in the area. The color of the heatmap indicates the crime severity and recency.
Metrics Year-on-Year
- Average area value
- 286,500.00 £Increased by 18.03 %
- Est sale value
- 212,583.00 £Increased by 15.22 %
- Average area rental value
- 1,106.00 £/moIncreased by 14.85 %
- Est letting value
- 573.00 £/moUnchanged by 0.00 %
- Est rental Yield
- 4.63 %Decreased by 2.73 %
- Crime Rate
- 14.00 %Unchanged by 0.00 %
from 242,725.00 £
from 184,506.00 £
from 963.00 £/mo
from 573.00 £/mo
from 4.76 %
from 14.00 %
Agent Activity
Venditum created the listing.
Nearby Schools
| Name | Type | Ofsted | Distance |
|---|---|---|---|
| Elim Children'S Centre | Children's Centre | 0.24 KM | |
| Sarum St Paul'S Cofe (Va) Primary School | Voluntary Aided School | Outstanding | 0.65 KM |
| Salisbury, Manor Fields Primary School | Community School | Good | 0.68 KM |
| South Wilts Grammar School | Academy Converter | Good | 1.09 KM |
| The Wasp Centre | Other Independent School | Requires improvement | 1.27 KM |
Images
Nearby Streets
| Name | Average Price | Average Sqft | Distance |
|---|---|---|---|
| South Western Road | £ 0 | 0 | 0.00 KM |
| South Front | £ 0 | 0 | 0.00 KM |
| Fisherton Mill | £ 240,000 | 0 | 0.00 KM |
| St Paul's Road | £ 0 | 0 | 0.00 KM |
| Westminster Road | £ 0 | 0 | 0.00 KM |
Nearby Transport
| Name | NLC | TLC | Distance |
|---|---|---|---|
| Salisbury | 5663 | SAL | 0.21 KM |
Nearby Listings
| Address | Price | Type | Score | Distance |
|---|---|---|---|---|
| Fisherton Street, Salisbury | £ 219,950 | BUY | 7 / 10 | 0.00 KM |
| Fisherton Street, Salisbury | £ 179,950 | BUY | 6 / 10 | 0.01 KM |
| Windsor Road, Salisbury | £ 120,000 | BUY | Unknown | 0.06 KM |
| Windsor Road, Salisbury, SP2 | £ 364,950 | BUY | 7 / 10 | 0.07 KM |
| Wilton Road, Salisbury, SP2 | £ 250,000 | BUY | 6 / 10 | 0.07 KM |
Nearby Properties
| Address | Price | Distance |
|---|---|---|
| 169 Fisherton Street | £ 128,000 | 0.03 KM |
| 5 York Road | £ 297,500 | 0.12 KM |
| 25 Wilton Road | £ 195,000 | 0.13 KM |
| 5 Belgrave Terrace | £ 292,500 | 0.14 KM |
| 3 Belgrave Terrace | £ 295,000 | 0.14 KM |