FL
Victoria Road, Kirkstall, Leeds
By Fletcher Properties
£ 345,000
Reviews
3 out of 5 stars
Fletcher Properties says ..
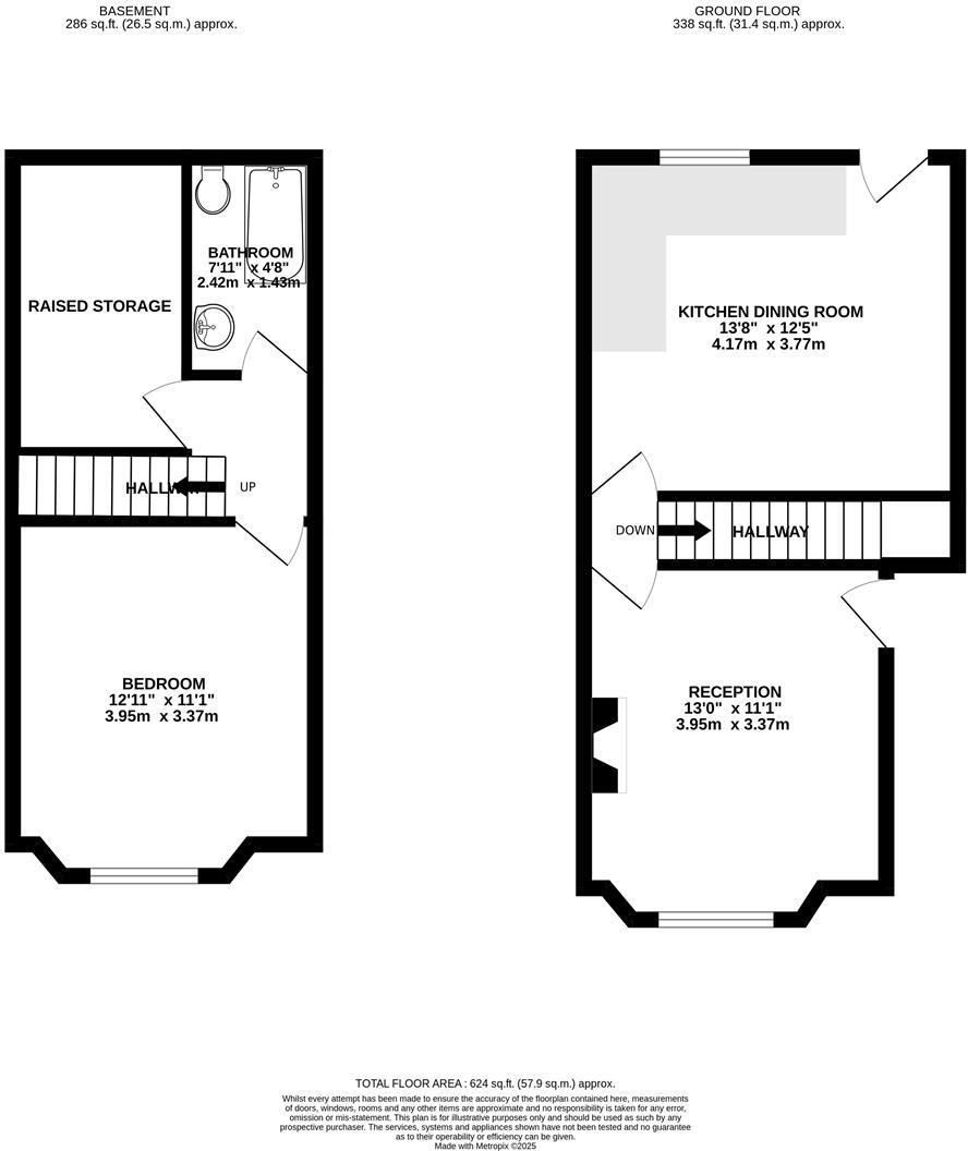
***INVESTORS ONLY*** Two Apartments available in LS5. This semi-detached house has been skilfully converted into two generous apartments. Flat A encompasses te ground and lower ground floor and includes a large living room, separate kitchen, bathroom and bedroom. It privatel...
Property Oracle says ..
Therefore, we give this property 6 / 10. *Disclaimer: This is our option and does constitute a recommendation or financial advice. Do your own research. *
- Price
- 4
- Condition
- 6
- Location
- 7
- Land
- 7
- Bedrooms
- 3
- Bathrooms
- 2
- Sqft (est)
- 624.00
The heatmap indicates the level of crime in the area. The color of the heatmap indicates the crime severity and recency.
Metrics Year-on-Year
- Average area value
- 275,979.00 £Increased by 12.55 %
- Est sale value
- 198,432.00 £Increased by 14.80 %
- Average area rental value
- 1,133.00 £/moIncreased by 12.51 %
- Est letting value
- 624.00 £/moUnchanged by 0.00 %
- Est rental Yield
- 4.93 %Unchanged by 0.00 %
- Crime Rate
- 7.00 %Unchanged by 0.00 %
from 245,199.00 £
from 172,848.00 £
from 1,007.00 £/mo
from 624.00 £/mo
from 4.93 %
from 7.00 %
Agent Activity
Fletcher Properties created the listing.
Nearby Schools
| Name | Type | Ofsted | Distance |
|---|---|---|---|
| Kirkstall St Stephen'S Church Of England (Va) Primary School | Voluntary Aided School | Good | 0.13 KM |
| Kirkstall Children'S Centre | Children's Centre | 0.25 KM | |
| Beecroft Primary School | Community School | Outstanding | 0.70 KM |
| Sacred Heart Catholic Primary School, A Voluntary Academy | Academy Converter | 0.73 KM | |
| Future Horizons Leeds Ltd | Special Post 16 Institution | 0.87 KM |
Images
Nearby Streets
| Name | Average Price | Average Sqft | Distance |
|---|---|---|---|
| Tannery Row | £ 0 | 0 | 0.00 KM |
| Goitside Walk | £ 0 | 0 | 0.00 KM |
| Peel Square | £ 0 | 0 | 0.00 KM |
| Back De Lacy Mount | £ 310,000 | 0 | 0.00 KM |
| Bridge Fold | £ 0 | 0 | 0.00 KM |
Nearby Transport
| Name | NLC | TLC | Distance |
|---|---|---|---|
| Headingley | 8498 | HDY | 0.67 KM |
| Burley Park | 8500 | BUY | 2.52 KM |
| Kirkstall Forge | 6544 | KLF | 2.60 KM |
| Bramley (West Yorkshire) | 8496 | BLE | 4.29 KM |
| Horsforth | 8499 | HRS | 4.80 KM |
Nearby Listings
| Address | Price | Type | Score | Distance |
|---|---|---|---|---|
| Victoria Road, Kirkstall, Leeds | £ 174,950 | BUY | 6 / 10 | 0.00 KM |
| Victoria Road, Kirkstall, Leeds | £ 345,000 | BUY | 6 / 10 | 0.00 KM |
| Victoria Road, Kirkstall, Leeds | £ 174,950 | BUY | Unknown | 0.00 KM |
| Church Street, Kirkstall, Leeds, West Yorkshire | £ 235,000 | BUY | 5 / 10 | 0.10 KM |
| Fern Grove, Kirkstall, LS5 | £ 220,000 | BUY | 6 / 10 | 0.12 KM |
Nearby Properties
| Address | Price | Distance |
|---|---|---|
| 53 Kirkstall Lane | £ 180,000 | 0.04 KM |
| 21 Victoria Road | £ 313,000 | 0.05 KM |
| 6b Victoria Road | £ 125,000 | 0.05 KM |
| 13 Victoria Road | £ 280,000 | 0.05 KM |
| 17 Victoria Road | £ 192,521 | 0.05 KM |