Pill Road, Hook, Haverfordwest, SA62
By Bryce & Co
£ 500,000
Reviews
3 out of 5 stars
Bryce & Co says ..
This beautifully renovated five-bedroom detached home seamlessly combines modern elegance with the tranquillity of countryside living. Set within expansive private grounds in the sought-after village of Hook, the property features stylish outdoor entertaining spaces, a bespoke open-plan kitche...
Property Oracle says ..
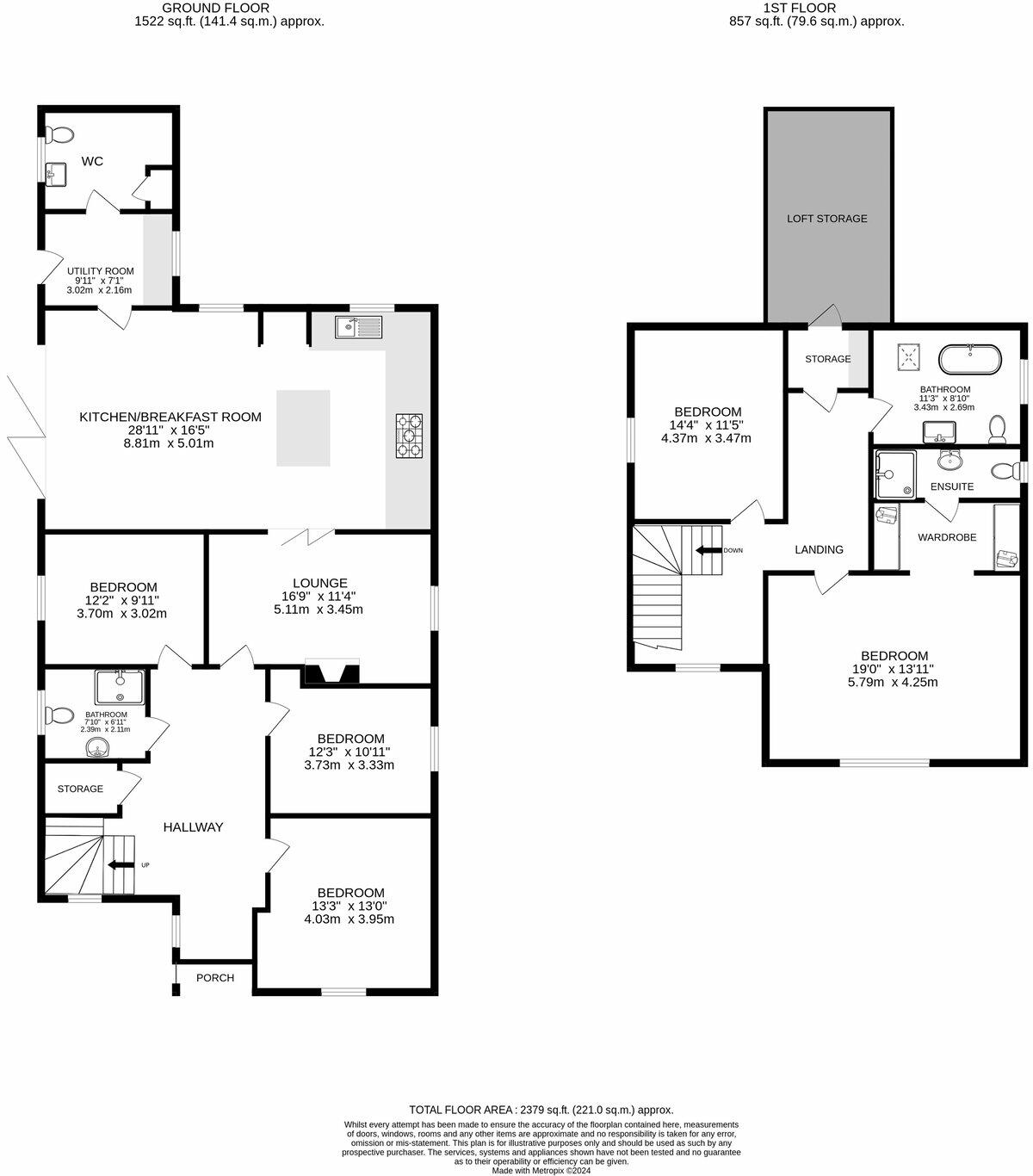
This five-bedroom, four-bathroom detached property located at 10 Pill Road, Hook, Haverfordwest, SA62 4LX, presents itself as a high-quality, modern home in a desirable location. The property boasts a contemporary design, evident in both the exterior and interior photographs. The kitchen is a particular highlight, featuring modern appliances and ample counter space, ideal for a family. The large garden offers significant outdoor space, enhanced by a paved patio area and what appears to be a hot tub. The property’s proximity to Hook C.P. School is a plus for families with young children. While the exact plot size is not provided, the images suggest a considerable amount of land. The location in Hook offers a balance of tranquility and accessibility, with Haverfordwest providing a wider range of amenities within a reasonable distance. The lack of precise square footage data for comparable properties makes a definitive price-per-square-foot comparison difficult, however, the list price appears to be in line with similar properties in the area considering the property’s apparent high standard of finish and the size of the garden. Overall, this property offers a compelling combination of modern living, convenient location, and ample outdoor space, making it a potentially attractive option for families or those seeking a high-quality home in a peaceful setting. Further information on local amenities and a precise plot size would allow for a more comprehensive evaluation.
Therefore, we give this property 7 / 10. *Disclaimer: This is our option and does constitute a recommendation or financial advice. Do your own research. *
- Price
- 7
- Condition
- 9
- Location
- 7
- Land
- 6
- Bedrooms
- 5
- Bathrooms
- 4
- Sqft (est)
- 2,379.00
The heatmap indicates the level of crime in the area. The color of the heatmap indicates the crime severity and recency.
Metrics Year-on-Year
- Average area value
- 278,905.00 £Increased by 2.67 %
- Est sale value
- 654,225.00 £Increased by 50.27 %
- Average area rental value
- 800.00 £/moDecreased by 34.53 %
- Est letting value
- 0.00 £/mo
- Est rental Yield
- 3.44 %Decreased by 36.30 %
- Crime Rate
- 4.00 %Unchanged by 0.00 %
Agent Activity
Bryce & Co created the listing.
Nearby Schools
| Name | Type | Ofsted | Distance |
|---|---|---|---|
| Hook C.P. School | Welsh Establishment | 0.81 KM | |
| Cleddau Reach Vc School | Welsh Establishment | 1.67 KM | |
| St Marks V.A.P. School | Welsh Establishment | 5.89 KM | |
| Prendergast Community School | Welsh Establishment | 6.55 KM | |
| Pembrokeshire Pupil Referral Service | Welsh Establishment | 6.58 KM |
Images
Nearby Streets
| Name | Average Price | Average Sqft | Distance |
|---|---|---|---|
| Norchard Farm | £ 0 | 0 | 0.00 KM |
Nearby Transport
| Name | NLC | TLC | Distance |
|---|---|---|---|
| Haverfordwest | 4079 | HVF | 6.01 KM |
| Pembroke Dock | 4102 | PMD | 7.82 KM |
| Johnston (Pembs) | 4081 | JOH | 8.10 KM |
Nearby Listings
| Address | Price | Type | Score | Distance |
|---|---|---|---|---|
| Pill Road, Hook, Haverfordwest, SA62 | £ 480,000 | BUY | 7 / 10 | 0.00 KM |
| Pill Road, Hook, Haverfordwest, SA62 | £ 500,000 | BUY | 7 / 10 | 0.00 KM |
| Pill Road, Hook, Haverfordwest, Pembrokeshire, SA62 | £ 440,000 | BUY | 7 / 10 | 0.01 KM |
| The Meads Drive, Hook, Haverfordwest | £ 320,000 | BUY | 7 / 10 | 0.24 KM |
| The Meads Drive, Hook, Haverfordwest | £ 330,000 | BUY | 7 / 10 | 0.24 KM |
Nearby Properties
| Address | Price | Distance |
|---|---|---|
| 24 Pill Road | £ 239,950 | 0.01 KM |
| 8 Pill Road | £ 120,000 | 0.01 KM |
| 50 Pill Road | £ 195,000 | 0.02 KM |
| The Brambles | £ 260,000 | 0.02 KM |
| 75 Pill Road | £ 230,000 | 0.04 KM |