In House says ..
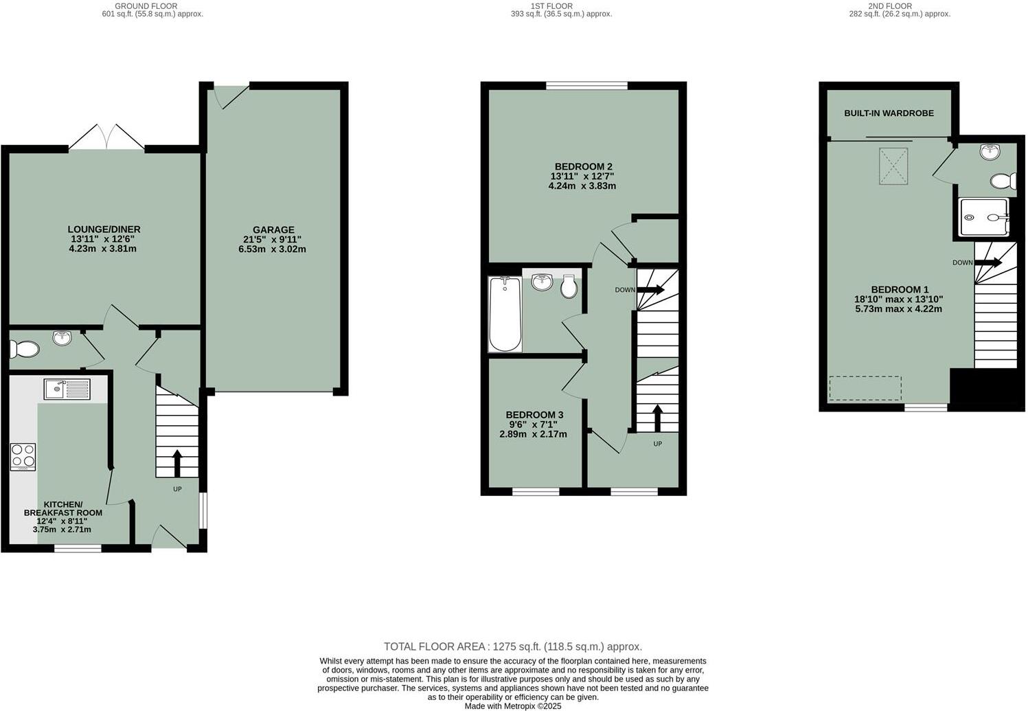
Arranged over three floors, this well-presented and stylish three-bedroom family home features an en-suite to the master bedroom, a spacious kitchen with integral appliances, a cloakroom, a south-west facing rear garden, off-street parking and a garage. Ideal for those looking for a homely proper...
Property Oracle says ..
The property is a semi-detached house located in Didcot, Oxfordshire. It features 3 bedrooms, 2 bathrooms, and a garden. The location is convenient for families, with nearby schools and transportation links. The property appears to be in good condition. The price is slightly above the average for the area.
Therefore, we give this property 7 / 10. *Disclaimer: This is our option and does constitute a recommendation or financial advice. Do your own research. *
- Price
- 6
- Condition
- 8
- Location
- 8
- Land
- 7
- Bedrooms
- 3
- Bathrooms
- 2
- Sqft (est)
- 1,275.52
The heatmap indicates the level of crime in the area. The color of the heatmap indicates the crime severity and recency.
Metrics Year-on-Year
- Average area value
- 379,000.00 £Increased by 7.45 %
- Est sale value
- 317,604.48 £Decreased by 29.66 %
- Average area rental value
- 1,688.00 £/moIncreased by 18.37 %
- Est letting value
- 1,275.52 £/moUnchanged by 0.00 %
- Est rental Yield
- 5.34 %Increased by 10.10 %
- Crime Rate
- 10.00 %Unchanged by 0.00 %
Agent Activity
In House created the listing.
Nearby Schools
| Name | Type | Ofsted | Distance |
|---|---|---|---|
| Aureus Primary School | Academy Sponsor Led | 0.10 KM | |
| Didcot Primary Academy | Academy Sponsor Led | Outstanding | 0.71 KM |
| Utc Oxfordshire | University Technical College | Good | 0.96 KM |
| Aureus School | Academy Sponsor Led | 0.96 KM | |
| Stephen Freeman Community Primary School | Community School | Good | 0.99 KM |
Images
Nearby Streets
| Name | Average Price | Average Sqft | Distance |
|---|---|---|---|
| Sundew Close | £ 0 | 0 | 0.00 KM |
| Aster Close | £ 0 | 0 | 0.00 KM |
| Miles East | £ 0 | 0 | 0.00 KM |
| Abingdon Terrace | £ 275,000 | 0 | 0.00 KM |
| Avocet Close | £ 0 | 0 | 0.00 KM |
Nearby Transport
| Name | NLC | TLC | Distance |
|---|---|---|---|
| Didcot Parkway | 3030 | DID | 2.47 KM |
| Appleford | 3109 | APF | 4.79 KM |
| Culham | 3107 | CUM | 6.47 KM |
| Radley | 3118 | RAD | 9.70 KM |
Nearby Listings
| Address | Price | Type | Score | Distance |
|---|---|---|---|---|
| Clover Fields, Didcot | £ 395,000 | BUY | 7 / 10 | 0.00 KM |
| Clover Fields, Didcot | £ 450,000 | BUY | Unknown | 0.04 KM |
| Clover Fields, Didcot | £ 385,000 | BUY | Unknown | 0.04 KM |
| Crowberry Place, Didcot, OX11 | £ 379,950 | BUY | 6 / 10 | 0.12 KM |
| Reed Street, Didcot, OX11 | £ 450,000 | BUY | 8 / 10 | 0.12 KM |
Nearby Properties
| Address | Price | Distance |
|---|---|---|
| 13 Elbourne | £ 576,000 | 0.23 KM |
| 11 Elbourne | £ 385,000 | 0.23 KM |
| 10 Elbourne | £ 323,500 | 0.23 KM |
| 4 Elbourne | £ 339,000 | 0.23 KM |
| 16 Elbourne | £ 380,000 | 0.23 KM |