SH
Berkley Street, Eynesbury, St. Neots
By Sharman Quinney
£ 675,000
Reviews
2 out of 5 stars
Sharman Quinney says ..
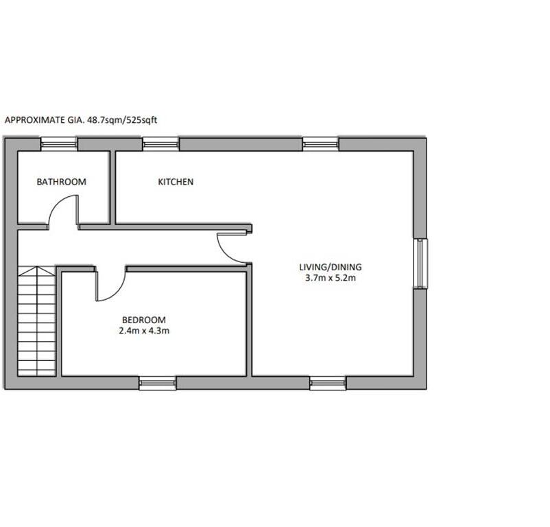
*ATTENTION INVESTORS* A rare opportunity to purchase a block of SIX flats, each with permission to have their own individual freeholds.
Property Oracle says ..
Therefore, we give this property 5 / 10. *Disclaimer: This is our option and does constitute a recommendation or financial advice. Do your own research. *
- Price
- 3
- Condition
- 6
- Location
- 8
- Land
- 3
- Bedrooms
- 6
- Bathrooms
- 6
- Sqft (est)
- 452.73
The heatmap indicates the level of crime in the area. The color of the heatmap indicates the crime severity and recency.
Metrics Year-on-Year
- Average area value
- 311,318.00 £Increased by 10.67 %
- Est sale value
- 141,704.49 £Decreased by 7.94 %
- Average area rental value
- 1,340.00 £/moIncreased by 9.48 %
- Est letting value
- 452.73 £/moUnchanged by 0.00 %
- Est rental Yield
- 5.17 %Decreased by 0.96 %
- Crime Rate
- 11.00 %Unchanged by 0.00 %
from 281,297.00 £
from 153,928.20 £
from 1,224.00 £/mo
from 452.73 £/mo
from 5.22 %
from 11.00 %
Agent Activity
Sharman Quinney created the listing.
Nearby Schools
| Name | Type | Ofsted | Distance |
|---|---|---|---|
| Eynesbury Cofe C Primary School | Voluntary Controlled School | Good | 0.57 KM |
| Winhills Primary Academy | Academy Sponsor Led | Good | 0.64 KM |
| Eynesbury Child And Family Centre | Children's Centre | 0.64 KM | |
| Ernulf Academy | Academy Sponsor Led | 0.87 KM | |
| Middlefield Primary Academy | Academy Converter | Outstanding | 0.90 KM |
Images
Nearby Streets
| Name | Average Price | Average Sqft | Distance |
|---|---|---|---|
| Sandy Court | £ 0 | 0 | 0.00 KM |
| Glenariff Close | £ 0 | 0 | 0.00 KM |
| St Neots Mobile Home Park | £ 0 | 0 | 0.00 KM |
| St Neots Road | £ 265,000 | 0 | 0.00 KM |
| Bedford Road | £ 232,500 | 0 | 0.00 KM |
Nearby Transport
| Name | NLC | TLC | Distance |
|---|---|---|---|
| St Neots | 6110 | SNO | 2.29 KM |
Nearby Listings
| Address | Price | Type | Score | Distance |
|---|---|---|---|---|
| Berkley Street, Eynesbury, St. Neots, Cambridgeshire, PE19 | £ 240,000 | BUY | 6 / 10 | 0.00 KM |
| Berkley Street, Eynesbury, St. Neots | £ 675,000 | BUY | 5 / 10 | 0.00 KM |
| Berkley Street, Eynesbury, St. Neots | £ 270,000 | BUY | Unknown | 0.04 KM |
| Howitts Lane, Eynesbury | £ 650,000 | BUY | 8 / 10 | 0.06 KM |
| Berkley Street, Eynesbury | £ 575,000 | BUY | 6 / 10 | 0.06 KM |
Nearby Properties
| Address | Price | Distance |
|---|---|---|
| 37 Berkley Street | £ 650,000 | 0.00 KM |
| 52 Berkley Street | £ 240,000 | 0.00 KM |
| 50 Berkley Street | £ 192,000 | 0.00 KM |
| 54 Berkley Street | £ 171,000 | 0.00 KM |
| 58 Berkley Street | £ 190,000 | 0.00 KM |