Holywell Hill, St Albans, AL1
AS

Holywell Hill, St Albans, AL1

By Ashtons

£ 1,150,000

Reviews

3 out of 5 stars

Ashtons says ..

Presenting a rare opportunity to acquire one of St Albans’ most historic properties. This stunning Grade II Listed home has spacious accommodation arranged over four floors and is in a revered position on Holywell Hill.

Property Oracle says ..

This is a charming terraced house located in a prime area of St Albans. The property features three bedrooms and one bathroom, with a blend of period features and modern updates. The location is highly desirable, with close proximity to schools, transportation, and local amenities. The property includes a rear garden, providing a private outdoor space. While generally in good condition, some areas may benefit from further refurbishment. The price is competitive for the area, making it an attractive opportunity for potential buyers.

Therefore, we give this property 7 / 10. *Disclaimer: This is our option and does constitute a recommendation or financial advice. Do your own research. *

Price
7
Condition
7
Location
8
Land
6
Bedrooms
3
Bathrooms
1
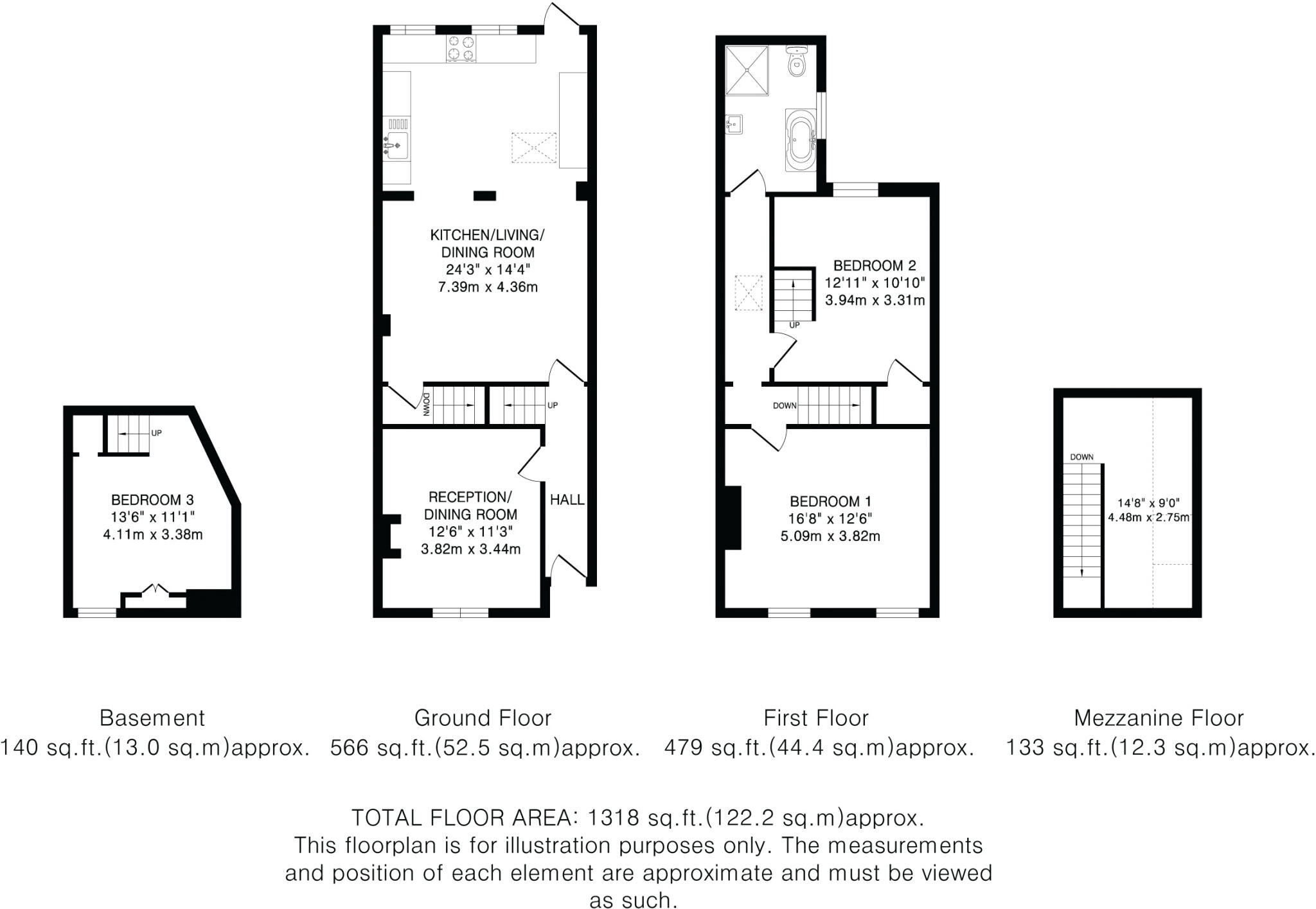
Sqft (est)
1,318.00

The heatmap indicates the level of crime in the area. The color of the heatmap indicates the crime severity and recency.

Metrics Year-on-Year

Average area value
1,245,000.00 £
Increased by 45.13 %
from 857,841.00 £
Est sale value
993,772.00 £
Decreased by 10.13 %
from 1,105,802.00 £
Average area rental value
2,513.00 £/mo
Increased by 0.60 %
from 2,498.00 £/mo
Est letting value
1,318.00 £/mo
Decreased by 50.00 %
from 2,636.00 £/mo
Est rental Yield
2.42 %
Decreased by 30.66 %
from 3.49 %
Crime Rate
8.00 %
Unchanged by 0.00 %
from 8.00 %

Agent Activity

  • Ashtons created the listing.

Nearby Schools

NameTypeOfstedDistance
The Abbey Church Of England Voluntary Aided Primary School, St AlbansVoluntary Aided SchoolGood0.18 KM
St Albans SchoolOther Independent School0.53 KM
Sa6 St Albans Family CentreChildren's Centre0.64 KM
St Peter'S SchoolCommunity SchoolGood0.73 KM
Muriel Green Nursery SchoolLocal Authority Nursery SchoolGood0.76 KM

Images

Front View Living/Kitchen Kitchen Bedroom Aerial View Entrance Hall Living/Kitchen Living/Kitchen Living Kitchen Reception Reception Bedroom Bedroom Bedroom Stairs to Mezzanine Gallery Mezzanine Bedroom Bathroom Bedroom Bedroom Garden Garden Aerial View Aerial View Aerial View

Nearby Streets

NameAverage PriceAverage SqftDistance
Orchard House Lane £ 000.00 KM
Lady Spencer's Grove £ 000.00 KM
Cross Street £ 000.00 KM
The Brambles £ 374,99900.00 KM
Jubilee Square £ 200,83300.00 KM

Nearby Transport

NameNLCTLCDistance
St Albans Abbey1562SAA0.47 KM
St Albans City1548SAC1.53 KM
Park Street1561PKT2.59 KM
How Wood (Hertfordshire)1563HWW3.47 KM
Bricket Wood1560BWO5.21 KM

Nearby Listings

AddressPriceTypeScoreDistance
Holywell Hill, St Albans, AL1 £ 1,150,000BUY7 / 100.00 KM
Holywell Hill, St. Albans, Hertfordshire, AL1 £ 2,500,000BUY6 / 100.05 KM
Abbey Court, Holywell Hill, St Albans, Hertfordshire, AL1 £ 400,000BUY6 / 100.09 KM
Belmont Hill, St. Albans £ 375,000BUY5 / 100.12 KM
Belmont Court, St Albans, AL1 £ 350,000BUY5 / 100.12 KM

Nearby Properties

AddressPriceDistance
42 Holywell Hill £ 625,0000.03 KM
52 Holywell Hill £ 565,0000.03 KM
64 Holywell Hill £ 565,0000.03 KM
Orchard House £ 3,450,0000.03 KM
50 Holywell Hill £ 900,0000.03 KM