Pymm & Co says ..
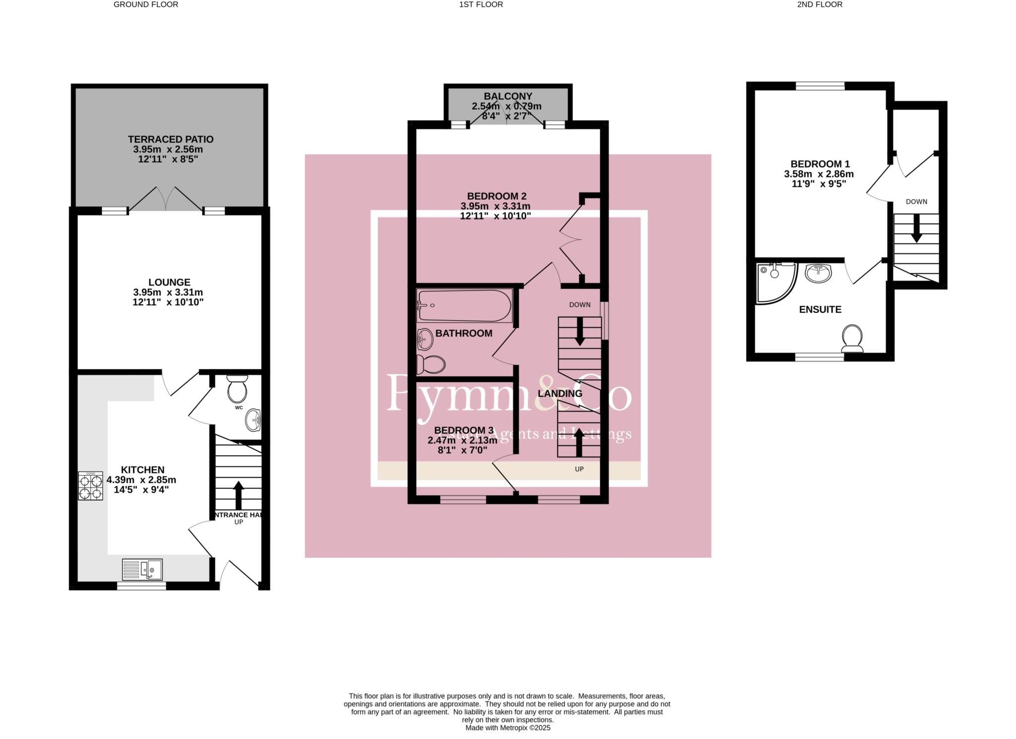
Guide Price £280,000 - £290,000. No Onward Chain, Tucked Away In A Cul-De-Sac Location, Three Bedrooms, Lounge With French Doors To A Terrace Overlooking The River, En-Suite & Family Bathroom, Off Road Parking, Single Garage, Lanscaped Communal Grounds Adjacent To The River With Seating Areas.
Property Oracle says ..
This property is a 3 bedroom, 2 bathroom house located in Norwich, Norfolk. It is situated in a desirable location close to several schools and transport links. The property appears to be in excellent condition, with a modern kitchen and bathrooms. The property benefits from a communal garden area, which overlooks a river. The list price is slightly above the average price per square foot for the area, but given the condition and location, it is considered reasonable.
Therefore, we give this property 8 / 10. *Disclaimer: This is our option and does constitute a recommendation or financial advice. Do your own research. *
- Price
- 8
- Condition
- 9
- Location
- 9
- Land
- 7
- Bedrooms
- 3
- Bathrooms
- 2
- Sqft (est)
- 713.65
The heatmap indicates the level of crime in the area. The color of the heatmap indicates the crime severity and recency.
Metrics Year-on-Year
- Average area value
- 188,750.00 £Decreased by 28.85 %
- Est sale value
- 219,090.55 £Increased by 59.07 %
- Average area rental value
- 993.00 £/moDecreased by 3.31 %
- Est letting value
- 713.65 £/mo
- Est rental Yield
- 6.31 %Increased by 35.70 %
- Crime Rate
- 1.00 %Unchanged by 0.00 %
Agent Activity
Pymm & Co created the listing.
Nearby Schools
| Name | Type | Ofsted | Distance |
|---|---|---|---|
| Nelson Infant School | Academy Sponsor Led | 0.38 KM | |
| Wensum Junior School | Academy Sponsor Led | Good | 0.76 KM |
| Notre Dame Preparatory School (Norwich) Limited | Other Independent School | 0.81 KM | |
| Mile Cross Primary School | Community School | Outstanding | 1.18 KM |
| Red Balloon - Norwich | Other Independent School | 1.19 KM |
Images
Nearby Streets
| Name | Average Price | Average Sqft | Distance |
|---|---|---|---|
| Arderon Court | £ 0 | 0 | 0.00 KM |
| Finchley Court | £ 225,000 | 0 | 0.00 KM |
| Hawthorne Row | £ 0 | 0 | 0.00 KM |
| Hansard Road | £ 252,500 | 0 | 0.00 KM |
| Burgess Road | £ 0 | 0 | 0.00 KM |
Nearby Transport
| Name | NLC | TLC | Distance |
|---|---|---|---|
| Norwich | 7309 | NRW | 3.93 KM |
Nearby Listings
| Address | Price | Type | Score | Distance |
|---|---|---|---|---|
| Old Laundry Court, Norwich | £ 280,000 | BUY | 8 / 10 | 0.00 KM |
| Old Laundry Court, Norwich | £ 400,000 | BUY | 7 / 10 | 0.03 KM |
| Old Laundry Court, Norwich | £ 310,000 | BUY | 6 / 10 | 0.10 KM |
| Northumberland Street, Norwich, Norfolk, NR2 | £ 280,000 | BUY | 7 / 10 | 0.12 KM |
| Northumberland Street, Norwich | £ 250,000 | BUY | 7 / 10 | 0.12 KM |
Nearby Properties
| Address | Price | Distance |
|---|---|---|
| 21 Old Laundry Court | £ 129,675 | 0.09 KM |
| 22 Old Laundry Court | £ 308,000 | 0.09 KM |
| 16 Old Laundry Court | £ 307,291 | 0.09 KM |
| 8 Old Laundry Court | £ 205,000 | 0.09 KM |
| 15 Old Laundry Court | £ 227,000 | 0.09 KM |