James.Dean says ..
Situated in a popular residential area is this three bed, mid-terrace house. In need of modernisation it has lots of potential. No chain!
Property Oracle says ..
This three-bedroom terraced house in Brecon, Powys is listed at £180,000. The property is in need of modernisation, as seen in the photographs, which show dated interiors and decor. While the location is close to several schools (Ysgol Penmaes, Mount Street C.P. Infants, Mount Street C.P. Junior, Christ College, and Brecon High School), the lack of information on Ofsted ratings prevents a comprehensive assessment of their quality. The property includes a small, paved rear garden. Compared to the average price per square foot in the area (£349), and considering the condition and the need for renovations, the asking price might be considered reasonable. However, nearby comparable properties show a range of prices, suggesting that the market value could vary.
Therefore, we give this property 4 / 10. *Disclaimer: This is our option and does constitute a recommendation or financial advice. Do your own research. *
- Price
- 6
- Condition
- 4
- Location
- 6
- Land
- 3
- Bedrooms
- 3
- Bathrooms
- 1
- Sqft (est)
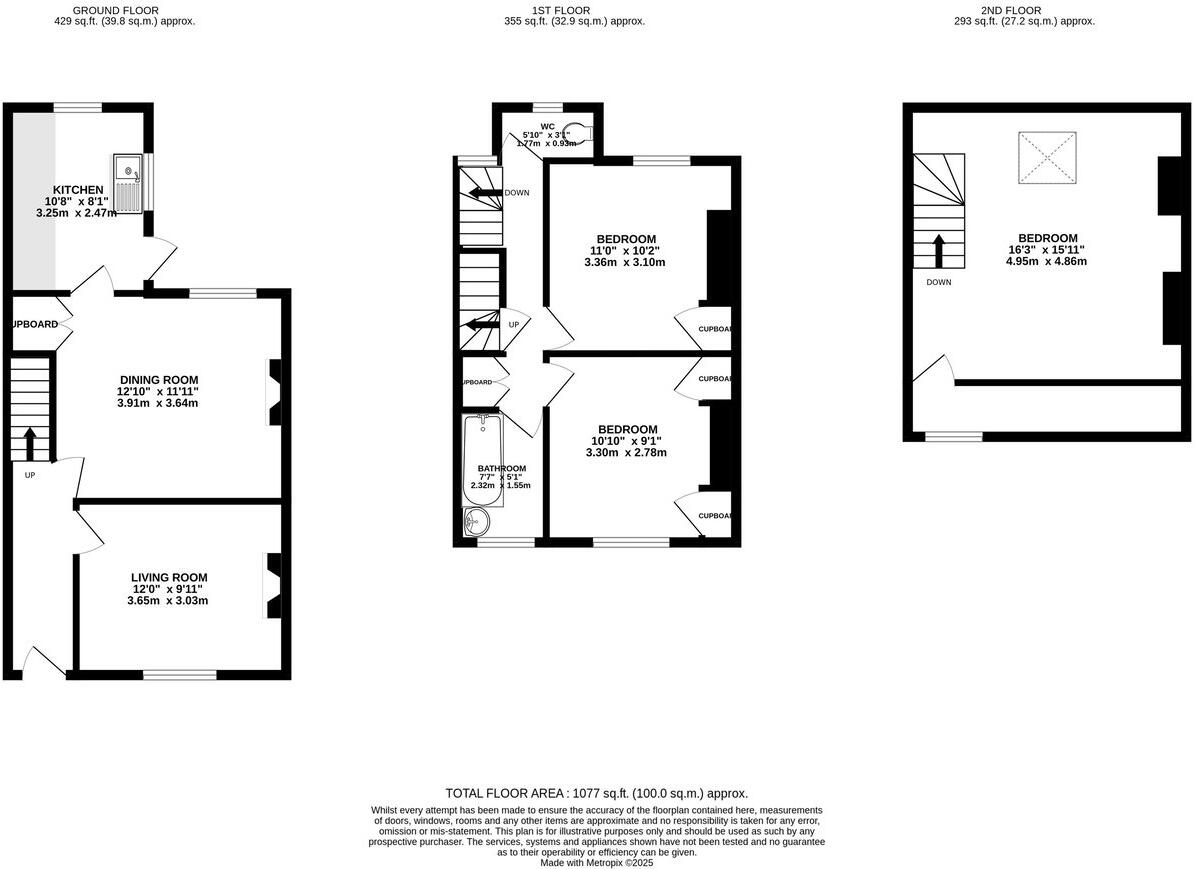
- 1,076.39
The heatmap indicates the level of crime in the area. The color of the heatmap indicates the crime severity and recency.
Metrics Year-on-Year
- Average area value
- 345,914.00 £Increased by 15.18 %
- Est sale value
- 289,548.91 £Increased by 1.51 %
- Average area rental value
- 853.00 £/moDecreased by 19.76 %
- Est letting value
- 0.00 £/mo
- Est rental Yield
- 2.96 %Decreased by 30.35 %
- Crime Rate
- 25.00 %Unchanged by 0.00 %
Agent Activity
James.Dean created the listing.
Nearby Schools
| Name | Type | Ofsted | Distance |
|---|---|---|---|
| Ysgol Penmaes | Welsh Establishment | 0.28 KM | |
| Mount Street C.P. Infants | Welsh Establishment | 0.56 KM | |
| Mount Street C.P. Junior | Welsh Establishment | 0.62 KM | |
| Christ College | Welsh Establishment | 0.75 KM | |
| Brecon High School | Welsh Establishment | 0.92 KM |
Images
Nearby Streets
| Name | Average Price | Average Sqft | Distance |
|---|---|---|---|
| Rich Way | £ 0 | 0 | 0.00 KM |
| Conway Terrace | £ 0 | 0 | 0.00 KM |
| B4601 | £ 310,000 | 0 | 0.00 KM |
| Canalside | £ 0 | 0 | 0.00 KM |
| Lansdowne Terrace | £ 212,475 | 0 | 0.00 KM |
Nearby Listings
| Address | Price | Type | Score | Distance |
|---|---|---|---|---|
| Conway Street, Brecon, Powys | £ 220,000 | BUY | Unknown | 0.00 KM |
| Conway Street, Brecon, LD3 | £ 180,000 | BUY | 4 / 10 | 0.00 KM |
| Brecon, LD3 | £ 295,000 | BUY | 7 / 10 | 0.08 KM |
| Cross Yard, Brecon, Powys | £ 450,000 | BUY | 7 / 10 | 0.09 KM |
| Watton, Brecon, LD3 | £ 185,000 | BUY | 5 / 10 | 0.11 KM |
Nearby Properties
| Address | Price | Distance |
|---|---|---|
| 4 Conway Street | £ 126,000 | 0.00 KM |
| 12 Conway Street | £ 145,000 | 0.00 KM |
| 8 Conway Street | £ 210,000 | 0.00 KM |
| 13 Conway Street | £ 220,000 | 0.00 KM |
| 11 Conway Street | £ 189,950 | 0.00 KM |