Matthew James says ..
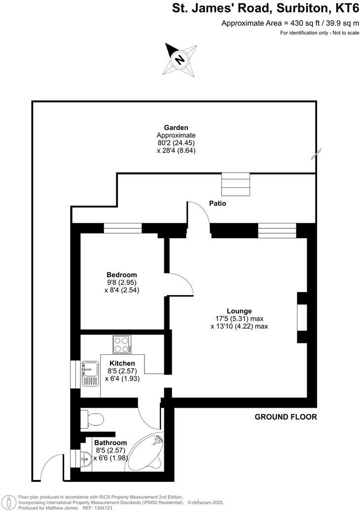
An excellent ground floor one-bedroom garden-floor apartment, with a large private south-west-facing walled garden. Located within the heart of Surbiton, a few minutes walk from the mainline station and high street. The many benefits included a large living room with ample sitting and dining spac...
Property Oracle says ..
Therefore, we give this property 6 / 10. *Disclaimer: This is our option and does constitute a recommendation or financial advice. Do your own research. *
- Price
- 5
- Condition
- 7
- Location
- 8
- Land
- 7
- Bedrooms
- 1
- Bathrooms
- 1
- Sqft (est)
- 430.00
The heatmap indicates the level of crime in the area. The color of the heatmap indicates the crime severity and recency.
Metrics Year-on-Year
- Average area value
- 401,729.00 £Decreased by 10.51 %
- Est sale value
- 221,880.00 £Increased by 7.28 %
- Average area rental value
- 1,630.00 £/moDecreased by 14.30 %
- Est letting value
- 860.00 £/moUnchanged by 0.00 %
- Est rental Yield
- 4.87 %Decreased by 4.13 %
- Crime Rate
- 4.00 %Unchanged by 0.00 %
from 448,918.00 £
from 206,830.00 £
from 1,902.00 £/mo
from 860.00 £/mo
from 5.08 %
from 4.00 %
Agent Activity
Matthew James created the listing.
Nearby Schools
| Name | Type | Ofsted | Distance |
|---|---|---|---|
| St Andrew'S And St Mark'S Cofe Junior School | Voluntary Aided School | Outstanding | 0.13 KM |
| Maple Infants' School | Community School | Good | 0.20 KM |
| Surbiton Town Children'S Centre | Children's Centre Linked Site | 0.33 KM | |
| Surbiton High School | Other Independent School | 0.71 KM | |
| Richmond And Hillcroft Adult And Community College (Rhacc) | Further Education | Good | 0.74 KM |
Images
Nearby Streets
| Name | Average Price | Average Sqft | Distance |
|---|---|---|---|
| Crummocks Chase | £ 332,500 | 0 | 0.00 KM |
| Spring Cottages | £ 0 | 0 | 0.00 KM |
| Little Dell | £ 449,967 | 0 | 0.00 KM |
| Brighton Road | £ 0 | 0 | 0.00 KM |
| Surbiton Court Mews | £ 0 | 0 | 0.00 KM |
Nearby Transport
| Name | NLC | TLC | Distance |
|---|---|---|---|
| Surbiton | 5571 | SUR | 0.43 KM |
| Kingston | 5565 | KNG | 2.21 KM |
| Hampton Wick | 5589 | HMW | 2.35 KM |
| Berrylands | 5581 | BRS | 3.02 KM |
| Norbiton | 5568 | NBT | 3.31 KM |
Nearby Listings
| Address | Price | Type | Score | Distance |
|---|---|---|---|---|
| St. James Road, Surbiton | £ 325,000 | BUY | 6 / 10 | 0.00 KM |
| St. James Road, Surbiton | £ 599,950 | BUY | Unknown | 0.01 KM |
| North Road, Surbiton | £ 450,000 | BUY | 8 / 10 | 0.03 KM |
| St. James' Road, Surbiton | £ 350,000 | BUY | 5 / 10 | 0.04 KM |
| North Road, Surbiton | £ 320,000 | BUY | 6 / 10 | 0.05 KM |
Nearby Properties
| Address | Price | Distance |
|---|---|---|
| 39 St James Road | £ 472,090 | 0.03 KM |
| 41c St James Road | £ 223,000 | 0.04 KM |
| 72b St James Road | £ 249,950 | 0.04 KM |
| 41b St James Road | £ 79,000 | 0.04 KM |
| 72a St James Road | £ 234,950 | 0.04 KM |