Paxman Avenue, Colchester
OA

Paxman Avenue, Colchester

By Oakheart Property

£ 450,000

Reviews

3 out of 5 stars

Oakheart Property says ..

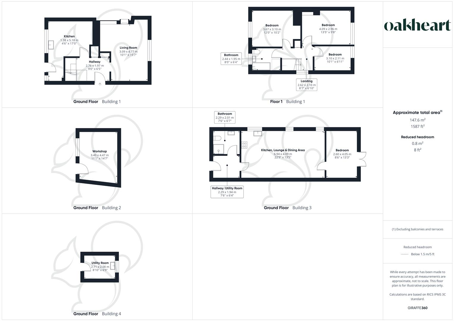
Set on a quiet and sought-after residential road within easy reach of Colchester City Centre, an extended semi-detached home offers a rare and highly flexible living arrangement. Boasting a detached, fully self-contained annexe and a generous private garden, the property is perfectly suited to gr...

Property Oracle says ..

Therefore, we give this property 7 / 10. *Disclaimer: This is our option and does constitute a recommendation or financial advice. Do your own research. *

Price
8
Condition
6
Location
8
Land
7
Bedrooms
5
Bathrooms
2
Sqft (est)
1,468.74

The heatmap indicates the level of crime in the area. The color of the heatmap indicates the crime severity and recency.

Metrics Year-on-Year

Average area value
288,750.00 £
Decreased by 18.46 %
from 354,129.00 £
Est sale value
612,464.58 £
Increased by 30.31 %
from 469,996.80 £
Average area rental value
1,264.00 £/mo
Increased by 3.02 %
from 1,227.00 £/mo
Est letting value
1,468.74 £/mo
Unchanged by 0.00 %
from 1,468.74 £/mo
Est rental Yield
5.25 %
Increased by 26.20 %
from 4.16 %
Crime Rate
23.00 %
Unchanged by 0.00 %
from 23.00 %

Agent Activity

  • Oakheart Property created the listing.

Nearby Schools

NameTypeOfstedDistance
Paxman AcademyFree Schools0.22 KM
Gosbecks Primary SchoolCommunity SchoolGood0.34 KM
Prettygate Junior SchoolCommunity SchoolGood0.74 KM
Prettygate Infant SchoolCommunity SchoolGood0.74 KM
Iceni AcademyAcademy Sponsor LedGood1.02 KM

Images

CAM01659G0-PR0459-STILL040.jpg CAM01659G0-PR0459-STILL002.jpg CAM01659G0-PR0459-STILL005.jpg CAM01659G0-PR0459-STILL020.jpg CAM01659G0-PR0459-STILL001.jpg CAM01659G0-PR0459-STILL003.jpg CAM01659G0-PR0459-STILL004.jpg CAM01659G0-PR0459-STILL025.jpg CAM01659G0-PR0459-STILL029.jpg CAM01659G0-PR0459-STILL023.jpg CAM01659G0-PR0459-STILL008.jpg CAM01659G0-PR0459-STILL012.jpg CAM01659G0-PR0459-STILL030.jpg CAM01659G0-PR0459-STILL013.jpg CAM01659G0-PR0459-STILL006.jpg CAM01659G0-PR0459-STILL007.jpg CAM01659G0-PR0459-STILL016.jpg CAM01659G0-PR0459-STILL017.jpg CAM01659G0-PR0459-STILL018.jpg CAM01659G0-PR0459-STILL009.jpg CAM01659G0-PR0459-STILL015.jpg CAM01659G0-PR0459-STILL019.jpg CAM01659G0-PR0459-STILL021.jpg CAM01659G0-PR0459-STILL022.jpg CAM01659G0-PR0459-STILL032.jpg CAM01659G0-PR0459-STILL034.jpg CAM01659G0-PR0459-STILL036.jpg CAM01659G0-PR0459-STILL037.jpg CAM01659G0-PR0459-STILL038.jpg CAM01659G0-PR0459-STILL039.jpg CAM01659G0-PR0459-STILL024.jpg CAM01659G0-PR0459-STILL026.jpg CAM01659G0-PR0459-STILL031.jpg CAM01659G0-PR0459-STILL033.jpg

Nearby Streets

NameAverage PriceAverage SqftDistance
Bellona Way £ 400,00000.00 KM
Temple Road £ 000.00 KM
Veritas Grove £ 375,00000.00 KM
Greystones Close £ 000.00 KM
Venus Road £ 375,00000.00 KM

Nearby Transport

NameNLCTLCDistance
Colchester6861COL4.29 KM
Colchester Town6853CET4.47 KM
Hythe (Essex)6851HYH6.85 KM
Marks Tey6863MKT9.33 KM
Wivenhoe6860WIV9.97 KM

Nearby Listings

AddressPriceTypeScoreDistance
Paxman Avenue, Colchester £ 450,000BUY7 / 100.00 KM
Hazell Avenue, Colchester, Essex, CO2 £ 220,000BUY7 / 100.05 KM
Hazell Avenue, Colchester £ 425,000BUYUnknown0.09 KM
Paxman Avenue, Colchester, Essex, CO2 £ 425,000BUY6 / 100.09 KM
87 Hazell Avenue, Colchester, Essex, CO2 £ 220,000BUY6 / 100.10 KM

Nearby Properties

AddressPriceDistance
23 Paxman Avenue £ 248,0000.03 KM
27 Paxman Avenue £ 179,9950.03 KM
34 Paxman Avenue £ 125,0000.03 KM
99 Hazell Avenue £ 125,0000.09 KM
81 Hazell Avenue £ 140,0000.09 KM