Yopa says ..
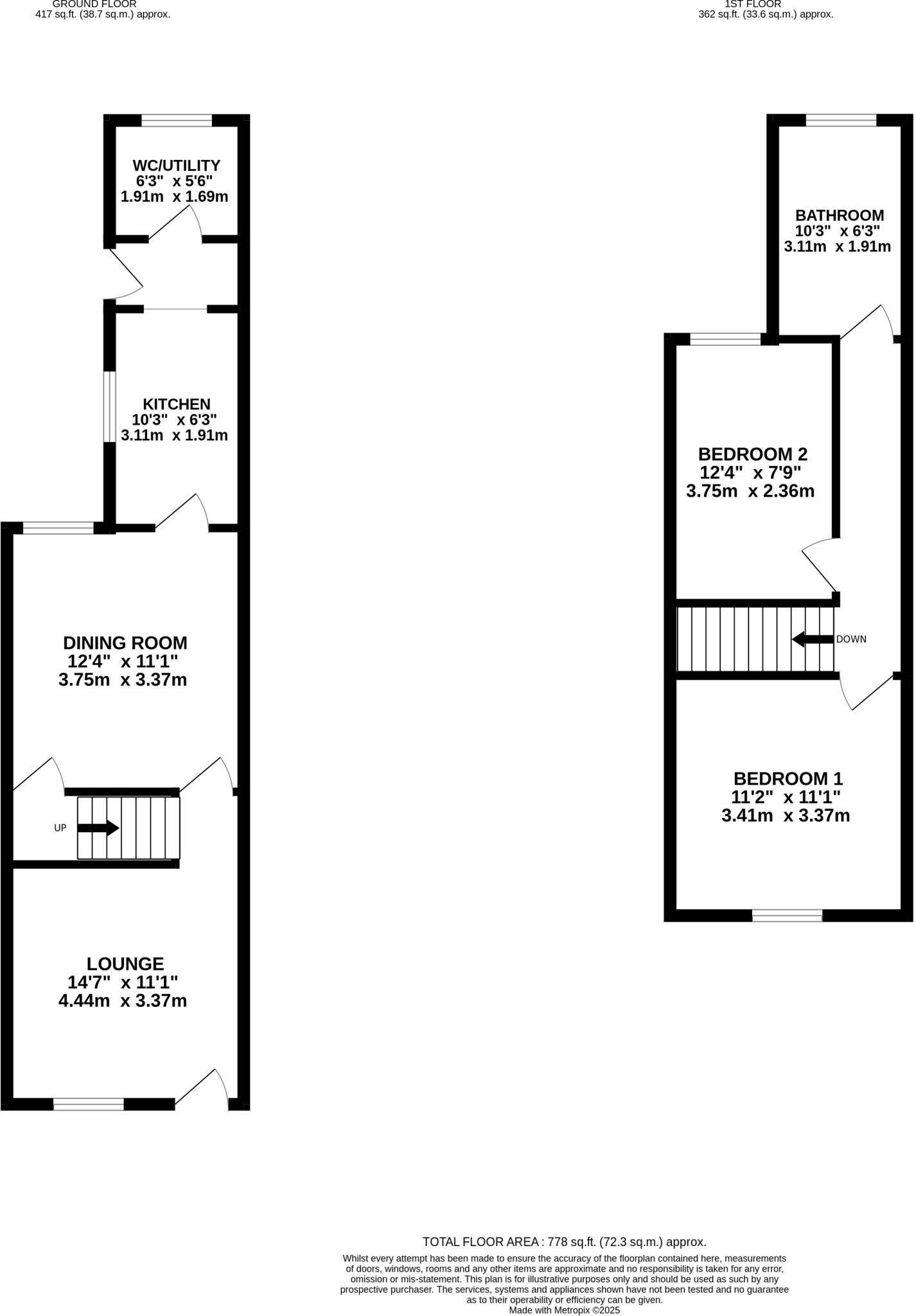
This charming 2-bed mid-terraced property in Normanton, Derby, features two reception rooms, a modern galley kitchen, ground-floor WC/utility, and a family bathroom. With double glazing, gas central heating, and spacious rooms, it's an ideal home for first-time buyers or small families.
Property Oracle says ..
This is a two-bedroom terraced house located on Holcombe Street in Derby’s Arboretum area. The property offers two bathrooms and approximately 778.23 square feet of living space. While the house is situated in a convenient location near schools and transportation, the interior condition suggests a need for modernisation. The asking price of £140,000 appears competitive, especially considering the lower-than-average price per square foot compared to other properties in the area. This property could be a good opportunity for buyers looking to add value through renovation.
Therefore, we give this property 5 / 10. *Disclaimer: This is our option and does constitute a recommendation or financial advice. Do your own research. *
- Price
- 7
- Condition
- 5
- Location
- 6
- Land
- 3
- Bedrooms
- 2
- Bathrooms
- 2
- Sqft (est)
- 778.23
The heatmap indicates the level of crime in the area. The color of the heatmap indicates the crime severity and recency.
Metrics Year-on-Year
- Average area value
- 241,538.00 £Increased by 19.85 %
- Est sale value
- 246,698.91 £Increased by 20.99 %
- Average area rental value
- 906.00 £/moIncreased by 1.12 %
- Est letting value
- 778.23 £/moUnchanged by 0.00 %
- Est rental Yield
- 4.50 %Decreased by 15.73 %
- Crime Rate
- 9.00 %Unchanged by 0.00 %
Agent Activity
Yopa created the listing.
Nearby Schools
| Name | Type | Ofsted | Distance |
|---|---|---|---|
| Pear Tree | Children's Centre Linked Site | 0.27 KM | |
| Pear Tree Infant School | Community School | Good | 0.32 KM |
| Pear Tree Community Junior School | Academy Sponsor Led | 0.32 KM | |
| Harrington Nursery School | Local Authority Nursery School | Outstanding | 0.53 KM |
| Arboretum Primary School | Academy Converter | 0.54 KM |
Images
Nearby Streets
| Name | Average Price | Average Sqft | Distance |
|---|---|---|---|
| Saint Thomas Road | £ 0 | 0 | 0.00 KM |
| Pear Tree Crescent | £ 186,667 | 0 | 0.00 KM |
| Joseph Street | £ 0 | 0 | 0.00 KM |
| Haslemere Court | £ 90,000 | 0 | 0.00 KM |
| Osmaston Park Road | £ 0 | 0 | 0.00 KM |
Nearby Transport
| Name | NLC | TLC | Distance |
|---|---|---|---|
| Peartree | 1687 | PEA | 0.88 KM |
| Derby | 1823 | DBY | 1.66 KM |
| Spondon | 1699 | SPO | 6.87 KM |
| Duffield | 1691 | DFI | 9.41 KM |
Nearby Listings
| Address | Price | Type | Score | Distance |
|---|---|---|---|---|
| Holcombe Street, Derby, DE23 | £ 140,000 | BUY | 5 / 10 | 0.00 KM |
| Holcombe Street, Derbyshire, DE23 | £ 135,000 | BUY | 4 / 10 | 0.01 KM |
| Holcombe Street, Derby, Derbyshire, DE23 | £ 135,000 | BUY | 5 / 10 | 0.01 KM |
| Olivier Street, Derby | £ 210,000 | BUY | 6 / 10 | 0.02 KM |
| Rutland Street, Derby, Derbyshire | £ 150,000 | BUY | 6 / 10 | 0.08 KM |
Nearby Properties
| Address | Price | Distance |
|---|---|---|
| 15 Holcombe Street | £ 128,000 | 0.02 KM |
| 19 Holcombe Street | £ 65,000 | 0.02 KM |
| 25 Holcombe Street | £ 76,000 | 0.02 KM |
| 38 Holcombe Street | £ 60,000 | 0.02 KM |
| 12 Holcombe Street | £ 130,000 | 0.02 KM |