The VIneyards, Great Baddow, CM2
By Northwood
£ 150,000
Reviews
3 out of 5 stars
Northwood says ..
OFFERS IN EXCESS OF £150,000 : Northwood Chelmsford are pleased to offer this well-presented 1 Bedroom top floor apartment. Situated above The Vineyards shopping precinct with panoramic views across Great Baddow and the surrounding countryside. One double bedroom with l...
Property Oracle says ..
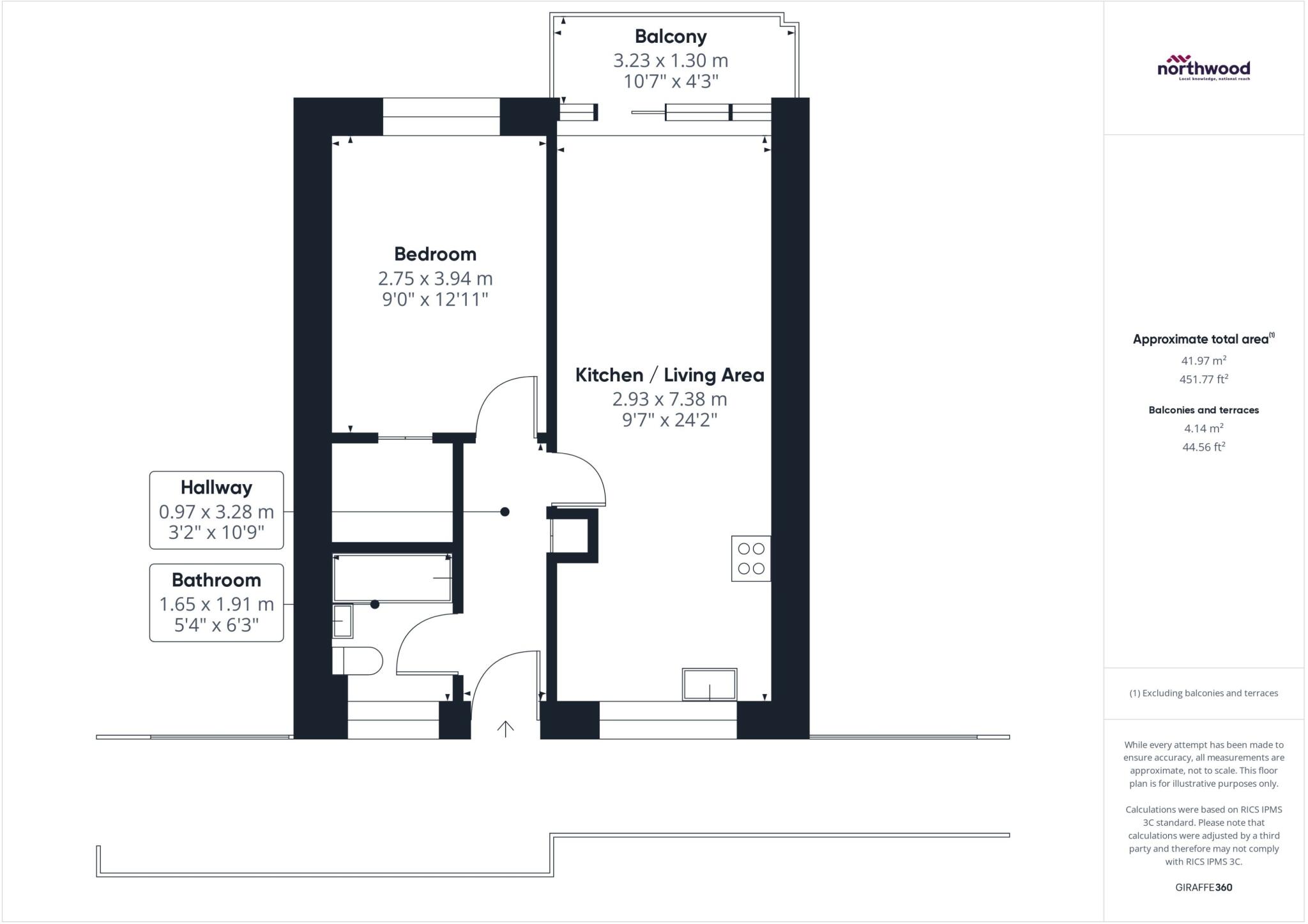
This property is a one-bedroom apartment located in Great Baddow, Essex. The apartment appears to be in good condition, recently renovated with modern fixtures and finishes. The photos show a modern kitchen and bathroom, as well as a spacious living area with a balcony offering views of the surrounding area. While the plot size is 0.00 sqft, the apartment benefits from allocated parking. Great Baddow is a popular area with good local amenities and schools. The property is listed at £150,000 which is significantly lower than the average price for the area (£377,613). Considering the average price per sqft in the area is £367 and this property is 451.76 sqft, a more appropriate price might be around £165,000. However, given the current market conditions and the lower price point, this property could represent good value for money, particularly for first-time buyers or investors. The proximity to schools and transport links adds to its appeal.
Therefore, we give this property 6 / 10. *Disclaimer: This is our option and does constitute a recommendation or financial advice. Do your own research. *
- Price
- 7
- Condition
- 9
- Location
- 8
- Land
- 1
- Bedrooms
- 1
- Bathrooms
- 1
- Sqft (est)
- 451.76
The heatmap indicates the level of crime in the area. The color of the heatmap indicates the crime severity and recency.
Metrics Year-on-Year
- Average area value
- 514,000.00 £Increased by 24.02 %
- Est sale value
- 178,445.20 £Increased by 6.76 %
- Average area rental value
- 1,304.00 £/moIncreased by 31.58 %
- Est letting value
- 451.76 £/mo
- Est rental Yield
- 3.04 %Increased by 5.92 %
- Crime Rate
- 21.00 %Unchanged by 0.00 %
Agent Activity
Northwood created the listing.
Nearby Schools
| Name | Type | Ofsted | Distance |
|---|---|---|---|
| Baddow Hall Infant School | Community School | Good | 0.78 KM |
| Baddow Hall Junior School | Community School | Good | 0.78 KM |
| Meadgate Primary School | Academy Sponsor Led | Good | 1.10 KM |
| Larkrise Primary School | Academy Sponsor Led | Good | 1.17 KM |
| Woodcroft Nursery School | Local Authority Nursery School | Good | 1.18 KM |
Images
Nearby Streets
| Name | Average Price | Average Sqft | Distance |
|---|---|---|---|
| Friars Close | £ 375,000 | 0 | 0.00 KM |
| Manor Drive | £ 0 | 0 | 0.00 KM |
| The Spires | £ 0 | 0 | 0.00 KM |
| Hollycroft | £ 0 | 0 | 0.00 KM |
| Ruskin Road | £ 323,333 | 0 | 0.00 KM |
Nearby Transport
| Name | NLC | TLC | Distance |
|---|---|---|---|
| Chelmsford | 6836 | CHM | 4.16 KM |
Nearby Listings
| Address | Price | Type | Score | Distance |
|---|---|---|---|---|
| The VIneyards, Great Baddow, CM2 | £ 150,000 | BUY | 6 / 10 | 0.00 KM |
| The Vineyards, Great Baddow, CM2 | £ 150,000 | BUY | 6 / 10 | 0.00 KM |
| The Vineyards, Great Baddow, Chelmsford, Essex, CM2 | £ 140,000 | BUY | 6 / 10 | 0.00 KM |
| The Vineyards, Chelmsford, CM2 | £ 195,000 | BUY | 7 / 10 | 0.00 KM |
| The Vineyards Chelmsford | £ 220,000 | BUY | 5 / 10 | 0.00 KM |
Nearby Properties
| Address | Price | Distance |
|---|---|---|
| 72 The Vineyards | £ 127,000 | 0.00 KM |
| 43 The Vineyards | £ 125,000 | 0.00 KM |
| 69 The Vineyards | £ 165,000 | 0.00 KM |
| 36 The Vineyards | £ 135,000 | 0.00 KM |
| 79 The Vineyards | £ 119,995 | 0.00 KM |