Leaders Sales says ..
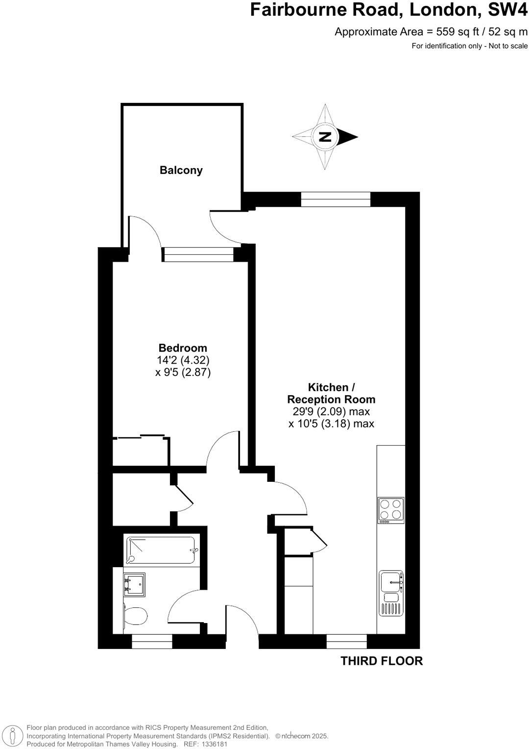
This beautifully presented third floor apartment is located in Clapham, close to local amenities and the London Underground. The elegant accommodation provides a double bedroom with built in wardrobes, bathroom, fully fitted kitchen open plan with a spacious living/dining room with doors opening ...
Property Oracle says ..
This is a one-bedroom apartment located in the Thornton area of Lambeth, London. The property is listed for £450,000 and has a square footage of 559. The apartment appears to be in good condition, with a modern interior and a balcony. The location is reasonably good, with access to nearby schools and transportation. The price seems fair when compared to average prices in the area. Overall, this property presents a decent opportunity for potential buyers or investors.
Therefore, we give this property 6 / 10. *Disclaimer: This is our option and does constitute a recommendation or financial advice. Do your own research. *
- Price
- 6
- Condition
- 8
- Location
- 7
- Land
- 5
- Bedrooms
- 1
- Bathrooms
- 1
- Sqft (est)
- 559.00
The heatmap indicates the level of crime in the area. The color of the heatmap indicates the crime severity and recency.
Metrics Year-on-Year
- Average area value
- 1,013,333.00 £Increased by 57.05 %
- Est sale value
- 536,640.00 £Increased by 32.60 %
- Average area rental value
- 2,574.00 £/moDecreased by 0.85 %
- Est letting value
- 1,118.00 £/moUnchanged by 0.00 %
- Est rental Yield
- 3.05 %Decreased by 36.85 %
- Crime Rate
- 4.00 %Unchanged by 0.00 %
Agent Activity
Leaders Sales created the listing.
Nearby Schools
| Name | Type | Ofsted | Distance |
|---|---|---|---|
| Maytree Nursery School & Children'S Centre | Children's Centre | 0.08 KM | |
| Maytree Nursery School | Local Authority Nursery School | Outstanding | 0.08 KM |
| Glenbrook Primary School | Community School | Good | 0.22 KM |
| Harris Academy Clapham | Free Schools | 0.22 KM | |
| Iqra Primary School | Voluntary Aided School | Outstanding | 0.45 KM |
Images
Nearby Streets
| Name | Average Price | Average Sqft | Distance |
|---|---|---|---|
| Notley Place | £ 0 | 0 | 0.00 KM |
| Donna Mews | £ 0 | 0 | 0.00 KM |
| Maple Close | £ 0 | 0 | 0.00 KM |
| King's Avenue | £ 0 | 0 | 0.00 KM |
| Headlam Road | £ 0 | 0 | 0.00 KM |
Nearby Transport
| Name | NLC | TLC | Distance |
|---|---|---|---|
| Streatham Hill | 5435 | SRH | 1.51 KM |
| Clapham High Street | 5301 | CLP | 1.61 KM |
| Wandsworth Road | 5372 | WWR | 2.26 KM |
| Brixton | 5081 | BRX | 2.36 KM |
| Balham | 5399 | BAL | 2.46 KM |
Nearby Listings
| Address | Price | Type | Score | Distance |
|---|---|---|---|---|
| Fairbourne Road, London | £ 450,000 | BUY | 7 / 10 | 0.00 KM |
| Fairbourne Road, London | £ 112,500 | BUY | 7 / 10 | 0.00 KM |
| Fairbourne Road, London, SW4 | £ 455,000 | BUY | Unknown | 0.00 KM |
| Fairbourne Road, London | £ 450,000 | BUY | 6 / 10 | 0.00 KM |
| Fairbourne Road, London, SW4 8DZ, Clapham, London, SW4 | £ 187,500 | BUY | 7 / 10 | 0.00 KM |
Nearby Properties
| Address | Price | Distance |
|---|---|---|
| 147 Clarence Crescent | £ 410,000 | 0.08 KM |
| 149 Clarence Crescent | £ 196,000 | 0.08 KM |
| 49 Clarence Crescent | £ 338,000 | 0.13 KM |
| 39 Clarence Crescent | £ 405,000 | 0.13 KM |
| 44 Clarence Crescent | £ 199,000 | 0.13 KM |