Seymours says ..
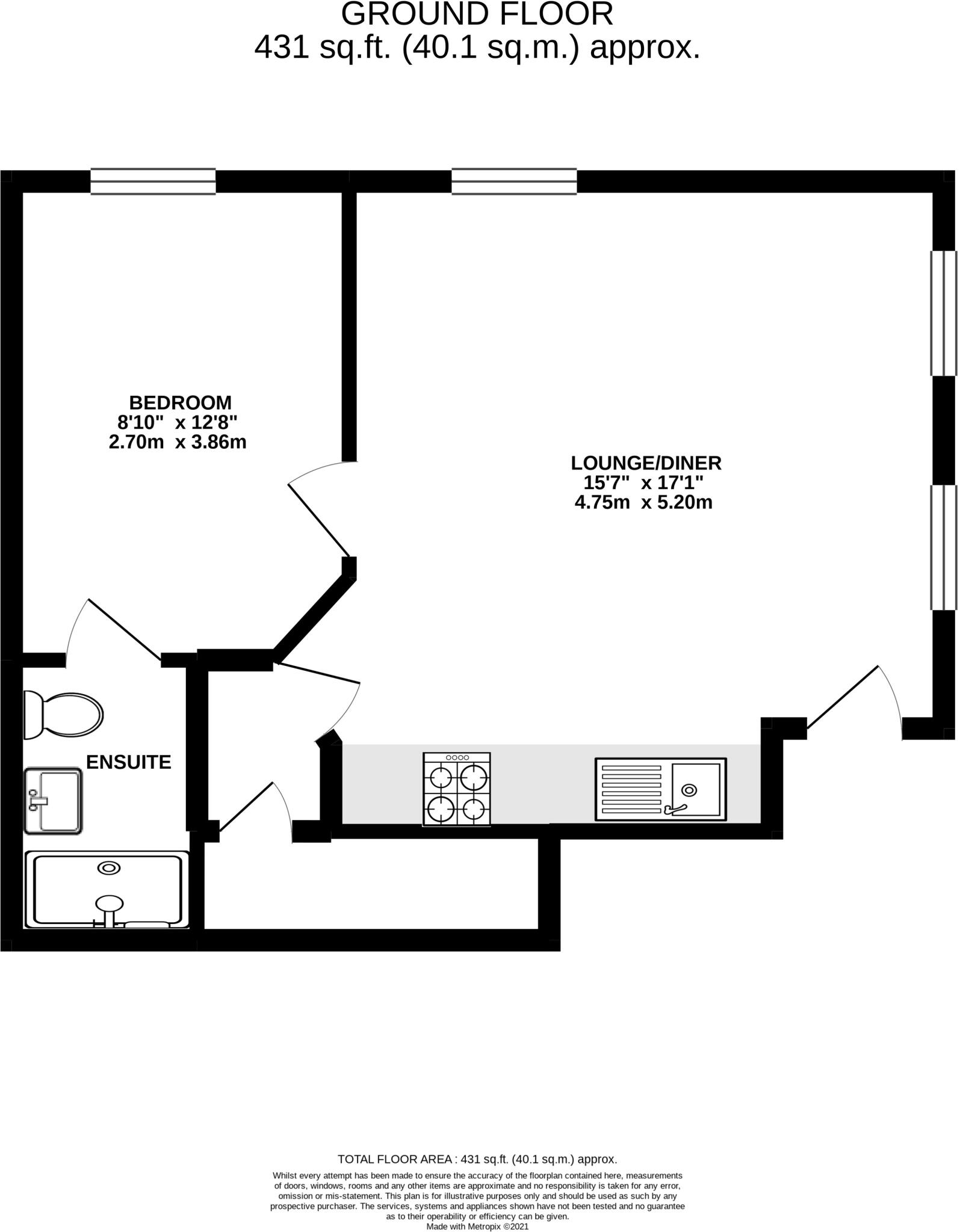
Situated in a block of just four apartments this one double bedroom ground floor property is perfectly located for Camberley town centre. The property boasts a large dual aspect open plan kitchen/living/dining room, en-suite shower room, and double bedroom, as well as a large storage ...
Property Oracle says ..
This is a one-bedroom flat located in St Michaels, Camberley. The property appears to be in good condition, with a modern kitchen and bathroom. While it doesn’t have a lot of land, its location offers good access to transportation and schools. The price seems reasonable for the area and the type of property. It would be ideally suited to a young professional or first-time buyer.
Therefore, we give this property 6 / 10. *Disclaimer: This is our option and does constitute a recommendation or financial advice. Do your own research. *
- Price
- 7
- Condition
- 8
- Location
- 7
- Land
- 3
- Bedrooms
- 1
- Bathrooms
- 1
The heatmap indicates the level of crime in the area. The color of the heatmap indicates the crime severity and recency.
Metrics Year-on-Year
- Average area value
- 226,464.00 £Decreased by 27.05 %
- Average area rental value
- 1,243.00 £/moDecreased by 7.99 %
- Est rental Yield
- 6.59 %Increased by 26.25 %
- Crime Rate
- 9.00 %Unchanged by 0.00 %
Agent Activity
Seymours created the listing.
Nearby Schools
| Name | Type | Ofsted | Distance |
|---|---|---|---|
| Lyndhurst School | Other Independent School | 0.87 KM | |
| South Camberley Primary And Nursery School | Academy Converter | 1.65 KM | |
| Hawley Primary School | Community School | Good | 1.68 KM |
| The Orchard Sure Start Children'S Centre | Children's Centre | 1.71 KM | |
| Kings International College | Foundation School | Good | 1.93 KM |
Images
Nearby Streets
| Name | Average Price | Average Sqft | Distance |
|---|---|---|---|
| Bracebridge | £ 0 | 0 | 0.00 KM |
| York Terrace Lane | £ 0 | 0 | 0.00 KM |
| Alexandra Avenue | £ 235,000 | 0 | 0.00 KM |
| Stanhope Road | £ 0 | 0 | 0.00 KM |
| Charles Street cycle path | £ 185,000 | 0 | 0.00 KM |
Nearby Transport
| Name | NLC | TLC | Distance |
|---|---|---|---|
| Blackwater | 5625 | BAW | 1.58 KM |
| Camberley | 5682 | CAM | 2.05 KM |
| Frimley | 5683 | FML | 3.05 KM |
| Farnborough North | 5688 | FNN | 4.21 KM |
| Farnborough (Main) | 5521 | FNB | 4.28 KM |
Nearby Listings
| Address | Price | Type | Score | Distance |
|---|---|---|---|---|
| Victoria Avenue, Camberley, GU15 | £ 195,000 | BUY | 6 / 10 | 0.00 KM |
| Victoria Avenue, Camberley, Surrey, GU15 | £ 200,000 | BUY | 4 / 10 | 0.03 KM |
| Camberley, Surrey, GU15 | £ 280,000 | BUY | Unknown | 0.06 KM |
| Victoria Avenue, Camberley | £ 200,000 | BUY | 6 / 10 | 0.08 KM |
| Avenue Court, 4a Victoria Avenue, Camberley, Surrey, GU15 3FT | £ 225,000 | BUY | Unknown | 0.08 KM |
Nearby Properties
| Address | Price | Distance |
|---|---|---|
| 22 Victoria Avenue | £ 172,000 | 0.02 KM |
| 24 Victoria Avenue | £ 260,000 | 0.02 KM |
| 26 Victoria Avenue | £ 220,000 | 0.02 KM |
| 8 Victoria Avenue | £ 283,000 | 0.02 KM |
| 18 Victoria Avenue | £ 350,000 | 0.02 KM |