Oldcastle Avenue, Newcastle, Staffordshire, ST5
By Reeds Rains
£ 165,000
Reviews
3 out of 5 stars
Reeds Rains says ..
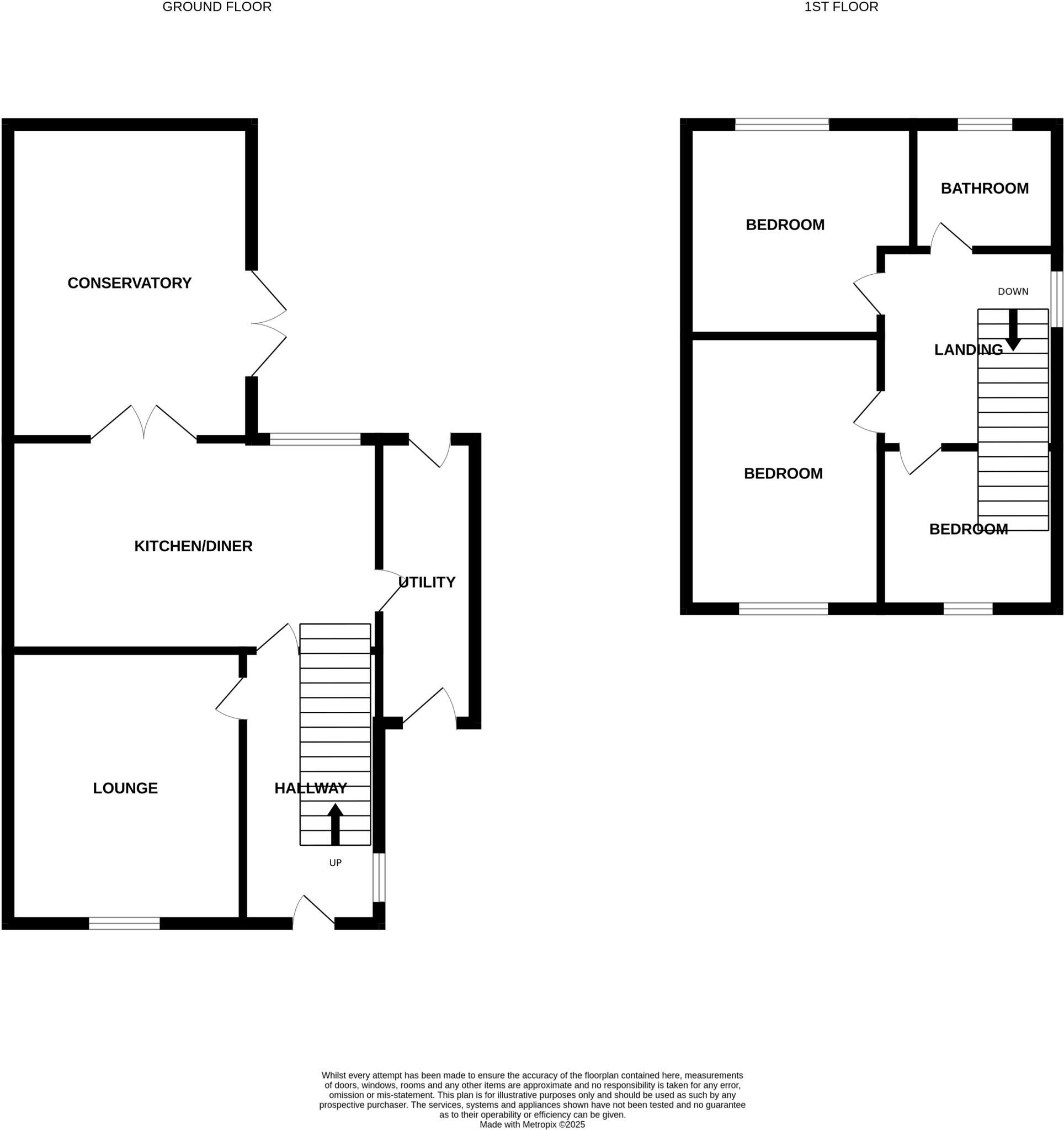
This well-presented three-bedroom semi-detached house on Oldcastle Avenue, Newcastle ST5, offers spacious living with two reception rooms, a large rear garden, off-road parking, and convenient access to excellent schools, local amenities, and transport links, making it an ideal choice for familie...
Property Oracle says ..
This is a three-bedroom semi-detached house located on Oldcastle Avenue in Bradwell, Newcastle-Under-Lyme. The property offers 1,064 sqft of living space and includes one bathroom. It features a modern kitchen and a conservatory. While generally in fair condition, some rooms would benefit from redecoration. The property has a good-sized garden with some outbuildings. The location is convenient, with nearby schools and transportation links. The asking price of £165,000 appears reasonable compared to similar properties in the area, making it a potentially good investment for first-time buyers or investors willing to undertake some cosmetic improvements.
Therefore, we give this property 7 / 10. *Disclaimer: This is our option and does constitute a recommendation or financial advice. Do your own research. *
- Price
- 8
- Condition
- 6
- Location
- 7
- Land
- 7
- Bedrooms
- 3
- Bathrooms
- 1
- Sqft (est)
- 1,064.00
The heatmap indicates the level of crime in the area. The color of the heatmap indicates the crime severity and recency.
Metrics Year-on-Year
- Average area value
- 318,750.00 £Increased by 14.94 %
- Est sale value
- 302,176.00 £Increased by 21.37 %
- Average area rental value
- 1,256.00 £/moIncreased by 2.28 %
- Est letting value
- 1,064.00 £/moUnchanged by 0.00 %
- Est rental Yield
- 4.73 %Decreased by 10.92 %
- Crime Rate
- 4.00 %Unchanged by 0.00 %
Agent Activity
Reeds Rains created the listing.
Nearby Schools
| Name | Type | Ofsted | Distance |
|---|---|---|---|
| Sun Academy Bradwell | Academy Converter | Good | 0.33 KM |
| Bursley Academy | Academy Converter | Outstanding | 0.80 KM |
| Churchfields Primary School | Academy Sponsor Led | Outstanding | 1.18 KM |
| Chesterton Primary School | Academy Converter | Good | 1.24 KM |
| Pace Education | Other Independent Special School | Good | 1.52 KM |
Images
Nearby Streets
| Name | Average Price | Average Sqft | Distance |
|---|---|---|---|
| Cardway | £ 216,500 | 0 | 0.00 KM |
| Liverpool Road | £ 0 | 0 | 0.00 KM |
| Chetwynd Road | £ 179,950 | 0 | 0.00 KM |
| Beaconsfield | £ 215,000 | 0 | 0.00 KM |
| Wright Avenue | £ 0 | 0 | 0.00 KM |
Nearby Transport
| Name | NLC | TLC | Distance |
|---|---|---|---|
| Longport | 1305 | LPT | 2.12 KM |
| Kidsgrove | 1229 | KDG | 5.57 KM |
| Stoke-On-Trent | 1314 | SOT | 6.82 KM |
| Alsager | 1223 | ASG | 9.39 KM |
Nearby Listings
| Address | Price | Type | Score | Distance |
|---|---|---|---|---|
| Oldcastle Avenue, Newcastle, Staffordshire, ST5 | £ 165,000 | BUY | 7 / 10 | 0.00 KM |
| Oldcastle Avenue, Bradwell, Newcastle-under-Lyme, Staffordshire | £ 150,000 | BUY | 6 / 10 | 0.07 KM |
| Oldcastle Avenue, Bradwell, Newcastle | £ 175,000 | BUY | 7 / 10 | 0.12 KM |
| Hanbridge Avenue, Bradwell, Newcastle Under Lyme, ST5 | £ 214,950 | BUY | 7 / 10 | 0.17 KM |
| Oakdene Avenue, Bradwell, Newcastle, ST5 | £ 270,000 | BUY | 7 / 10 | 0.19 KM |
Nearby Properties
| Address | Price | Distance |
|---|---|---|
| 78 Oldcastle Avenue | £ 149,950 | 0.09 KM |
| 64 Oldcastle Avenue | £ 130,000 | 0.09 KM |
| 83 Oldcastle Avenue | £ 149,000 | 0.09 KM |
| 98 Oldcastle Avenue | £ 107,500 | 0.09 KM |
| 62 Oldcastle Avenue | £ 129,000 | 0.09 KM |