eXp UK says ..
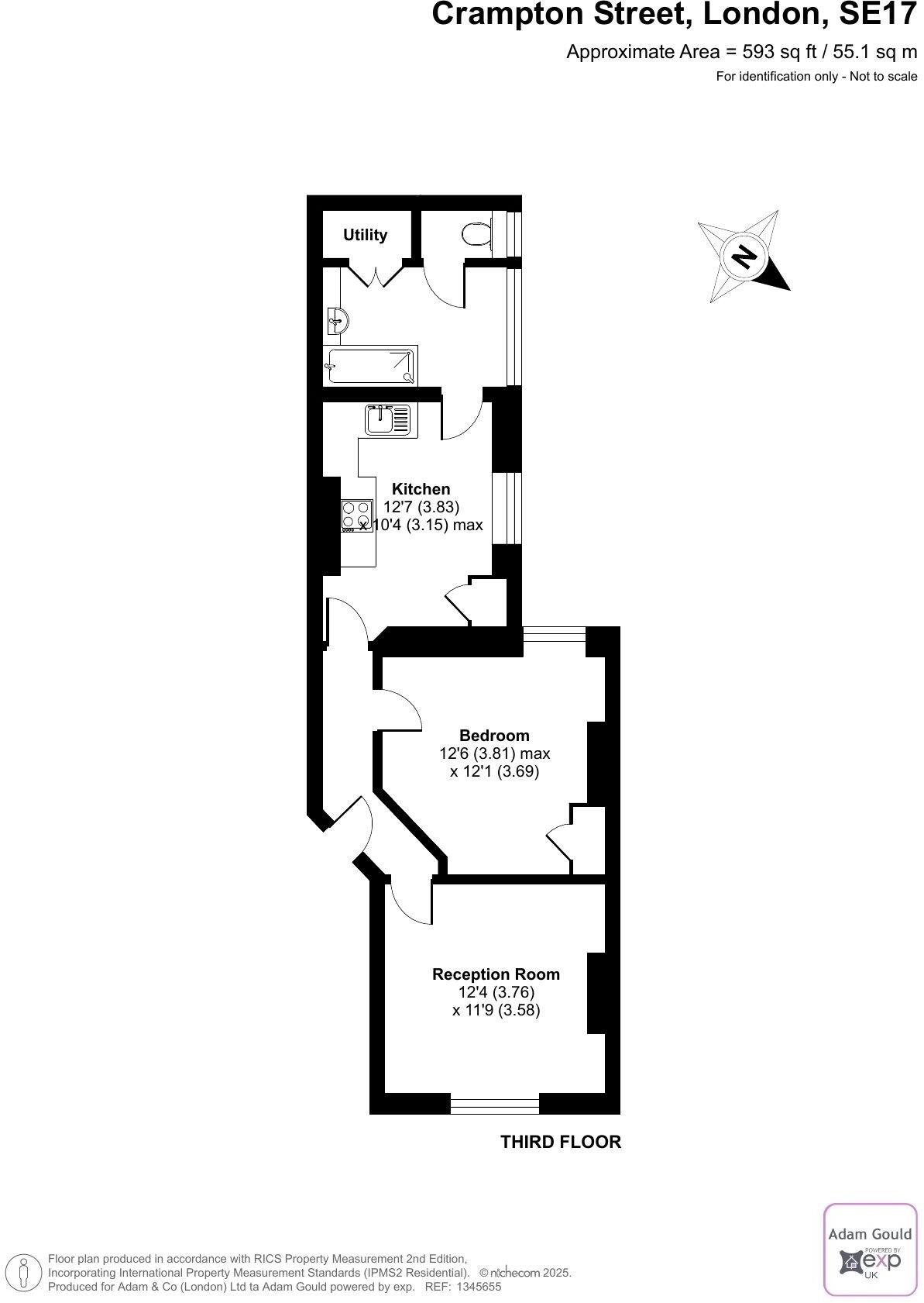
Guide Price £450,000 - £460,000 A charming one-bedroom apartment set on the top floor of the historic Pullens Buildings, just a short walk from both Elephant and Castle and Kennington Underground stations. Built in 1890 and now part of a conservation area,...
Property Oracle says ..
The property is located on Crampton Street, in the Newington area of Southwark, London. The area benefits from close proximity to schooling, and transportation. The property appears to be in reasonable condition, though some may consider it to be in need of modernisation. The property does not appear to have a garden, however, it does have access to a roof terrace. The asking price seems high given the condition of the property.
Therefore, we give this property 6 / 10. *Disclaimer: This is our option and does constitute a recommendation or financial advice. Do your own research. *
- Price
- 4
- Condition
- 6
- Location
- 8
- Land
- 0
- Bedrooms
- 1
- Bathrooms
- 1
- Sqft (est)
- 593.00
The heatmap indicates the level of crime in the area. The color of the heatmap indicates the crime severity and recency.
Metrics Year-on-Year
- Average area value
- 299,571.00 £Decreased by 28.06 %
- Est sale value
- 320,220.00 £Increased by 2.86 %
- Average area rental value
- 2,055.00 £/moIncreased by 21.17 %
- Est letting value
- 1,779.00 £/moIncreased by 50.00 %
- Est rental Yield
- 8.23 %Increased by 68.30 %
- Crime Rate
- 4.00 %Unchanged by 0.00 %
Agent Activity
eXp UK created the listing.
Nearby Schools
| Name | Type | Ofsted | Distance |
|---|---|---|---|
| Crampton Primary | Community School | Outstanding | 0.10 KM |
| St Paul'S Church Of England Primary School | Academy Sponsor Led | 0.45 KM | |
| London College Of Printing & Distributive Trades | Miscellaneous | 0.48 KM | |
| Keyworth Primary School | Community School | Good | 0.65 KM |
| Robert Browning Primary School | Community School | Good | 0.84 KM |
Images
Nearby Streets
| Name | Average Price | Average Sqft | Distance |
|---|---|---|---|
| A3 | £ 0 | 0 | 0.00 KM |
| Elephant and Castle | £ 0 | 0 | 0.00 KM |
| St. Gabriel Walk | £ 0 | 0 | 0.00 KM |
| Dante Place | £ 0 | 0 | 0.00 KM |
| Occupation Road | £ 656,658 | 0 | 0.00 KM |
Nearby Transport
| Name | NLC | TLC | Distance |
|---|---|---|---|
| Elephant And Castle | 5246 | EPH | 0.44 KM |
| Waterloo East | 5158 | WAE | 1.82 KM |
| Waterloo | 5598 | WAT | 2.04 KM |
| London Bridge | 5148 | LBG | 2.25 KM |
| Blackfriars | 5112 | BFR | 2.42 KM |
Nearby Listings
| Address | Price | Type | Score | Distance |
|---|---|---|---|---|
| Crampton Street, London, SE17 | £ 450,000 | BUY | 6 / 10 | 0.00 KM |
| Pullens Building IV, Crampton Street, London SE17 | £ 475,000 | BUY | 6 / 10 | 0.01 KM |
| Crampton Street, LONDON | £ 475,000 | BUY | 6 / 10 | 0.04 KM |
| 85 Crampton Street, Walworth, SE17 3BW | £ 201,250 | BUY | 5 / 10 | 0.06 KM |
| Oyster Court, Crampton Street, SE17 | £ 600,000 | BUY | 6 / 10 | 0.06 KM |
Nearby Properties
| Address | Price | Distance |
|---|---|---|
| 170 Crampton Street | £ 265,000 | 0.01 KM |
| 128 Crampton Street | £ 191,000 | 0.01 KM |
| 62 Crampton Street | £ 334,000 | 0.01 KM |
| 156 Crampton Street | £ 470,000 | 0.01 KM |
| 60 Crampton Street | £ 460,000 | 0.01 KM |