Fortis says ..
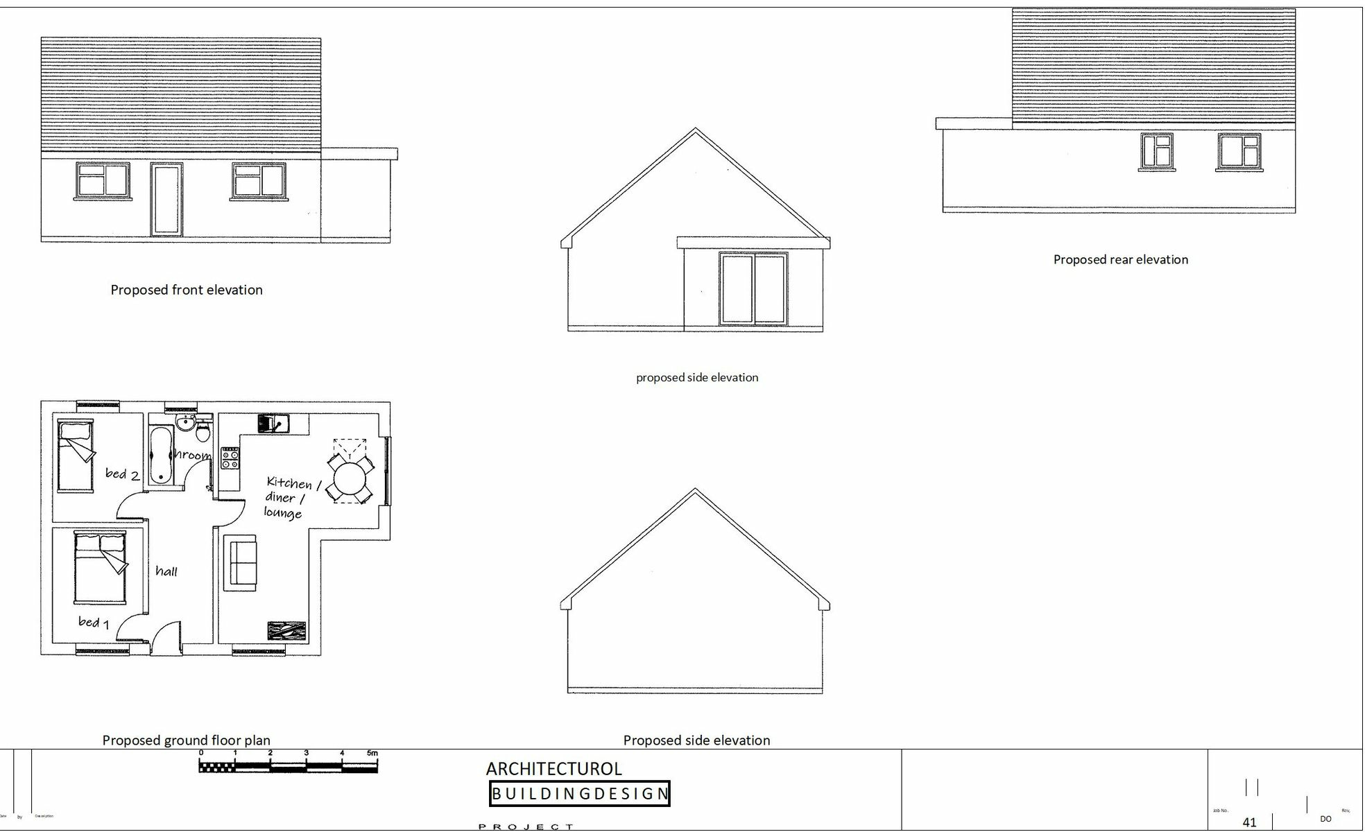
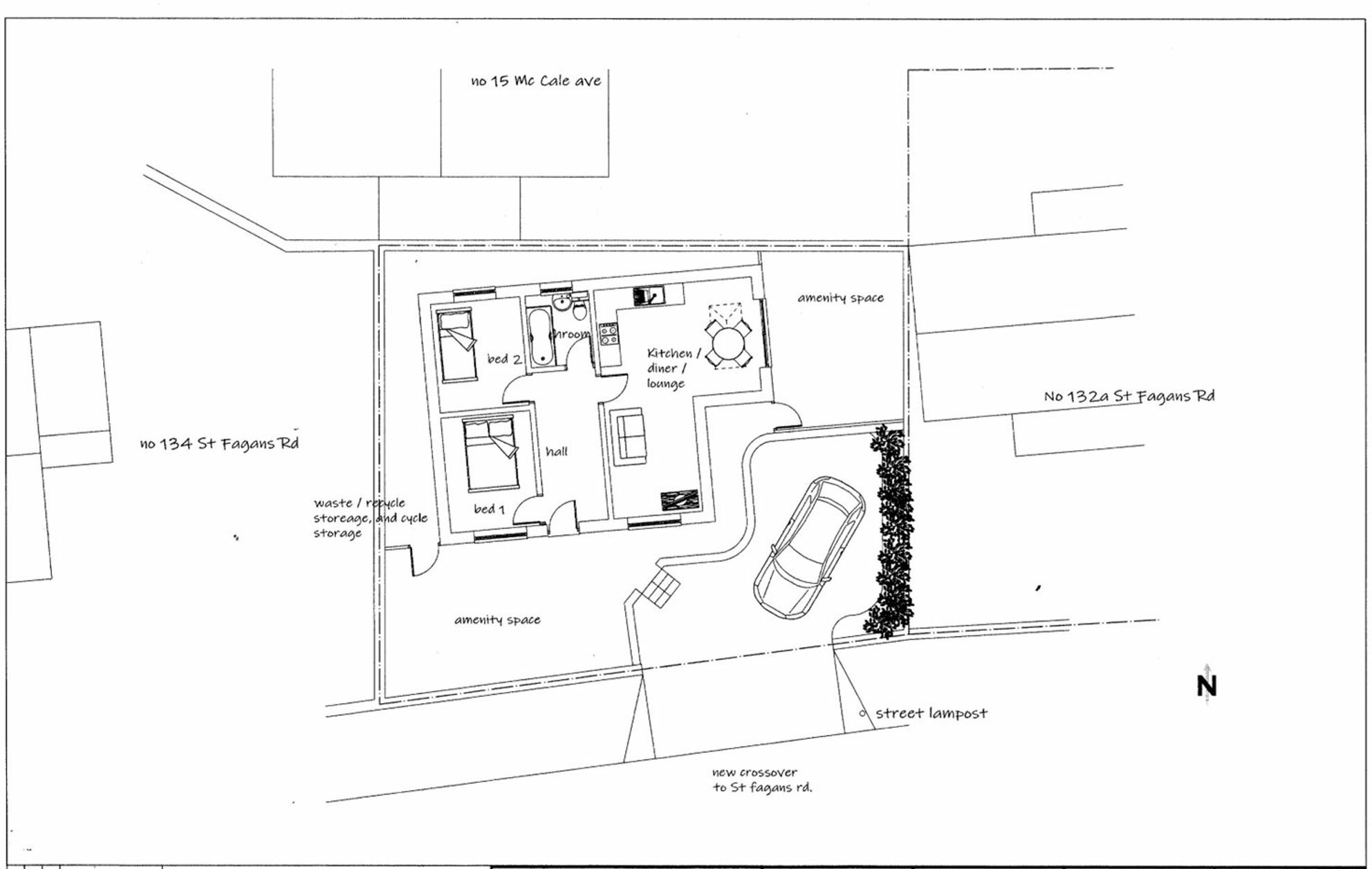
Building plot with planning permission.
Property Oracle says ..
This is a plot of land located in Fairwater, Cardiff. The listing price is £100,000. The plot is situated in a residential area with nearby schools and transportation links. While it requires complete construction, it offers a good-sized plot for development. The price appears reasonable compared to average property prices in the area.
Therefore, we give this property 6 / 10. *Disclaimer: This is our option and does constitute a recommendation or financial advice. Do your own research. *
- Price
- 9
- Condition
- 1
- Location
- 7
- Land
- 8
- Bedrooms
- 0
- Bathrooms
- 0
- Sqft (est)
- 585.00
The heatmap indicates the level of crime in the area. The color of the heatmap indicates the crime severity and recency.
Metrics Year-on-Year
- Average area value
- 244,989.00 £Increased by 2.98 %
- Est sale value
- 146,835.00 £Decreased by 15.49 %
- Average area rental value
- 1,550.00 £/moIncreased by 22.24 %
- Est letting value
- 585.00 £/moUnchanged by 0.00 %
- Est rental Yield
- 7.59 %Increased by 18.59 %
- Crime Rate
- 4.00 %Unchanged by 0.00 %
from 237,901.00 £
from 173,745.00 £
from 1,268.00 £/mo
from 585.00 £/mo
from 6.40 %
from 4.00 %
Agent Activity
Fortis created the listing.
Nearby Schools
| Name | Type | Ofsted | Distance |
|---|---|---|---|
| Cantonian High School | Welsh Establishment | 0.50 KM | |
| Herbert Thompson Primary | Welsh Establishment | 0.71 KM | |
| Fairwater Primary School | Welsh Establishment | 0.89 KM | |
| Peter Lea Primary School | Welsh Establishment | 0.99 KM | |
| The Bishop Of Llandaff C.I.W. High School | Welsh Establishment | 1.03 KM |
Images
Nearby Streets
| Name | Average Price | Average Sqft | Distance |
|---|---|---|---|
| Milton Place | £ 255,000 | 0 | 0.00 KM |
| Norbury Avenue | £ 297,500 | 0 | 0.00 KM |
| The Crescent | £ 325,000 | 0 | 0.00 KM |
| Chestnut Road | £ 104,950 | 0 | 0.00 KM |
| Pendoylan Court | £ 90,000 | 0 | 0.00 KM |
Nearby Transport
| Name | NLC | TLC | Distance |
|---|---|---|---|
| Fairwater | 3873 | FRW | 0.65 KM |
| Waun-Gron Park | 3796 | WNG | 0.90 KM |
| Danescourt | 3797 | DCT | 1.29 KM |
| Llandaf | 3844 | LLN | 2.33 KM |
| Radyr | 3874 | RDR | 3.20 KM |
Nearby Listings
| Address | Price | Type | Score | Distance |
|---|---|---|---|---|
| Mccale Avenue, Cardiff, CF5 | £ 100,000 | BUY | 6 / 10 | 0.00 KM |
| St. Fagans Road, Fairwater, Cardiff | £ 350,000 | BUY | Unknown | 0.04 KM |
| McCale Avenue, Fairwater, Cardiff | £ 290,000 | BUY | 7 / 10 | 0.06 KM |
| McCale Avenue, Fairwater, Cardiff | £ 335,000 | BUY | 6 / 10 | 0.06 KM |
| McCale Avenue, Fairwater, Cardiff | £ 300,000 | BUY | 7 / 10 | 0.06 KM |
Nearby Properties
| Address | Price | Distance |
|---|---|---|
| 2 Mccale Avenue | £ 295,000 | 0.03 KM |
| 142 St Fagans Road | £ 230,000 | 0.05 KM |
| 144 St Fagans Road | £ 185,000 | 0.05 KM |
| 154 St Fagans Road | £ 160,000 | 0.05 KM |
| 122 St Fagans Road | £ 165,000 | 0.05 KM |