McCale Avenue, Fairwater, Cardiff
By Olivia Louise Estate Agents
£ 335,000
Reviews
3 out of 5 stars
Olivia Louise Estate Agents says ..
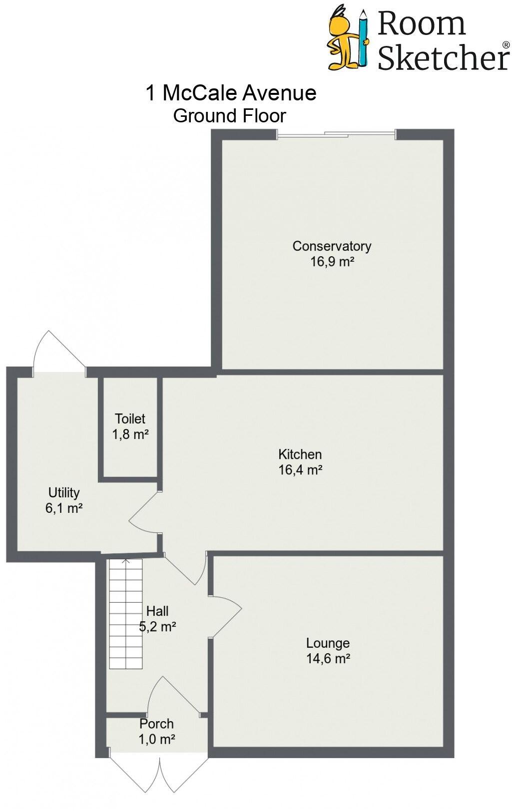
Welcome to McCale Avenue. This beautiful family home sits on a substantial size plot in a quiet cul-de-sac of Fairwater and within walking distance to the local shops and transport options.
Property Oracle says ..
This four-bedroom semi-detached house in Fairwater, Cardiff, presents a compelling proposition for families or those seeking a comfortable home in a convenient location. The property benefits from being close to local amenities including Fairwater train station, schools, and parks. The interior photographs highlight a modern, well-maintained space with a renovated kitchen and conservatory. The sizable garden offers ample space for outdoor living. The property’s condition appears to be good, although the absence of square footage information prevents a precise assessment of value per square foot. Considering comparable properties in the surrounding area, the listed price seems reasonable, although further detailed information (e.g., property size, age, and condition of major systems) would be beneficial in confirming the price’s accuracy. Overall, this property offers a blend of modern living and practical location advantages making it a potentially worthwhile consideration within the Cardiff housing market. Prospective buyers should independently verify all information before committing to a purchase.
Therefore, we give this property 6 / 10. *Disclaimer: This is our option and does constitute a recommendation or financial advice. Do your own research. *
- Price
- 7
- Condition
- 7
- Location
- 7
- Land
- 6
- Bedrooms
- 4
- Bathrooms
- 1
The heatmap indicates the level of crime in the area. The color of the heatmap indicates the crime severity and recency.
Metrics Year-on-Year
- Average area value
- 244,989.00 £Increased by 2.98 %
- Average area rental value
- 1,550.00 £/moIncreased by 22.24 %
- Est rental Yield
- 7.59 %Increased by 18.59 %
- Crime Rate
- 5.00 %Unchanged by 0.00 %
Agent Activity
Olivia Louise Estate Agents created the listing.
Nearby Schools
| Name | Type | Ofsted | Distance |
|---|---|---|---|
| Cantonian High School | Welsh Establishment | 0.53 KM | |
| Herbert Thompson Primary | Welsh Establishment | 0.72 KM | |
| Fairwater Primary School | Welsh Establishment | 0.85 KM | |
| Peter Lea Primary School | Welsh Establishment | 0.93 KM | |
| The Bishop Of Llandaff C.I.W. High School | Welsh Establishment | 1.04 KM |
Images
Nearby Streets
| Name | Average Price | Average Sqft | Distance |
|---|---|---|---|
| Milton Place | £ 255,000 | 0 | 0.00 KM |
| The Crescent | £ 325,000 | 0 | 0.00 KM |
| Norbury Avenue | £ 297,500 | 0 | 0.00 KM |
| Chestnut Road | £ 104,950 | 0 | 0.00 KM |
| Pendoylan Court | £ 90,000 | 0 | 0.00 KM |
Nearby Transport
| Name | NLC | TLC | Distance |
|---|---|---|---|
| Fairwater | 3873 | FRW | 0.65 KM |
| Waun-Gron Park | 3796 | WNG | 0.96 KM |
| Danescourt | 3797 | DCT | 1.27 KM |
| Llandaf | 3844 | LLN | 2.31 KM |
| Radyr | 3874 | RDR | 3.15 KM |
Nearby Listings
| Address | Price | Type | Score | Distance |
|---|---|---|---|---|
| McCale Avenue, Fairwater, Cardiff | £ 300,000 | BUY | 7 / 10 | 0.00 KM |
| McCale Avenue, Fairwater, Cardiff | £ 290,000 | BUY | 7 / 10 | 0.00 KM |
| McCale Avenue, Fairwater, Cardiff | £ 335,000 | BUY | 6 / 10 | 0.00 KM |
| McCale Avenue, Cardiff | £ 260,000 | BUY | Unknown | 0.03 KM |
| Mccale Avenue, Cardiff, CF5 | £ 100,000 | BUY | 6 / 10 | 0.06 KM |
Nearby Properties
| Address | Price | Distance |
|---|---|---|
| 5 Mccale Avenue | £ 67,500 | 0.02 KM |
| 13 Mccale Avenue | £ 152,500 | 0.02 KM |
| 2a Mccale Avenue | £ 295,000 | 0.02 KM |
| 16 Mccale Avenue | £ 160,000 | 0.02 KM |
| 7 Mccale Avenue | £ 170,000 | 0.02 KM |