Hardley Road, Poringland, Norwich
By Starkings & Watson
£ 350,000
Reviews
3 out of 5 stars
Starkings & Watson says ..
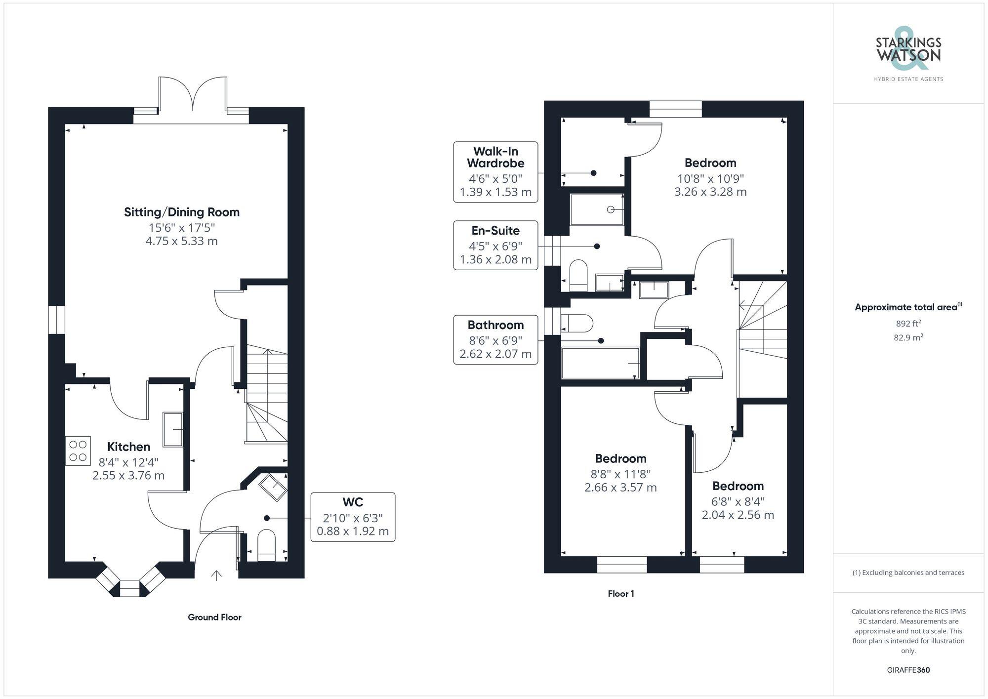
Occupying a desirable location, this IMMACULATE semi-detached HOME enjoys a fantastic position on this POPULAR DEVELOPMENT, offering LUXURIOUS LIVING both inside and out. Boasting approximately 892 sq. ft (stms) of UPGRADED ACCOMMODATION, this property exudes CONTEMPORARY CHARM and COMFORT. The g...
Property Oracle says ..
This is a well-presented, modern semi-detached house in Poringland, near Norwich. The property benefits from a good-sized garden, off-street parking and a garage. The interior is in excellent condition, with a modern kitchen and bathrooms. The property is located close to several schools and amenities, making it an ideal family home. The asking price is reasonable for the area and the condition of the property.
Therefore, we give this property 7 / 10. *Disclaimer: This is our option and does constitute a recommendation or financial advice. Do your own research. *
- Price
- 7
- Condition
- 9
- Location
- 7
- Land
- 7
- Bedrooms
- 3
- Bathrooms
- 2
- Sqft (est)
- 776.97
The heatmap indicates the level of crime in the area. The color of the heatmap indicates the crime severity and recency.
Metrics Year-on-Year
- Average area value
- 433,750.00 £Increased by 0.82 %
- Est sale value
- 273,493.44 £Increased by 20.55 %
- Average area rental value
- 1,125.00 £/moDecreased by 11.21 %
- Est letting value
- 0.00 £/mo
- Est rental Yield
- 3.11 %Decreased by 11.90 %
- Crime Rate
- 25.00 %Unchanged by 0.00 %
Agent Activity
Starkings & Watson created the listing.
Nearby Schools
| Name | Type | Ofsted | Distance |
|---|---|---|---|
| Framingham Earl High School | Academy Converter | 0.53 KM | |
| Poringland Primary School | Community School | Good | 1.54 KM |
| Stoke Holy Cross Primary School | Community School | Good | 3.90 KM |
| Trowse Primary School | Community School | Outstanding | 4.42 KM |
| Alpington And Bergh Apton Church Of England Voluntary Aided Primary School | Voluntary Aided School | Outstanding | 5.31 KM |
Images
Nearby Streets
| Name | Average Price | Average Sqft | Distance |
|---|---|---|---|
| Neale Avenue | £ 407,375 | 0 | 0.00 KM |
| Mill Close | £ 1,000,000 | 0 | 0.00 KM |
| Highgrove Court | £ 0 | 0 | 0.00 KM |
| Arminghall Close | £ 625,000 | 0 | 0.00 KM |
| Foxes Close | £ 0 | 0 | 0.00 KM |
Nearby Transport
| Name | NLC | TLC | Distance |
|---|---|---|---|
| Norwich | 7309 | NRW | 6.52 KM |
Nearby Listings
| Address | Price | Type | Score | Distance |
|---|---|---|---|---|
| Hardley Road, Poringland, Norwich | £ 350,000 | BUY | 7 / 10 | 0.00 KM |
| Revel Burroughs Way, Poringland, Norwich, Norfolk, NR14 | £ 650,000 | BUY | 7 / 10 | 0.06 KM |
| Neale Avenue, Poringland | £ 350,000 | BUY | 7 / 10 | 0.08 KM |
| Briggs Drive, Poringland, Norwich | £ 385,000 | BUY | Unknown | 0.10 KM |
| Briggs Drive, Poringland, Norwich, Norfolk, NR14 | £ 400,000 | BUY | 7 / 10 | 0.11 KM |
Nearby Properties
| Address | Price | Distance |
|---|---|---|
| 7 Stoke Road | £ 195,000 | 0.18 KM |
| 12 Stoke Road | £ 189,000 | 0.18 KM |
| 14 Stoke Road | £ 360,000 | 0.18 KM |
| 26 Stoke Road | £ 311,000 | 0.18 KM |
| 18 Stoke Road | £ 262,000 | 0.18 KM |