Tavistock Avenue, St. Albans, Hertfordshire
By Collinson Hall
£ 450,000
Reviews
3 out of 5 stars
Collinson Hall says ..
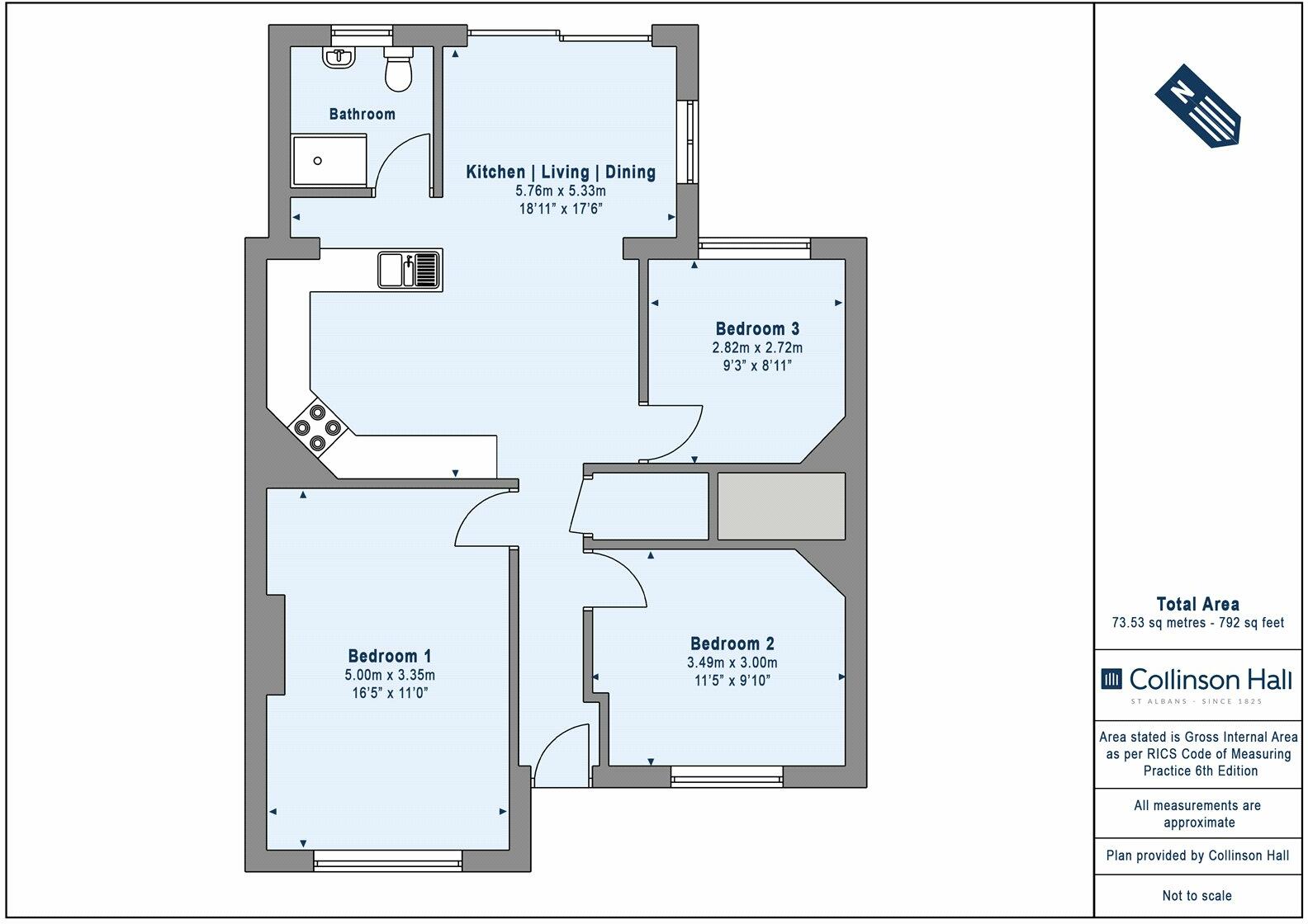
A delightful and beautifully presented THREE BEDROOM MAISONETTE with ample parking and PRIVATE REAR GARDEN. Situated off the historic Watling Street and close to a range of shopping facilities, GREEN SPACES, and WELL REGARDED schools.
Property Oracle says ..
This 3-bedroom maisonette in Sopwell, St Albans is presented in excellent condition, with a newly renovated modern kitchen and bathroom. The property boasts a garden, which is a desirable feature in this area. The interior is stylishly decorated and benefits from an open-plan layout. The location is convenient, with several good schools nearby and relatively easy access to train stations. However, specific details regarding the size of the garden and precise distance to amenities would be useful to potential buyers. Overall, the property is well-presented and likely to be of considerable interest to families or professionals looking to live in a pleasant and convenient St Albans location. The listing price seems to reflect the market value based on nearby properties for sale, but the lack of precise square footage data for comparisons prevents a definitive conclusion on value-for-money. A detailed survey and valuation may be advisable for potential buyers.
Therefore, we give this property 7 / 10. *Disclaimer: This is our option and does constitute a recommendation or financial advice. Do your own research. *
- Price
- 7
- Condition
- 8
- Location
- 7
- Land
- 6
- Bedrooms
- 3
- Bathrooms
- 1
- Sqft (est)
- 791.47
The heatmap indicates the level of crime in the area. The color of the heatmap indicates the crime severity and recency.
Metrics Year-on-Year
- Average area value
- 472,750.00 £Decreased by 21.88 %
- Est sale value
- 608,640.43 £Increased by 27.74 %
- Average area rental value
- 1,418.00 £/moDecreased by 35.04 %
- Est letting value
- 1,582.94 £/moUnchanged by 0.00 %
- Est rental Yield
- 3.60 %Decreased by 16.86 %
- Crime Rate
- 7.00 %Unchanged by 0.00 %
Agent Activity
Collinson Hall marked this listing as sold.
Collinson Hall created the listing.
Nearby Schools
| Name | Type | Ofsted | Distance |
|---|---|---|---|
| St Adrian Roman Catholic Primary School | Voluntary Aided School | Good | 0.16 KM |
| Mandeville Primary School | Academy Converter | Good | 0.32 KM |
| Sa7 Sopwell And Verulam Family Centre | Children's Centre | 0.37 KM | |
| Watling View School | Community Special School | Good | 0.42 KM |
| The Marlborough Science Academy | Academy Converter | Good | 0.74 KM |
Images
Nearby Streets
| Name | Average Price | Average Sqft | Distance |
|---|---|---|---|
| The Close | £ 0 | 0 | 0.00 KM |
| Kempe Close | £ 0 | 0 | 0.00 KM |
| Ashby Gardens | £ 550,000 | 0 | 0.00 KM |
| The Brambles | £ 374,999 | 0 | 0.00 KM |
| Jenny Lane | £ 0 | 0 | 0.00 KM |
Nearby Transport
| Name | NLC | TLC | Distance |
|---|---|---|---|
| St Albans Abbey | 1562 | SAA | 0.66 KM |
| Park Street | 1561 | PKT | 1.51 KM |
| St Albans City | 1548 | SAC | 2.12 KM |
| How Wood (Hertfordshire) | 1563 | HWW | 2.35 KM |
| Bricket Wood | 1560 | BWO | 4.13 KM |
Nearby Listings
| Address | Price | Type | Score | Distance |
|---|---|---|---|---|
| Tavistock Avenue, St. Albans, Hertfordshire | £ 450,000 | BUY | 7 / 10 | 0.00 KM |
| Tavistock Avenue, St. Albans, Hertfordshire | £ 275,000 | BUY | Unknown | 0.00 KM |
| Tavistock Avenue, St. Albans, Hertfordshire | £ 1,150,000 | BUY | 6 / 10 | 0.05 KM |
| Tavistock Avenue, St. Albans, Hertfordshire, AL1 | £ 700,000 | BUY | 7 / 10 | 0.14 KM |
| Tavistock Avenue, St. Albans | £ 750,000 | BUY | 6 / 10 | 0.16 KM |
Nearby Properties
| Address | Price | Distance |
|---|---|---|
| 54 Tavistock Avenue | £ 250,000 | 0.01 KM |
| 30 Tavistock Avenue | £ 429,000 | 0.01 KM |
| 38 Tavistock Avenue | £ 379,000 | 0.01 KM |
| 24 Tavistock Avenue | £ 410,000 | 0.01 KM |
| 64 Tavistock Avenue | £ 195,000 | 0.01 KM |