Yopa says ..
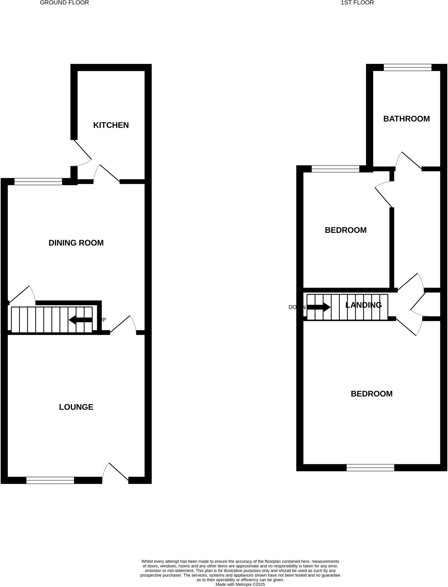
Offered with vacant possession, this well-presented two bedroom end terraced property is located in a convenient area of Derby, close to local amenities and transport links.
Property Oracle says ..
This is a 2-bedroom end-of-terrace property located on Depot Street in the Arboretum area of Derby. The property is listed for £110,000. It is located near several schools and is approximately 1.56 KM from Derby train station. The property appears to be in need of some renovation. The price per square foot is significantly lower than the average for the area, suggesting it represents reasonable value, especially considering the need for renovation.
Therefore, we give this property 5 / 10. *Disclaimer: This is our option and does constitute a recommendation or financial advice. Do your own research. *
- Price
- 7
- Condition
- 4
- Location
- 6
- Land
- 3
- Bedrooms
- 2
- Bathrooms
- 1
- Sqft (est)
- 792.00
The heatmap indicates the level of crime in the area. The color of the heatmap indicates the crime severity and recency.
Metrics Year-on-Year
- Average area value
- 241,538.00 £Increased by 19.85 %
- Est sale value
- 251,064.00 £Increased by 20.99 %
- Average area rental value
- 906.00 £/moIncreased by 1.12 %
- Est letting value
- 792.00 £/moUnchanged by 0.00 %
- Est rental Yield
- 4.50 %Decreased by 15.73 %
- Crime Rate
- 8.00 %Unchanged by 0.00 %
Agent Activity
Yopa created the listing.
Nearby Schools
| Name | Type | Ofsted | Distance |
|---|---|---|---|
| Arboretum Primary School | Academy Converter | 0.32 KM | |
| St James' Church Of England Aided Infant School | Voluntary Aided School | Good | 0.49 KM |
| Rosehill Children'S Centre | Children's Centre | 0.50 KM | |
| St Joseph'S Catholic Voluntary Academy | Academy Converter | 0.63 KM | |
| Hardwick Primary School | Academy Converter | 0.63 KM |
Images
Nearby Streets
| Name | Average Price | Average Sqft | Distance |
|---|---|---|---|
| Rauche Court | £ 0 | 0 | 0.00 KM |
| Lara Croft Way | £ 0 | 0 | 0.00 KM |
| Saint Thomas Road | £ 0 | 0 | 0.00 KM |
| Joseph Street | £ 0 | 0 | 0.00 KM |
| Saint James Road | £ 215,000 | 0 | 0.00 KM |
Nearby Transport
| Name | NLC | TLC | Distance |
|---|---|---|---|
| Derby | 1823 | DBY | 1.56 KM |
| Peartree | 1687 | PEA | 1.60 KM |
| Spondon | 1699 | SPO | 7.22 KM |
| Duffield | 1691 | DFI | 8.67 KM |
Nearby Listings
| Address | Price | Type | Score | Distance |
|---|---|---|---|---|
| Depot Street, Derby, DE23 | £ 110,000 | BUY | 5 / 10 | 0.00 KM |
| Harriet Street, Derby | £ 130,000 | BUY | 6 / 10 | 0.14 KM |
| Harriet Street, Normanton | £ 140,000 | BUY | Unknown | 0.17 KM |
| Lyndhurst Street, Derby | £ 160,000 | BUY | 4 / 10 | 0.23 KM |
| 30 Dashwood Street, Derby DE23 6SU | £ 82,500 | BUY | 6 / 10 | 0.26 KM |
Nearby Properties
| Address | Price | Distance |
|---|---|---|
| 52 Depot Street | £ 135,000 | 0.01 KM |
| 18 Depot Street | £ 105,000 | 0.01 KM |
| 24 Depot Street | £ 65,000 | 0.01 KM |
| 50 Depot Street | £ 135,000 | 0.01 KM |
| 28 Depot Street | £ 41,400 | 0.01 KM |