MO
Burdock Close, Wymondham, NR18
By Moneyproperties
£ 290,000
Reviews
3 out of 5 stars
Moneyproperties says ..
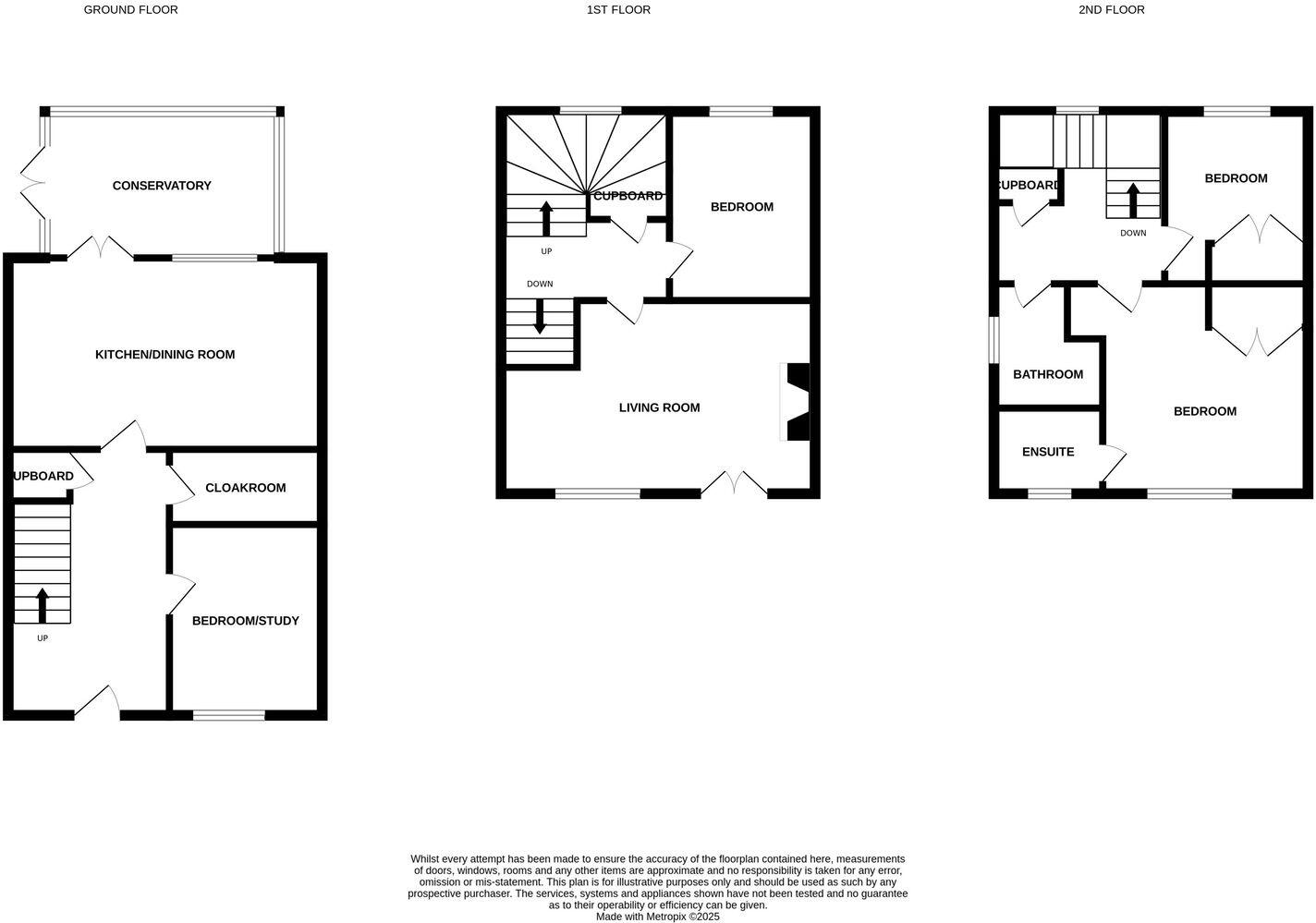
Moneyproperties bring to market this well-presented three storey town house offering approximately 1200sq ft of living space on a generous corner plot. This deceptively spacious home offers three double bedrooms with an ensuite and built in wardrobes to bedroom one along with the potential for...
Property Oracle says ..
Therefore, we give this property 7 / 10. *Disclaimer: This is our option and does constitute a recommendation or financial advice. Do your own research. *
- Price
- 8
- Condition
- 8
- Location
- 7
- Land
- 7
- Bedrooms
- 4
- Bathrooms
- 2
- Sqft (est)
- 1,249.00
The heatmap indicates the level of crime in the area. The color of the heatmap indicates the crime severity and recency.
Metrics Year-on-Year
- Average area value
- 420,000.00 £Increased by 28.91 %
- Est sale value
- 870,553.00 £Increased by 120.57 %
- Average area rental value
- 1,400.00 £/moIncreased by 9.12 %
- Est letting value
- 2,498.00 £/moIncreased by 100.00 %
- Est rental Yield
- 4.00 %Decreased by 15.43 %
- Crime Rate
- 8.00 %Unchanged by 0.00 %
from 325,804.00 £
from 394,684.00 £
from 1,283.00 £/mo
from 1,249.00 £/mo
from 4.73 %
from 8.00 %
Agent Activity
Moneyproperties created the listing.
Nearby Schools
| Name | Type | Ofsted | Distance |
|---|---|---|---|
| Ashleigh Primary School And Nursery, Wymondham | Community School | Outstanding | 1.07 KM |
| Wymondham Area Children'S Centre | Children's Centre | 1.16 KM | |
| Wymondham High Academy | Academy Converter | Good | 1.48 KM |
| Browick Road Primary And Nursery School | Community School | Outstanding | 1.49 KM |
| Robert Kett Primary School | Foundation School | Requires improvement | 1.85 KM |
Images
Nearby Streets
| Name | Average Price | Average Sqft | Distance |
|---|---|---|---|
| Monarch Close | £ 0 | 0 | 0.00 KM |
| Turner Close | £ 0 | 0 | 0.00 KM |
| Lark Lane | £ 0 | 0 | 0.00 KM |
| Lime Tree Avenue | £ 0 | 0 | 0.00 KM |
| Wisteria Drive | £ 441,667 | 0 | 0.00 KM |
Nearby Transport
| Name | NLC | TLC | Distance |
|---|---|---|---|
| Wymondham | 7383 | WMD | 1.61 KM |
| Spooner Row | 7379 | SPN | 6.43 KM |
Nearby Listings
| Address | Price | Type | Score | Distance |
|---|---|---|---|---|
| Burdock Close, Wymondham, NR18 | £ 290,000 | BUY | 7 / 10 | 0.00 KM |
| Burdock Close, Wymondham, Norfolk, NR18 | £ 270,000 | BUY | 8 / 10 | 0.00 KM |
| Burdock Close, Wymondham, Norfolk, NR18 | £ 185,000 | BUY | 7 / 10 | 0.03 KM |
| Burdock Close, Wymondham | £ 300,000 | BUY | 7 / 10 | 0.04 KM |
| Burdock Close, Wymondham | £ 190,000 | BUY | Unknown | 0.04 KM |
Nearby Properties
| Address | Price | Distance |
|---|---|---|
| 2 Burdock Close | £ 375,000 | 0.01 KM |
| 35 Burdock Close | £ 107,000 | 0.01 KM |
| 49 Burdock Close | £ 197,500 | 0.01 KM |
| 37 Burdock Close | £ 177,500 | 0.01 KM |
| 59 Burdock Close | £ 235,000 | 0.01 KM |