LA
Kingsley Mews, Chislehurst
By Langford Russell
£ 599,950
Reviews
3 out of 5 stars
Langford Russell says ..
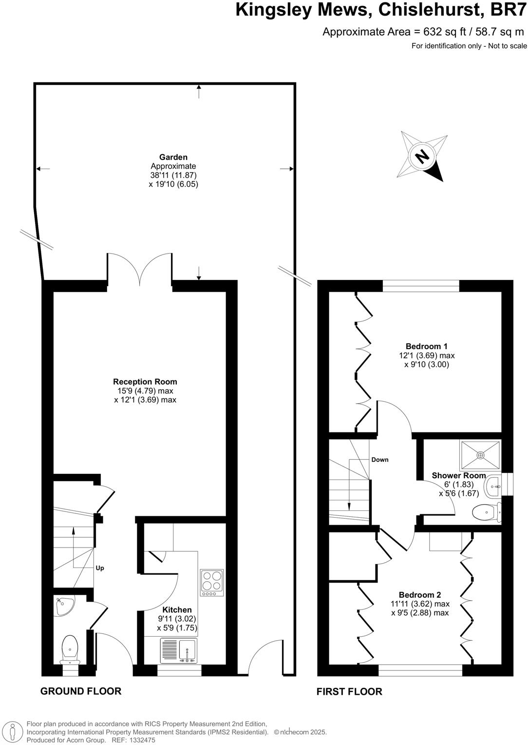
Chain Free- Charming 2-Bedroom Mews House in the Heart of Chislehurst. Tucked away in the peaceful cul-de-sac within the desirable kingsley mews development, backing onto Chislehurst golf course, this house offers contemporary living across two floors, perfect for first time buyers, do...
Property Oracle says ..
Therefore, we give this property 7 / 10. *Disclaimer: This is our option and does constitute a recommendation or financial advice. Do your own research. *
- Price
- 7
- Condition
- 7
- Location
- 8
- Land
- 6
- Bedrooms
- 2
- Bathrooms
- 1
- Sqft (est)
- 632.00
The heatmap indicates the level of crime in the area. The color of the heatmap indicates the crime severity and recency.
Metrics Year-on-Year
- Average area value
- 1,340,769.00 £Increased by 43.16 %
- Est sale value
- 482,216.00 £Increased by 5.39 %
- Average area rental value
- 1,875.00 £/moDecreased by 23.75 %
- Est letting value
- 632.00 £/moUnchanged by 0.00 %
- Est rental Yield
- 1.68 %Decreased by 46.67 %
- Crime Rate
- 13.00 %Unchanged by 0.00 %
from 936,522.00 £
from 457,568.00 £
from 2,459.00 £/mo
from 632.00 £/mo
from 3.15 %
from 13.00 %
Agent Activity
Langford Russell created the listing.
Nearby Schools
| Name | Type | Ofsted | Distance |
|---|---|---|---|
| Mead Road Infant School | Academy Sponsor Led | 0.54 KM | |
| Red Hill Primary School | Academy Converter | Good | 0.80 KM |
| St Nicholas Church Of England Primary | Academy Converter | Good | 0.81 KM |
| Edgebury Primary School | Foundation School | Good | 1.10 KM |
| Coopers School | Academy Converter | Good | 1.15 KM |
Images
Nearby Streets
| Name | Average Price | Average Sqft | Distance |
|---|---|---|---|
| Dorrit Way | £ 0 | 0 | 0.00 KM |
| Buckingham Drive | £ 0 | 0 | 0.00 KM |
| Cricket Ground Road | £ 2,400,000 | 0 | 0.00 KM |
| Royal Parade Mews | £ 0 | 0 | 0.00 KM |
| Greenway | £ 575,000 | 0 | 0.00 KM |
Nearby Transport
| Name | NLC | TLC | Distance |
|---|---|---|---|
| Chislehurst | 5099 | CIT | 1.70 KM |
| New Eltham | 5119 | NEH | 2.41 KM |
| Elmstead Woods | 5135 | ESD | 2.64 KM |
| Bickley | 5063 | BKL | 3.12 KM |
| Petts Wood | 5123 | PET | 3.19 KM |
Nearby Listings
| Address | Price | Type | Score | Distance |
|---|---|---|---|---|
| Kingsley Mews, Chislehurst | £ 599,950 | BUY | 7 / 10 | 0.00 KM |
| Kingsley Mews, Chislehurst | £ 600,000 | BUY | 6 / 10 | 0.01 KM |
| High Street, Chislehurst | £ 500,000 | BUY | Unknown | 0.07 KM |
| High Street, Chislehurst, Kent, BR7 | £ 260,000 | BUY | 7 / 10 | 0.13 KM |
| High Street, Chislehurst, Kent, BR7 | £ 250,000 | BUY | 7 / 10 | 0.13 KM |
Nearby Properties
| Address | Price | Distance |
|---|---|---|
| 2 Kingsley Mews | £ 159,950 | 0.03 KM |
| 7 Kingsley Mews | £ 300,000 | 0.03 KM |
| 6 Kingsley Mews | £ 310,000 | 0.03 KM |
| 5 Kingsley Mews | £ 450,000 | 0.03 KM |
| 3 Kingsley Mews | £ 92,500 | 0.03 KM |