Development Opportunity, Willenhall
By Allen Heritage
£ 260,000
Reviews
2 out of 5 stars
Allen Heritage says ..
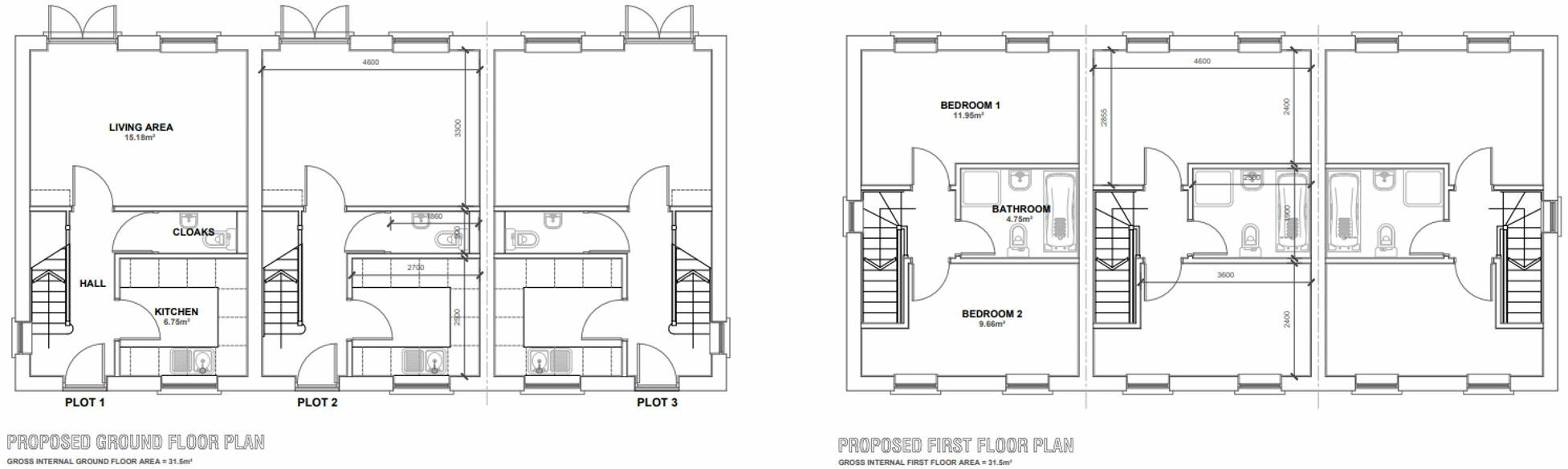
Approval Granted for a residential development of six dwellings.
Property Oracle says ..
This listing presents a development opportunity in Willenhall, Walsall, West Midlands. The site is located on Coltham Road and is earmarked for the construction of six dwellings, according to planning approvals. The location offers proximity to local schools (including outstanding-rated primary schools) and transportation links. Nearby properties range in price, reflecting the variety of housing stock in the area. However, the listing itself provides minimal details about the plot, like exact size, ground conditions, and associated costs, potentially making it difficult to get accurate valuations without further investigation. Additional information, such as detailed planning permission documents and projected costs for construction, marketing, and sales, would significantly improve the evaluation process. Furthermore, understanding the local market dynamics, including local house prices and demand for new housing in the area, would impact a more comprehensive evaluation.
Therefore, we give this property 4 / 10. *Disclaimer: This is our option and does constitute a recommendation or financial advice. Do your own research. *
- Price
- 6
- Condition
- 1
- Location
- 7
- Land
- 4
- Bedrooms
- 0
- Bathrooms
- 0
- Sqft (est)
- 678.13
The heatmap indicates the level of crime in the area. The color of the heatmap indicates the crime severity and recency.
Metrics Year-on-Year
- Average area value
- 310,000.00 £Increased by 33.77 %
- Est sale value
- 177,670.06 £Increased by 40.11 %
- Average area rental value
- 1,150.00 £/moIncreased by 21.31 %
- Est letting value
- 0.00 £/mo
- Est rental Yield
- 4.45 %Decreased by 9.37 %
- Crime Rate
- 5.00 %Unchanged by 0.00 %
Agent Activity
Allen Heritage marked this listing as sold.
Allen Heritage created the listing.
Nearby Schools
| Name | Type | Ofsted | Distance |
|---|---|---|---|
| Woodlands Academy Of Learning | Academy Converter | Good | 0.34 KM |
| Lane Head Nursery School | Local Authority Nursery School | Outstanding | 0.62 KM |
| New Invention Junior School | Community School | Outstanding | 0.72 KM |
| New Invention Infant School | Community School | Outstanding | 0.72 KM |
| Beacon Primary School | Community School | Good | 0.94 KM |
Images
Nearby Streets
| Name | Average Price | Average Sqft | Distance |
|---|---|---|---|
| Drancey Avenue | £ 0 | 0 | 0.00 KM |
| Bradgate Close | £ 0 | 0 | 0.00 KM |
| Leacroft | £ 165,000 | 0 | 0.00 KM |
| Lane Head Close | £ 190,000 | 0 | 0.00 KM |
| Lucknow Road | £ 0 | 0 | 0.00 KM |
Nearby Transport
| Name | NLC | TLC | Distance |
|---|---|---|---|
| Bloxwich North | 1018 | BWN | 2.85 KM |
| Bloxwich | 1141 | BLX | 2.92 KM |
| Landywood | 1017 | LAW | 5.77 KM |
| Walsall | 1216 | WSL | 6.11 KM |
| Bescot Stadium | 1003 | BSC | 6.88 KM |
Nearby Listings
| Address | Price | Type | Score | Distance |
|---|---|---|---|---|
| Willenhall, Walsall | £ 250,000 | BUY | 5 / 10 | 0.00 KM |
| Development Opportunity, Willenhall | £ 260,000 | BUY | 4 / 10 | 0.00 KM |
| Coltham Road, Willenhall, West Midlands, WV12 | £ 165,000 | BUY | 7 / 10 | 0.06 KM |
| Coltham Road, Willenhall, WV12 | £ 170,000 | BUY | 6 / 10 | 0.07 KM |
| Walkers Fold, WILLENHALL, West Midlands, WV12 | £ 180,000 | BUY | 7 / 10 | 0.18 KM |
Nearby Properties
| Address | Price | Distance |
|---|---|---|
| 96 Coltham Road | £ 79,000 | 0.06 KM |
| 95 Coltham Road | £ 125,000 | 0.06 KM |
| 108 Coltham Road | £ 75,000 | 0.06 KM |
| 87 Coltham Road | £ 95,000 | 0.06 KM |
| 106 Coltham Road | £ 145,000 | 0.06 KM |