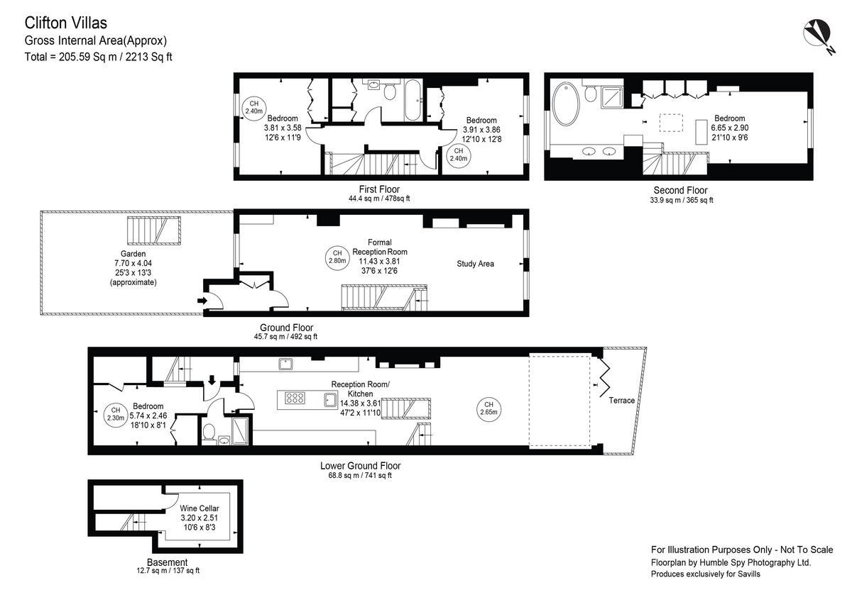
Clifton Villas, London, W9
By Beauchamp Estates Ltd
£ 2,995,000
Reviews
3 out of 5 stars
Beauchamp Estates Ltd says ..
A rare white stucco freehold house with wine cellar situated in the heart of Little Venice
Property Oracle says ..
This four-bedroom, three-bathroom terraced house located on Clifton Villas in Little Venice offers a blend of modern living and period charm. The property’s interior shows evidence of stylish modernisation, boasting a contemporary kitchen, multiple fireplaces, and a unique feature - a glass-floored living room revealing a well-equipped wine cellar below. High-quality finishes, including hardwood floors and modern lighting fixtures, are noticeable throughout. The layout appears well-designed, with ample living space spread over multiple floors. Although the photos don’t reveal much about the exterior, the property appears to be in very good condition, and the location in Little Venice is an undeniable advantage, offering access to the area’s canals, shops, and restaurants. Nearby, are highly-rated primary schools and transport links to central London are also convenient. While the property’s limited outdoor space is a slight drawback, the overall appeal of the location, condition, and unique features make it a desirable property for potential buyers looking for luxury in a sought-after area of London. The lack of specific plot size information prevents an absolute assessment of the value of the land itself. Overall, this property represents a premium offering in a prime central London location, and the price reflects this premium status.
Therefore, we give this property 6 / 10. *Disclaimer: This is our option and does constitute a recommendation or financial advice. Do your own research. *
- Price
- 7
- Condition
- 8
- Location
- 9
- Land
- 3
- Bedrooms
- 4
- Bathrooms
- 3
- Sqft (est)
- 2,212.95
The heatmap indicates the level of crime in the area. The color of the heatmap indicates the crime severity and recency.
Metrics Year-on-Year
- Average area value
- 1,070,000.00 £Decreased by 53.73 %
- Est sale value
- 4,235,586.30 £Increased by 1.75 %
- Average area rental value
- 2,859.00 £/moDecreased by 11.43 %
- Est letting value
- 11,064.75 £/moIncreased by 150.00 %
- Est rental Yield
- 3.21 %Increased by 91.07 %
- Crime Rate
- 3.00 %Unchanged by 0.00 %
Agent Activity
Beauchamp Estates Ltd created the listing.
Nearby Schools
| Name | Type | Ofsted | Distance |
|---|---|---|---|
| St Saviour'S Cofe Primary School | Voluntary Aided School | Outstanding | 0.23 KM |
| St Joseph'S Rc Primary School | Voluntary Aided School | Good | 0.55 KM |
| St Mary Magdalene Cofe Primary School | Voluntary Aided School | Good | 0.56 KM |
| Westbourne Children'S Centre | Children's Centre Linked Site | 0.56 KM | |
| Edward Wilson Primary School | Community School | Good | 0.56 KM |
Images
Nearby Streets
| Name | Average Price | Average Sqft | Distance |
|---|---|---|---|
| Warwick Avenue | £ 0 | 0 | 0.00 KM |
| Shirland Road | £ 0 | 0 | 0.00 KM |
| Blomfield Mews | £ 0 | 0 | 0.00 KM |
| Formosa Street | £ 0 | 0 | 0.00 KM |
| Westway | £ 0 | 0 | 0.00 KM |
Nearby Transport
| Name | NLC | TLC | Distance |
|---|---|---|---|
| Paddington | 3087 | PAD | 1.25 KM |
| Kilburn High Road | 1415 | KBN | 1.77 KM |
| South Hampstead | 1451 | SOH | 2.13 KM |
| Marylebone | 1475 | MYB | 2.42 KM |
| Queens Park (London) | 1419 | QPW | 2.53 KM |
Nearby Listings
| Address | Price | Type | Score | Distance |
|---|---|---|---|---|
| Clifton Villas, London, W9 | £ 2,995,000 | BUY | 6 / 10 | 0.00 KM |
| Clifton Villas, Little Venice, London, W9 | £ 2,999,500 | BUY | 7 / 10 | 0.03 KM |
| Warwick Avenue, Warwick Avenue, London W9 | £ 860,000 | BUY | Unknown | 0.04 KM |
| Warwick Avenue, London W9 | £ 875,000 | BUY | 7 / 10 | 0.04 KM |
| Warrington Gardens, Little Venice | £ 595,000 | BUY | 6 / 10 | 0.05 KM |
Nearby Properties
| Address | Price | Distance |
|---|---|---|
| 10 Clifton Villas | £ 5,250,000 | 0.07 KM |
| 6a Clifton Villas | £ 645,000 | 0.07 KM |
| 19 Clifton Villas | £ 2,165,000 | 0.07 KM |
| 16 Clifton Villas | £ 4,800,000 | 0.07 KM |
| 13 Clifton Villas | £ 895,000 | 0.07 KM |