P
Charnleys Lane, Banks, Nr Southport, PR9
By P Wilson & Company
£ 495,000
P Wilson & Company says ..
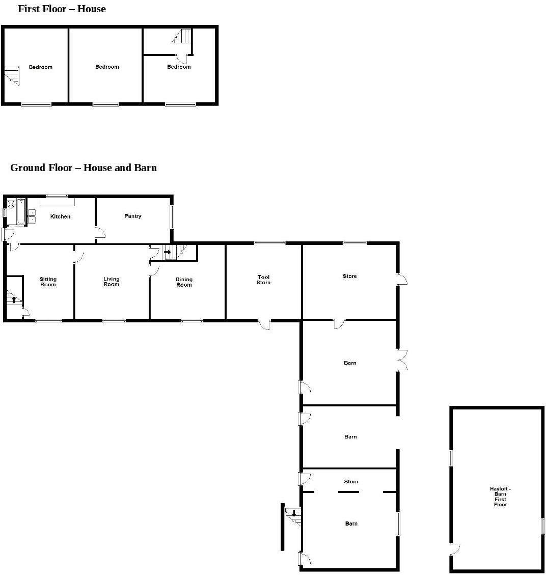
An attractive agricultural/equestrian smallholding situated on the outskirts of Banks near Southport with the opportunity of residential development.
- Bedrooms
- 3
- Bathrooms
- 0
The heatmap indicates the level of crime in the area. The color of the heatmap indicates the crime severity and recency.
Metrics Year-on-Year
- Average area value
- 382,533.00 £Increased by 3.77 %
- Average area rental value
- 1,090.00 £/moDecreased by 17.67 %
- Est rental Yield
- 3.42 %Decreased by 20.65 %
- Crime Rate
- 10.00 %Unchanged by 0.00 %
from 368,645.00 £
from 1,324.00 £/mo
from 4.31 %
from 10.00 %
Agent Activity
P Wilson & Company created the listing.
Nearby Schools
| Name | Type | Ofsted | Distance |
|---|---|---|---|
| Banks Methodist School | Voluntary Controlled School | Good | 0.91 KM |
| Banks St Stephen'S Cofe School | Voluntary Controlled School | Good | 1.08 KM |
| St John'S Church Of England Primary School | Voluntary Controlled School | Good | 2.83 KM |
| Peterhouse School | Non-maintained Special School | Outstanding | 4.61 KM |
| Presfield High School And Specialist College | Community Special School | Good | 4.65 KM |
Images
Nearby Streets
| Name | Average Price | Average Sqft | Distance |
|---|---|---|---|
| Old School Close | £ 0 | 0 | 0.00 KM |
| Hesketh Avenue | £ 185,000 | 0 | 0.00 KM |
| Grange Close | £ 108,000 | 0 | 0.00 KM |
| Southport New Road | £ 248,120 | 0 | 0.00 KM |
Nearby Transport
| Name | NLC | TLC | Distance |
|---|---|---|---|
| Bescar Lane | 2351 | BES | 6.64 KM |
| Meols Cop | 2357 | MEC | 7.05 KM |
| Lytham | 2670 | LTM | 7.70 KM |
| Moss Side | 2675 | MOS | 9.37 KM |
| Southport | 2262 | SOP | 9.60 KM |
Nearby Listings
| Address | Price | Type | Score | Distance |
|---|---|---|---|---|
| Charnleys Lane, Banks, Nr Southport, PR9 | £ 495,000 | BUY | Unknown | 0.00 KM |
| Charnleys Lane, Banks | £ 750,000 | BUY | 7 / 10 | 0.00 KM |
| Charnleys Lane, Banks | £ 110,000 | BUY | Unknown | 0.00 KM |
| Glebe Lane, Banks, Southport, PR9 | £ 165,000 | BUY | 6 / 10 | 0.09 KM |
| Church Road, Banks, Southport, PR9 | £ 190,000 | BUY | 7 / 10 | 0.20 KM |
Nearby Properties
| Address | Price | Distance |
|---|---|---|
| 11 Charnleys Lane | £ 132,500 | 0.00 KM |
| 23 Charnleys Lane | £ 142,000 | 0.00 KM |
| 35 Charnleys Lane | £ 345,000 | 0.00 KM |
| Low Heyes Farm | £ 472,500 | 0.00 KM |
| 19 Charnleys Lane | £ 162,000 | 0.00 KM |