Avondale Road, Pontrhydyrun, NP44
By Number One Real Estate
£ 325,000
Reviews
3 out of 5 stars
Number One Real Estate says ..
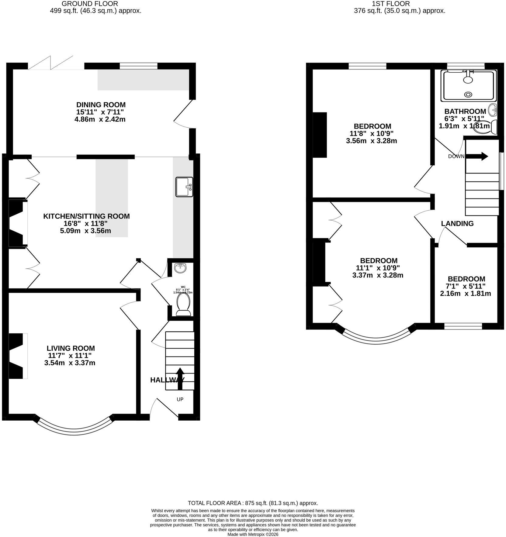
GUIDE PRICE: £325,000 - £350,000**SPACIOUS SEMI-DETACHED PROPERTY**THREE BEDROOMS**LIVING ROOM**OPEN PLAN KITCHEN/FAMILY ROOM**CLOAKROOM**SHOWER ROOM**LARGE PLOT AND GARDENS**DRIVEWAY TO FRONT**
Property Oracle says ..
This is a well-presented three-bedroom semi-detached house in Pontnewydd, Torfaen. The property benefits from a modern extension to the rear, providing additional living space. The garden is a good size and includes a patio area and a shed/outbuilding. The property is conveniently located close to local schools and transportation links. The property is in good condition and appears to be well-maintained. The asking price is slightly above the average for the street, but this is likely due to the condition and features of the property.
Therefore, we give this property 7 / 10. *Disclaimer: This is our option and does constitute a recommendation or financial advice. Do your own research. *
- Price
- 6
- Condition
- 8
- Location
- 7
- Land
- 7
- Bedrooms
- 3
- Bathrooms
- 1
The heatmap indicates the level of crime in the area. The color of the heatmap indicates the crime severity and recency.
Metrics Year-on-Year
- Average area value
- 283,000.00 £Decreased by 21.70 %
- Average area rental value
- 1,134.00 £/moIncreased by 19.24 %
- Est rental Yield
- 4.81 %Increased by 52.22 %
- Crime Rate
- 7.00 %Unchanged by 0.00 %
Agent Activity
Number One Real Estate created the listing.
Nearby Schools
| Name | Type | Ofsted | Distance |
|---|---|---|---|
| St David'S R.C. Jnr. & Inf. School | Welsh Establishment | 0.50 KM | |
| Maendy Primary School | Welsh Establishment | 1.38 KM | |
| Griffithstown Primary | Welsh Establishment | 1.76 KM | |
| Pontnewydd Primary School | Welsh Establishment | 1.87 KM | |
| Croesyceiliog School | Welsh Establishment | 2.03 KM |
Images
Nearby Streets
| Name | Average Price | Average Sqft | Distance |
|---|---|---|---|
| Avondale Crescent | £ 310,000 | 0 | 0.00 KM |
| Avondale Close | £ 0 | 0 | 0.00 KM |
| St Andrews Close | £ 269,975 | 0 | 0.00 KM |
| Lôn Gwenant | £ 0 | 0 | 0.00 KM |
| Avondale Road | £ 0 | 0 | 0.00 KM |
Nearby Transport
| Name | NLC | TLC | Distance |
|---|---|---|---|
| Cwmbran | 3738 | CWM | 1.36 KM |
| Pontypool And New Inn | 3744 | PPL | 3.28 KM |
| Newport (South Wales) | 3674 | NWP | 9.09 KM |
| Rogerstone | 9921 | ROR | 9.74 KM |
Nearby Listings
| Address | Price | Type | Score | Distance |
|---|---|---|---|---|
| Avondale Road, Pontrhydyrun, NP44 | £ 325,000 | BUY | 7 / 10 | 0.00 KM |
| Avondale Road, Pontrhydyrun, Cwmbran | £ 230,000 | BUY | Unknown | 0.01 KM |
| Avondale Road, Pontrhydyrun, Cwmbran | £ 280,000 | BUY | 7 / 10 | 0.16 KM |
| Avondale Close, Pontrhydyrun, NP44 | £ 290,000 | BUY | 6 / 10 | 0.17 KM |
| Brook Street, Pontrhydyrun, NP44 | £ 260,000 | BUY | 7 / 10 | 0.39 KM |
Nearby Properties
| Address | Price | Distance |
|---|---|---|
| 30 Avondale Road | £ 247,500 | 0.01 KM |
| 11 Avondale Road | £ 299,950 | 0.01 KM |
| 13 Avondale Road | £ 187,500 | 0.01 KM |
| 8 Avondale Road | £ 163,000 | 0.01 KM |
| 7 Avondale Road | £ 147,500 | 0.01 KM |