haart says ..
Guide Price £325,000 - £350,000! Take a look at this late 18th Century weather boarded detached cottage set in the popular semi-rural village of Weeley
Property Oracle says ..
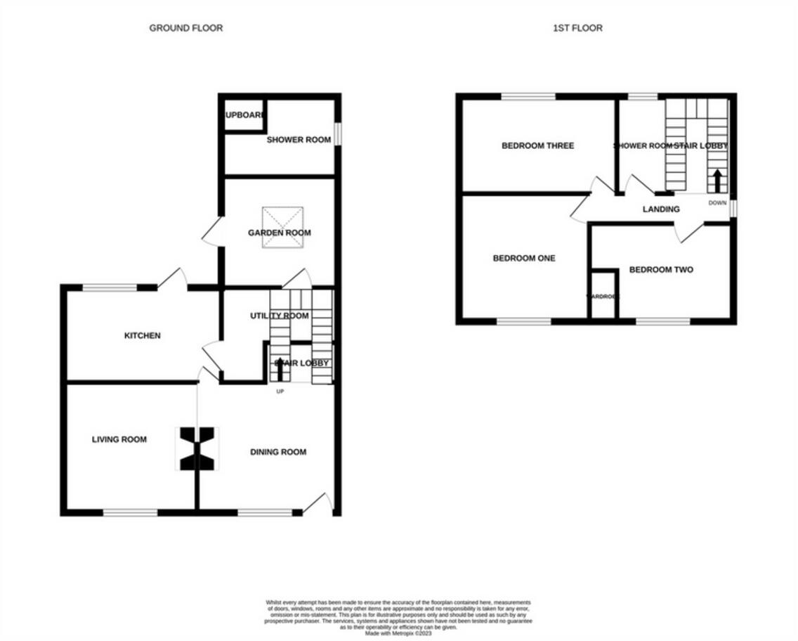
This 3-bedroom, 2-bathroom cottage located on The Street in Weeley, Essex, is a character property with charm and potential. The late 18th-century origins are reflected in features like exposed beams and a brick fireplace, adding character to the interior. The property benefits from a garden, providing outdoor space, although it may require some landscaping. The kitchen and bathroom appear to be in need of modernisation, and an overall refresh of the interior decor could be beneficial to enhance its aesthetic appeal. While Weeley provides a peaceful semi-rural setting, it’s conveniently located near Weeley train station, providing easy access to other areas of Essex. Nearby schools are a plus for families. The current asking price appears to be competitive within the local market, but potential buyers should factor in potential renovation costs when assessing its overall value.
Therefore, we give this property 6 / 10. *Disclaimer: This is our option and does constitute a recommendation or financial advice. Do your own research. *
- Price
- 7
- Condition
- 6
- Location
- 7
- Land
- 4
- Bedrooms
- 3
- Bathrooms
- 2
- Sqft (est)
- 1,000.00
The heatmap indicates the level of crime in the area. The color of the heatmap indicates the crime severity and recency.
Metrics Year-on-Year
- Average area value
- 350,323.00 £Decreased by 1.18 %
- Est sale value
- 431,000.00 £Increased by 20.73 %
- Average area rental value
- 1,334.00 £/moDecreased by 2.49 %
- Est letting value
- 1,000.00 £/moUnchanged by 0.00 %
- Est rental Yield
- 4.57 %Decreased by 1.30 %
- Crime Rate
- 55.00 %Unchanged by 0.00 %
Agent Activity
haart created the listing.
Nearby Schools
| Name | Type | Ofsted | Distance |
|---|---|---|---|
| Weeley St Andrew'S Cofe Primary School | Academy Sponsor Led | Requires improvement | 0.61 KM |
| Tendring Primary School | Community School | Good | 2.69 KM |
| Engaines Primary School And Nursery | Foundation School | Good | 4.48 KM |
| Compass Community School Essex | Other Independent Special School | 4.80 KM | |
| Rolph Church Of England Primary School And Nursery | Academy Converter | Good | 5.14 KM |
Images
Nearby Streets
| Name | Average Price | Average Sqft | Distance |
|---|---|---|---|
| Went Mews | £ 700,000 | 0 | 0.00 KM |
| Roxburghe Road | £ 1,000,000 | 0 | 0.00 KM |
| Rectory Road | £ 0 | 0 | 0.00 KM |
| Bentley Road | £ 0 | 0 | 0.00 KM |
| Hillhouse Lane | £ 0 | 0 | 0.00 KM |
Nearby Transport
| Name | NLC | TLC | Distance |
|---|---|---|---|
| Weeley | 6859 | WEE | 0.39 KM |
| Thorpe-Le-Soken | 6857 | TLS | 5.12 KM |
| Great Bentley | 6855 | GRB | 5.65 KM |
| Clacton-On-Sea | 6850 | CLT | 8.14 KM |
Nearby Listings
| Address | Price | Type | Score | Distance |
|---|---|---|---|---|
| The Street, Clacton-On-Sea | £ 325,000 | BUY | 6 / 10 | 0.00 KM |
| The Street, Weeley, Essex, CO16 | £ 350,000 | BUY | 7 / 10 | 0.05 KM |
| The Street, Weeley, Colchester, CO16 | £ 850,000 | BUY | Unknown | 0.07 KM |
| The Street, Weeley, Clacton-on-Sea | £ 150,000 | BUY | 5 / 10 | 0.07 KM |
| The Street, CO16 | £ 200,000 | BUY | 5 / 10 | 0.07 KM |
Nearby Properties
| Address | Price | Distance |
|---|---|---|
| 62 The Street | £ 145,000 | 0.03 KM |
| 63 The Street | £ 248,000 | 0.04 KM |
| 59 The Street | £ 320,000 | 0.04 KM |
| 45 The Street | £ 300,000 | 0.05 KM |
| 41 The Street | £ 280,000 | 0.05 KM |