Kelvindale Court, Kelvindale, Glasgow
RE

Kelvindale Court, Kelvindale, Glasgow

By Rettie & Co

£ 189,000

Reviews

3 out of 5 stars

Rettie & Co says ..

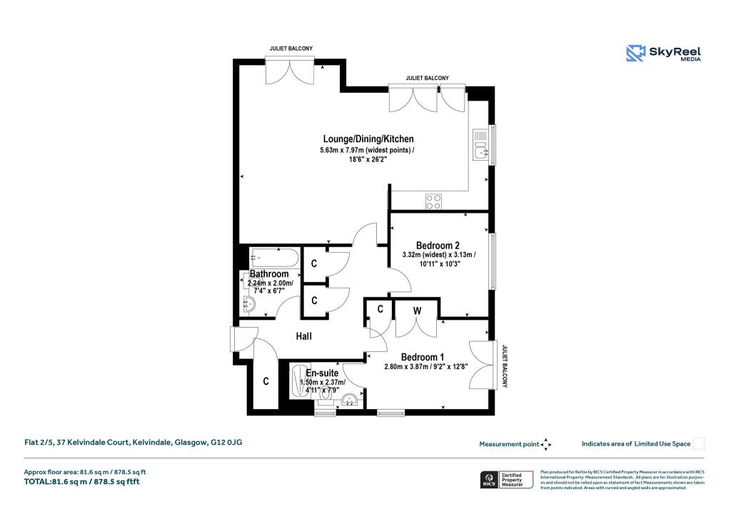
An attractive and particularly spacious two-bedroom apartment forming part of a peaceful, leafy development in the West End district of Kelvindale. This larger-style second (top) floor property enjoys a superb corner position at the quietest point of the cul-de-sac, offering excellent privacy, wo...

Property Oracle says ..

This two-bedroom apartment in Kelvindale Court, Glasgow, presents a well-maintained living space in a sought-after location. The property benefits from its proximity to green spaces like the River Kelvin and the Forth and Clyde Canal, offering residents scenic outdoor opportunities. Transport links are readily accessible, with nearby train stations providing convenient access to Glasgow city center and surrounding areas. The apartment itself appears to be in good condition, featuring modern fixtures and fittings. While the listing doesn’t specify the exact square footage, the asking price of £189,000 aligns with the average property values in the Kelvindale area, making it a competitively priced option for potential buyers. The property is listed with Rettie & Co.

Therefore, we give this property 6 / 10. *Disclaimer: This is our option and does constitute a recommendation or financial advice. Do your own research. *

Price
6
Condition
8
Location
7
Land
4
Bedrooms
2
Bathrooms
2

The heatmap indicates the level of crime in the area. The color of the heatmap indicates the crime severity and recency.

Metrics Year-on-Year

Average area value
273,565.00 £
Increased by 3.79 %
from 263,578.00 £
Average area rental value
1,350.00 £/mo
Decreased by 11.01 %
from 1,517.00 £/mo
Est rental Yield
5.92 %
Decreased by 14.33 %
from 6.91 %
Crime Rate
0.00 %
from 0.00 %

Agent Activity

  • Rettie & Co created the listing.

Images

Picture No. 02 Picture No. 38 Picture No. 30 Picture No. 08 Picture No. 09 Picture No. 10 Picture No. 11 Picture No. 12 Picture No. 13 Picture No. 21 Picture No. 14 Picture No. 05 Picture No. 15 Picture No. 16 Picture No. 17 Picture No. 18 Picture No. 19 Picture No. 07 Picture No. 20 Picture No. 22 Picture No. 23 Picture No. 24 Picture No. 25 Picture No. 26 Picture No. 06 Picture No. 04 Picture No. 28 Picture No. 29 Picture No. 31 Picture No. 03 Picture No. 01

Nearby Streets

NameAverage PriceAverage SqftDistance
Baronald Drive £ 276,25000.00 KM
Highfield Place £ 000.00 KM
Innellan Place £ 000.00 KM
Kelvindale Road £ 149,50000.00 KM
Endfield Avenue £ 000.00 KM

Nearby Transport

NameNLCTLCDistance
Maryhill9957MYH0.74 KM
Kelvindale1655KVD0.75 KM
Summerston9959SUM1.53 KM
Hyndland9845HYN1.81 KM
Anniesland9972ANL2.09 KM

Nearby Listings

AddressPriceTypeScoreDistance
Kelvindale Court, Kelvindale, Glasgow £ 189,000BUY6 / 100.00 KM
Kelvindale Court, Kelvindale £ 148,000BUY6 / 100.00 KM
0/3 8 Kelvindale Court, Kelvindale, G12 0HA £ 215,000BUY6 / 100.09 KM
Kelvindale Court, Kelvindale £ 205,000BUY6 / 100.18 KM
4 Kelvindale Court, Kelvindale, G12 £ 199,000BUYUnknown0.18 KM