Homesdale Road, Petts Wood East, Kent
Edmund Estate Agents logo

Homesdale Road, Petts Wood East, Kent

By Edmund Estate Agents

£ 1,150,000

Reviews

4 out of 5 stars

Edmund Estate Agents says ..

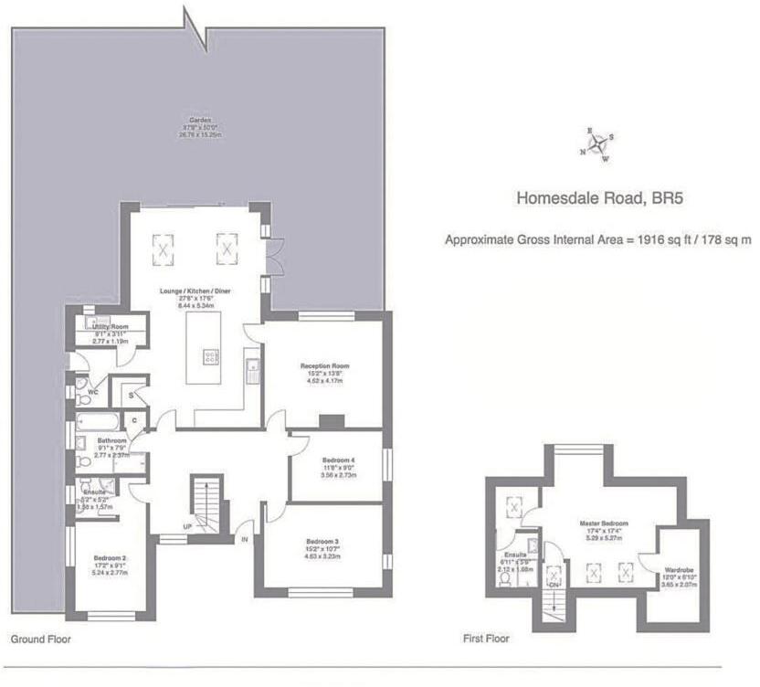
** Guide Price - £1,150,000 - £1,250,000 ** Nestled in the charming area of Petts Wood East, Kent, this delightful detached bungalow on Homesdale Road offers a perfect blend of comfort and convenience. With four spacious bedrooms, this property is ideal for families or those seeking extra sp...

Property Oracle says ..

This property is a 4 bedroom, 3 bathroom detached bungalow located in Petts Wood, Kent. The property has been recently renovated to a high standard, and benefits from a modern open-plan kitchen/diner, spacious living areas, and a large garden. The location is excellent, with good schools and transport links nearby. The asking price is high, but reflects the property’s condition, size, and location.

Therefore, we give this property 8 / 10. *Disclaimer: This is our option and does constitute a recommendation or financial advice. Do your own research. *

Price
7
Condition
10
Location
9
Land
8
Bedrooms
4
Bathrooms
3
Sqft (est)
1,707.80
Lot (est)
1,915.98

The heatmap indicates the level of crime in the area. The color of the heatmap indicates the crime severity and recency.

Metrics Year-on-Year

Average area value
702,500.00 £
Decreased by 0.79 %
from 708,075.00 £
Est sale value
934,166.60 £
Decreased by 15.59 %
from 1,106,654.40 £
Average area rental value
2,388.00 £/mo
Increased by 33.86 %
from 1,784.00 £/mo
Est letting value
1,707.80 £/mo
Unchanged by 0.00 %
from 1,707.80 £/mo
Est rental Yield
4.08 %
Increased by 35.10 %
from 3.02 %
Crime Rate
1.00 %
Unchanged by 0.00 %
from 1.00 %

Agent Activity

  • Edmund Estate Agents created the listing.

Nearby Schools

NameTypeOfstedDistance
Crofton Infant SchoolAcademy ConverterOutstanding0.51 KM
Crofton Junior SchoolAcademy ConverterOutstanding0.81 KM
Perry Hall Primary SchoolAcademy Converter1.15 KM
Tubbenden Primary SchoolAcademy ConverterGood1.95 KM
Holy Innocents Catholic Primary SchoolAcademy ConverterGood1.99 KM

Images

Rear 1.jpeg Front 1.jpeg Kitchen-Diner-1.jpeg Kitchen-Diner-5.jpeg Garden 1.jpeg Hall.jpeg Bathroom 1.jpeg Kitchen-Diner-2.jpeg Lounge 1.jpeg Bed 3.jpeg Bed 3-2.jpeg Bed 2.jpeg Bed 3-3.jpeg Ensuite 1.jpeg Kitchen-Diner-4.jpeg Lounge 2.jpeg Master Suite 2.jpeg Ensuite 2.jpeg Kitchen-Diner-3.jpeg Master Suite 1.jpeg Master Suite 3.jpeg

Nearby Streets

NameAverage PriceAverage SqftDistance
Grampian Close £ 600,00000.00 KM
Maple Close £ 000.00 KM
Branston Crescent £ 000.00 KM
Heathside £ 000.00 KM
The Maltings £ 000.00 KM

Nearby Transport

NameNLCTLCDistance
Orpington5122ORP1.17 KM
Petts Wood5123PET1.26 KM
St Mary Cray5073SMY2.80 KM
Chislehurst5099CIT3.91 KM
Chelsfield5098CLD4.02 KM

Nearby Listings

AddressPriceTypeScoreDistance
Homesdale Road, Petts Wood East, Kent £ 1,150,000BUY8 / 100.00 KM
Homesdale Road, Petts Wood, Orpington, BR5 £ 995,000BUY6 / 100.01 KM
Homesdale Road, Petts Wood, Orpington, BR5 £ 850,000BUY8 / 100.05 KM
Homesdale Road, Petts Wood, Orpington, BR5 £ 800,000BUY7 / 100.05 KM
Fairfield Road, Petts Wood East £ 750,000BUY8 / 100.07 KM

Nearby Properties

AddressPriceDistance
7b St Johns Road £ 660,0000.10 KM
9 St Johns Road £ 500,0000.10 KM
7 St Johns Road £ 950,0000.10 KM
5 St Johns Road £ 675,0000.10 KM
1b St Johns Road £ 700,0000.10 KM