Pointens says ..
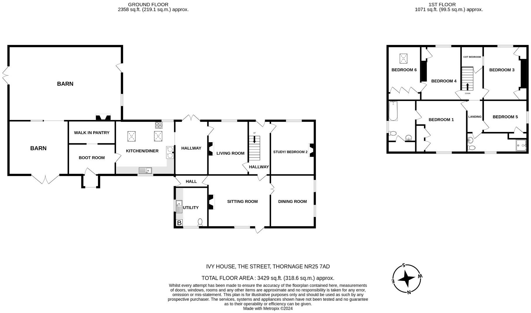
Substantial period house situated in the lee of the village church. Ivy House offers 3 reception rooms and 5 bedrooms. In addition there is a self contained detached 2 bedroom cottage and a substantial brick and flint barn, all set in grounds of around one acre (STS)
Property Oracle says ..
This seven-bedroom, three-bathroom property in Thornage, North Norfolk, presents a compelling blend of period charm and rural tranquility. Nestled in the village near the church, the house is a substantial example of traditional architecture. The images reveal features indicative of a period property, including exposed beams and fireplaces. The kitchen is particularly noteworthy, with both rustic charm and adequate modern appliances. While the property’s condition is generally sound and well-maintained, a modernizing touch in some areas might enhance its overall appeal. The large garden area, with space for relaxation and outdoor activities, represents a considerable asset. While nearby transportation options appear limited, the property’s location is advantageous for those seeking a peaceful, rural lifestyle within reasonable proximity to the amenities of the nearby Georgian market town of Holt. The schools are within a reasonable driving distance, although the distance may be a consideration for families. The list price of £900,000 seems reasonable in the context of similar, larger properties in the area, although further data for accurate price-per-square-foot calculations would help provide better insight into its true value compared to other similar properties in the same area.
Therefore, we give this property 6 / 10. *Disclaimer: This is our option and does constitute a recommendation or financial advice. Do your own research. *
- Price
- 7
- Condition
- 6
- Location
- 6
- Land
- 7
- Bedrooms
- 7
- Bathrooms
- 3
- Sqft (est)
- 3,429.00
The heatmap indicates the level of crime in the area. The color of the heatmap indicates the crime severity and recency.
Metrics Year-on-Year
- Average area value
- 380,000.00 £Increased by 23.95 %
- Est sale value
- 1,323,594.00 £Decreased by 7.66 %
- Average area rental value
- 1,175.00 £/moIncreased by 19.90 %
- Est letting value
- 3,429.00 £/moUnchanged by 0.00 %
- Est rental Yield
- 3.71 %Decreased by 3.39 %
- Crime Rate
- 273.00 %Unchanged by 0.00 %
Agent Activity
Pointens created the listing.
Nearby Schools
| Name | Type | Ofsted | Distance |
|---|---|---|---|
| Astley Primary School | Academy Converter | 3.13 KM | |
| Holt Community Primary School | Community School | Good | 5.11 KM |
| Corpusty And Holt Area Children'S Centre | Children's Centre | 6.11 KM | |
| Gresham'S School | Other Independent School | 7.11 KM | |
| Blakeney Church Of England Voluntary Aided Primary School | Voluntary Aided School | Good | 7.90 KM |
Images
Nearby Listings
| Address | Price | Type | Score | Distance |
|---|---|---|---|---|
| The Street, Thornage, Holt | £ 305,000 | BUY | 7 / 10 | 0.00 KM |
| The Street, Thornage | £ 900,000 | BUY | 6 / 10 | 0.00 KM |
| The Street, Thornage | £ 220,000 | BUY | 6 / 10 | 0.02 KM |
| 2 Miles, Holt | £ 675,000 | BUY | Unknown | 0.23 KM |
| The Street, Thornage | £ 270,000 | BUY | Unknown | 0.29 KM |
Nearby Properties
| Address | Price | Distance |
|---|---|---|
| Glaven House | £ 290,000 | 0.00 KM |
| Owl Cottage | £ 250,000 | 0.00 KM |
| Kendal House | £ 209,000 | 0.00 KM |
| Bridge House | £ 460,000 | 0.00 KM |
| The Mill | £ 470,000 | 0.00 KM |