Landstones says ..
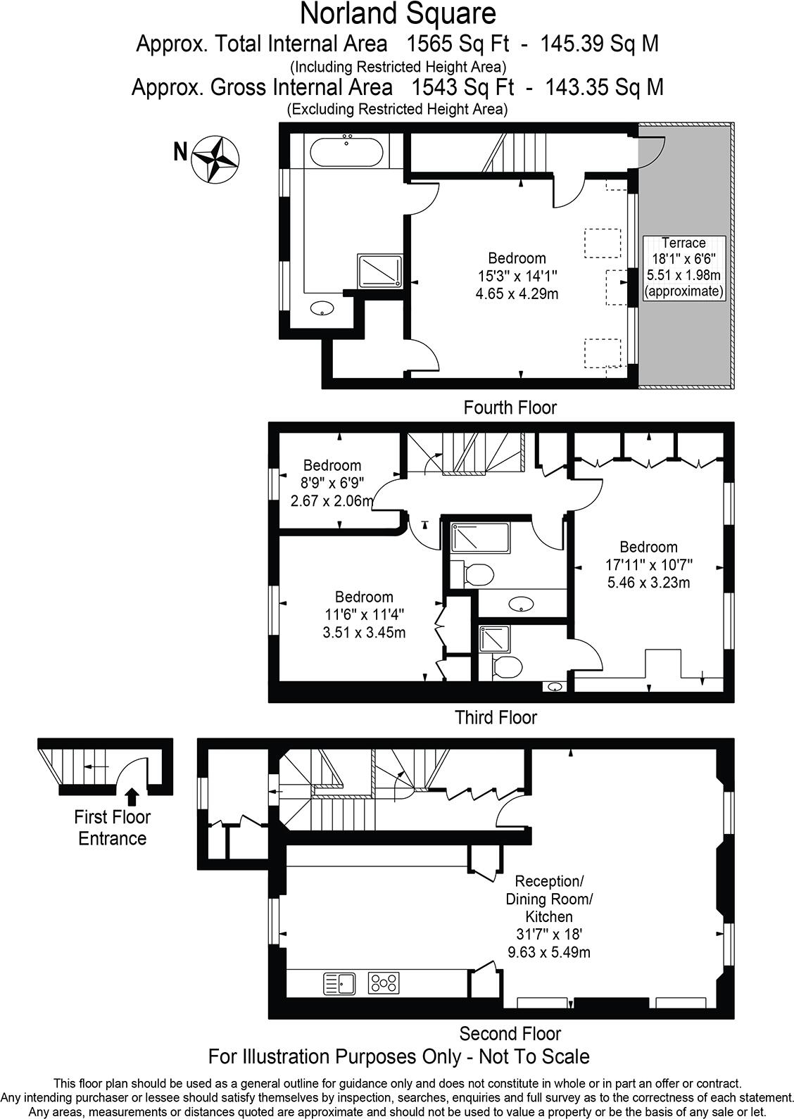
Landstones are proud to offer for sale this stunning 4 bedroom triplex apartment overlooking one of Notting Hill's most prestigious communal garden squares.
Property Oracle says ..
Therefore, we give this property 7 / 10. *Disclaimer: This is our option and does constitute a recommendation or financial advice. Do your own research. *
- Price
- 8
- Condition
- 8
- Location
- 9
- Land
- 6
- Bedrooms
- 4
- Bathrooms
- 3
- Sqft (est)
- 1,564.97
The heatmap indicates the level of crime in the area. The color of the heatmap indicates the crime severity and recency.
Metrics Year-on-Year
- Average area value
- 2,325,063.00 £Decreased by 8.52 %
- Est sale value
- 2,841,985.52 £Decreased by 7.30 %
- Average area rental value
- 4,081.00 £/moIncreased by 2.46 %
- Est letting value
- 4,694.91 £/moUnchanged by 0.00 %
- Est rental Yield
- 2.11 %Increased by 12.23 %
- Crime Rate
- 3.00 %Unchanged by 0.00 %
from 2,541,489.00 £
from 3,065,776.23 £
from 3,983.00 £/mo
from 4,694.91 £/mo
from 1.88 %
from 3.00 %
Agent Activity
Landstones created the listing.
Nearby Schools
| Name | Type | Ofsted | Distance |
|---|---|---|---|
| Sial | Other Independent School | Good | 0.17 KM |
| St Clement And St James Cofe Primary School | Voluntary Aided School | Good | 0.18 KM |
| Norland Place School | Other Independent School | 0.19 KM | |
| The Cardinal Vaughan Memorial Rc School | Academy Converter | 0.43 KM | |
| Tabernacle School | Other Independent School | Good | 0.46 KM |
Images
Nearby Streets
| Name | Average Price | Average Sqft | Distance |
|---|---|---|---|
| Royal Crescent | £ 895,000 | 0 | 0.00 KM |
| Clarendon Cross | £ 3,650,000 | 0 | 0.00 KM |
| Rosmead Road | £ 0 | 0 | 0.00 KM |
| St Anns Road | £ 950,000 | 0 | 0.00 KM |
| Runcorn Place | £ 750,000 | 0 | 0.00 KM |
Nearby Transport
| Name | NLC | TLC | Distance |
|---|---|---|---|
| Shepherd'S Bush | 9587 | SPB | 0.80 KM |
| Kensington (Olympia) | 3092 | KPA | 1.08 KM |
| West Brompton | 8875 | WBP | 2.84 KM |
| Kensal Green | 1447 | KNL | 3.00 KM |
| Queens Park (London) | 1419 | QPW | 3.00 KM |
Nearby Listings
| Address | Price | Type | Score | Distance |
|---|---|---|---|---|
| Norland Square, W11 | £ 2,550,000 | BUY | 7 / 10 | 0.00 KM |
| Norland Square, W11 | £ 2,395,000 | BUY | Unknown | 0.00 KM |
| Norland Square, Notting Hill, London, W11, United Kingdom | £ 7,750,000 | BUY | 7 / 10 | 0.01 KM |
| Norland Square, Holland Park, W11 | £ 7,000,000 | BUY | 7 / 10 | 0.04 KM |
| Norland Square, London, W11 | £ 1,075,000 | BUY | 8 / 10 | 0.07 KM |
Nearby Properties
| Address | Price | Distance |
|---|---|---|
| 20 Norland Square | £ 465,000 | 0.02 KM |
| 22b Norland Square | £ 2,675,000 | 0.02 KM |
| 19 Norland Square | £ 5,600,000 | 0.02 KM |
| 32 Norland Square | £ 6,150,000 | 0.02 KM |
| 3 Christophers Mews | £ 440,000 | 0.08 KM |