Chyngton Lane North, Seaford
RO

Chyngton Lane North, Seaford

By Rowland Gorringe

£ 825,000

Reviews

3 out of 5 stars

Rowland Gorringe says ..

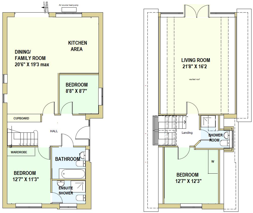
A light and deceptively spacious 3 bedroom, 2 reception room detached new build (2025) detached house boasting stunning countryside views. This 2025 brick built contemporary detached house is one of two recently built by Si-Homes, a well renowned local builder. Built to a high specification throu...

Property Oracle says ..

Therefore, we give this property 7 / 10. *Disclaimer: This is our option and does constitute a recommendation or financial advice. Do your own research. *

Price
6
Condition
9
Location
8
Land
7
Bedrooms
3
Bathrooms
3
Sqft (est)
1,632.09

The heatmap indicates the level of crime in the area. The color of the heatmap indicates the crime severity and recency.

Metrics Year-on-Year

Average area value
515,000.00 £
Increased by 6.81 %
from 482,144.00 £
Est sale value
682,213.62 £
Increased by 6.09 %
from 643,043.46 £
Average area rental value
1,750.00 £/mo
Decreased by 2.78 %
from 1,800.00 £/mo
Est letting value
1,632.09 £/mo
Unchanged by 0.00 %
from 1,632.09 £/mo
Est rental Yield
4.08 %
Decreased by 8.93 %
from 4.48 %
Crime Rate
1.00 %
Unchanged by 0.00 %
from 1.00 %

Agent Activity

  • Rowland Gorringe created the listing.

Nearby Schools

NameTypeOfstedDistance
Cuckmere House SchoolAcademy Special ConverterOutstanding0.41 KM
Chyngton SchoolCommunity SchoolGood0.84 KM
Seaford Head SchoolAcademy ConverterOutstanding1.63 KM
Annecy Catholic Primary SchoolAcademy Converter2.12 KM
Cradle Hill Community Primary SchoolCommunity SchoolGood2.29 KM

Images

Front Front Rear View View Living Room Family Room Kitchen Open Plan Bathroom Shower Room Rear View Bedroom Patio Family Room Kitchen Bedroom View Bedroom Bedroom Front Front Over Head Rear Vaulted Living Room Vaulted Living Room Vaulted Living Room Kitchen Area Kitchen Area Finish kitchen Finish Open Plan Open Plan Family Room Family room Open Plan Living Bedroom Bedroom Bedroom Bedroom Ensuite Shower/WC First Floor Shower Room/WC Ensuite Shower Bathroom Bath Hall Hall View Over Head

Nearby Streets

NameAverage PriceAverage SqftDistance
Elm Close £ 675,00000.00 KM
Mark Close £ 750,00000.00 KM
May Avenue £ 525,00000.00 KM
Field Close £ 672,50000.00 KM
Berry Lane £ 000.00 KM

Nearby Transport

NameNLCTLCDistance
Seaford (Sussex)5333SEF3.53 KM
Bishopstone (Sussex)5402BIP5.47 KM
Berwick (Sussex)5323BRK8.16 KM
Newhaven Harbour5330NVH8.66 KM
Newhaven Town5331NVN8.79 KM

Nearby Listings

AddressPriceTypeScoreDistance
Chyngton Lane North, Seaford £ 825,000BUY7 / 100.00 KM
Chyngton Lane North, Seaford £ 475,000BUY6 / 100.03 KM
Brass Point, Chyngton Lane North, Seaford £ 775,000BUYUnknown0.03 KM
Chyngton Lane North, Seaford £ 775,000BUY7 / 100.03 KM
Chyngton Lane North, Seaford £ 775,000BUY9 / 100.04 KM

Nearby Properties

AddressPriceDistance
11 Chyngton Lane North £ 232,0000.03 KM
Chyngton Abbas £ 353,0000.03 KM
Windover £ 310,0000.03 KM
7 Stonewood Close £ 314,1400.09 KM
151 Chyngton Lane £ 250,0000.09 KM