Frestons says ..
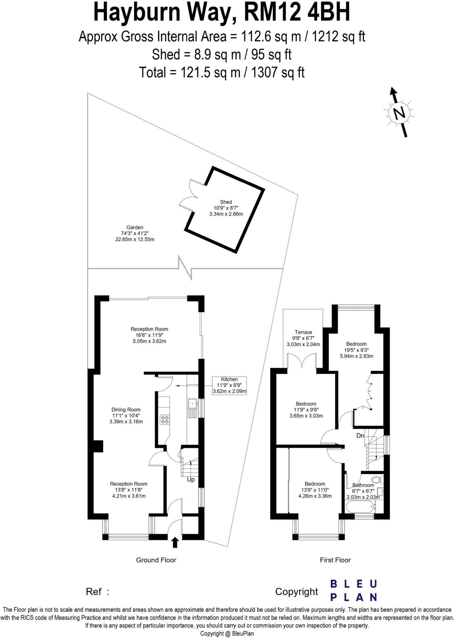
Frestons are delighted to present this exceptional three bedroom house in Hornchurch, RM12.
Property Oracle says ..
Therefore, we give this property 6 / 10. *Disclaimer: This is our option and does constitute a recommendation or financial advice. Do your own research. *
- Price
- 6
- Condition
- 6
- Location
- 7
- Land
- 7
- Bedrooms
- 3
- Bathrooms
- 1
The heatmap indicates the level of crime in the area. The color of the heatmap indicates the crime severity and recency.
Metrics Year-on-Year
- Average area value
- 430,989.00 £Increased by 6.80 %
- Average area rental value
- 1,439.00 £/moIncreased by 15.21 %
- Est rental Yield
- 4.01 %Increased by 8.09 %
- Crime Rate
- 3.00 %Unchanged by 0.00 %
from 403,536.00 £
from 1,249.00 £/mo
from 3.71 %
from 3.00 %
Agent Activity
Frestons created the listing.
Nearby Schools
| Name | Type | Ofsted | Distance |
|---|---|---|---|
| Harrow Lodge Primary School | Academy Sponsor Led | 0.34 KM | |
| St Mary'S Catholic Primary School | Voluntary Aided School | Good | 0.66 KM |
| Hylands Primary School | Community School | Good | 1.17 KM |
| Hornchurch High School | Academy Converter | Good | 1.27 KM |
| The Bridge | Other Independent Special School | Good | 1.37 KM |
Images
Nearby Streets
| Name | Average Price | Average Sqft | Distance |
|---|---|---|---|
| Roneo Corner | £ 0 | 0 | 0.00 KM |
| Longfield Avenue | £ 400,000 | 0 | 0.00 KM |
| Rom Valley Way | £ 0 | 0 | 0.00 KM |
| Turner Road | £ 220,000 | 0 | 0.00 KM |
| Hillcrest Road | £ 500,000 | 0 | 0.00 KM |
Nearby Transport
| Name | NLC | TLC | Distance |
|---|---|---|---|
| Romford | 6886 | RMF | 1.44 KM |
| Gidea Park | 6877 | GDP | 2.63 KM |
| Emerson Park | 7473 | EMP | 3.33 KM |
| Rainham (Essex) | 7454 | RNM | 5.26 KM |
| Harold Wood | 6879 | HRO | 5.71 KM |
Nearby Listings
| Address | Price | Type | Score | Distance |
|---|---|---|---|---|
| Hayburn Way, Hornchurch | £ 500,000 | BUY | 6 / 10 | 0.00 KM |
| Hayburn Way, Hornchurch, RM12 | £ 500,000 | BUY | 7 / 10 | 0.04 KM |
| Boss Close, Hornchurch | £ 500,000 | BUY | 7 / 10 | 0.09 KM |
| Hornchurch Road, Hornchurch, RM12 | £ 485,000 | BUY | 6 / 10 | 0.12 KM |
| Strathmore Gardens, Hornchurch | £ 525,000 | BUY | 6 / 10 | 0.14 KM |
Nearby Properties
| Address | Price | Distance |
|---|---|---|
| 19 Hayburn Way | £ 367,995 | 0.00 KM |
| 36 Hayburn Way | £ 231,000 | 0.00 KM |
| 26 Hayburn Way | £ 205,000 | 0.00 KM |
| 18 Hayburn Way | £ 232,000 | 0.00 KM |
| 2 Hayburn Way | £ 490,000 | 0.00 KM |