Andrew Pearce says ..
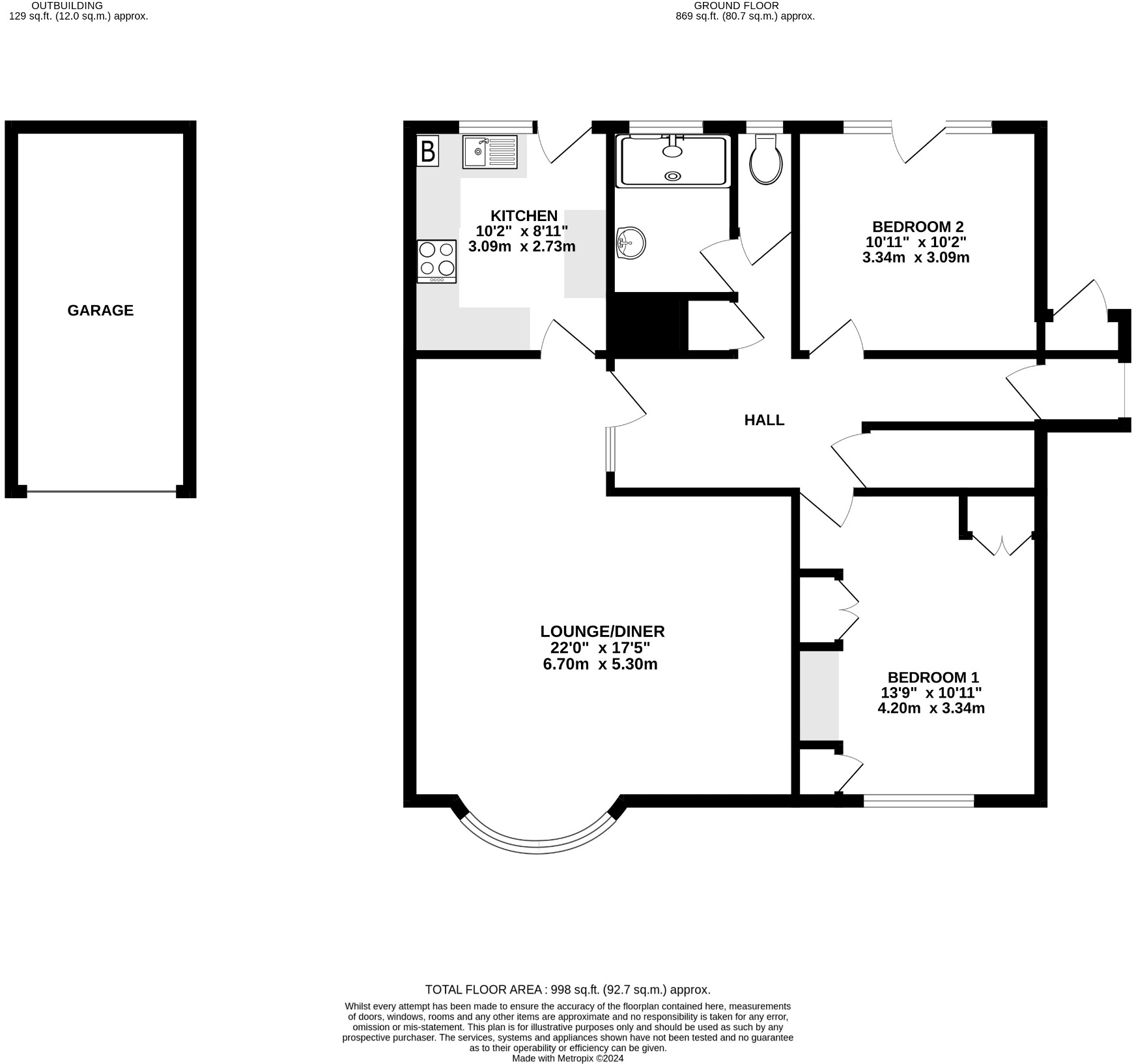
Situated within one of the most sought after developments in Pinner, is this luxury two bedroom ground floor apartment. Particular highlights of this property is the larger than average internal accommodation, garage in block and no upper chain.
Property Oracle says ..
This property is a two-bedroom maisonette located in Pinner, Harrow. The location benefits from being close to several highly-rated schools, including Grimsdyke School and West Lodge Primary School, both with outstanding Ofsted ratings. Transportation links are also relatively convenient, with several Overground stations within a reasonable distance. The property itself appears to be in good condition, although some updating might enhance its overall appeal. The images suggest a traditional style with some modernisation. The lack of plot size information makes it difficult to assess the land aspect. Considering the average property price in the area is significantly higher than the listing price, and given the property’s condition and location, the asking price of £499,950 could be considered reasonable, especially when compared to similar properties in the vicinity. However, a lack of information regarding the property’s square footage and plot size makes a definitive judgment difficult.
Therefore, we give this property 6 / 10. *Disclaimer: This is our option and does constitute a recommendation or financial advice. Do your own research. *
- Price
- 8
- Condition
- 7
- Location
- 8
- Land
- 3
- Bedrooms
- 2
- Bathrooms
- 0
- Sqft (est)
- 997.81
The heatmap indicates the level of crime in the area. The color of the heatmap indicates the crime severity and recency.
Metrics Year-on-Year
- Average area value
- 779,369.00 £Increased by 6.50 %
- Est sale value
- 594,694.76 £Increased by 8.17 %
- Average area rental value
- 2,356.00 £/moIncreased by 14.98 %
- Est letting value
- 997.81 £/moUnchanged by 0.00 %
- Est rental Yield
- 3.63 %Increased by 8.04 %
- Crime Rate
- 3.00 %Unchanged by 0.00 %
Agent Activity
Andrew Pearce created the listing.
Nearby Schools
| Name | Type | Ofsted | Distance |
|---|---|---|---|
| Reddiford School | Other Independent School | 1.21 KM | |
| Grimsdyke School | Community School | Outstanding | 1.29 KM |
| West Lodge Primary School | Community School | Outstanding | 1.36 KM |
| Pinner Wood | Children's Centre Linked Site | 1.65 KM | |
| Pinner Wood School | Community School | Outstanding | 1.72 KM |
Images
Nearby Streets
| Name | Average Price | Average Sqft | Distance |
|---|---|---|---|
| Old Hall Drive | £ 1,575,000 | 0 | 0.00 KM |
| Cherry Court | £ 230,000 | 0 | 0.00 KM |
| Seymour Close | £ 1,422,500 | 0 | 0.00 KM |
| Wessex Drive | £ 0 | 0 | 0.00 KM |
| Beechengrove | £ 1,475,000 | 0 | 0.00 KM |
Nearby Transport
| Name | NLC | TLC | Distance |
|---|---|---|---|
| Hatch End | 1398 | HTE | 1.60 KM |
| Headstone Lane | 1434 | HDL | 2.58 KM |
| Carpenders Park | 1442 | CPK | 3.07 KM |
| Bushey | 1395 | BSH | 4.97 KM |
| Harrow And Wealdstone | 1397 | HRW | 5.18 KM |
Nearby Listings
| Address | Price | Type | Score | Distance |
|---|---|---|---|---|
| Barrowdene Close, Pinner | £ 499,950 | BUY | 6 / 10 | 0.00 KM |
| Little Orchard Close, Pinner | £ 450,000 | BUY | 5 / 10 | 0.04 KM |
| Little Orchard Close, Pinner | £ 550,000 | BUY | 6 / 10 | 0.04 KM |
| Little Orchard Close, Pinner | £ 450,000 | BUY | 5 / 10 | 0.04 KM |
| Barrowdene Close, Pinner | £ 499,950 | BUY | 6 / 10 | 0.05 KM |
Nearby Properties
| Address | Price | Distance |
|---|---|---|
| 11 Little Orchard Close | £ 480,000 | 0.04 KM |
| 1 Little Orchard Close | £ 250,000 | 0.04 KM |
| 7 Little Orchard Close | £ 450,000 | 0.04 KM |
| 6 Little Orchard Close | £ 267,000 | 0.04 KM |
| 18 Barrowdene Close | £ 448,000 | 0.05 KM |