Andrew Pearce says ..
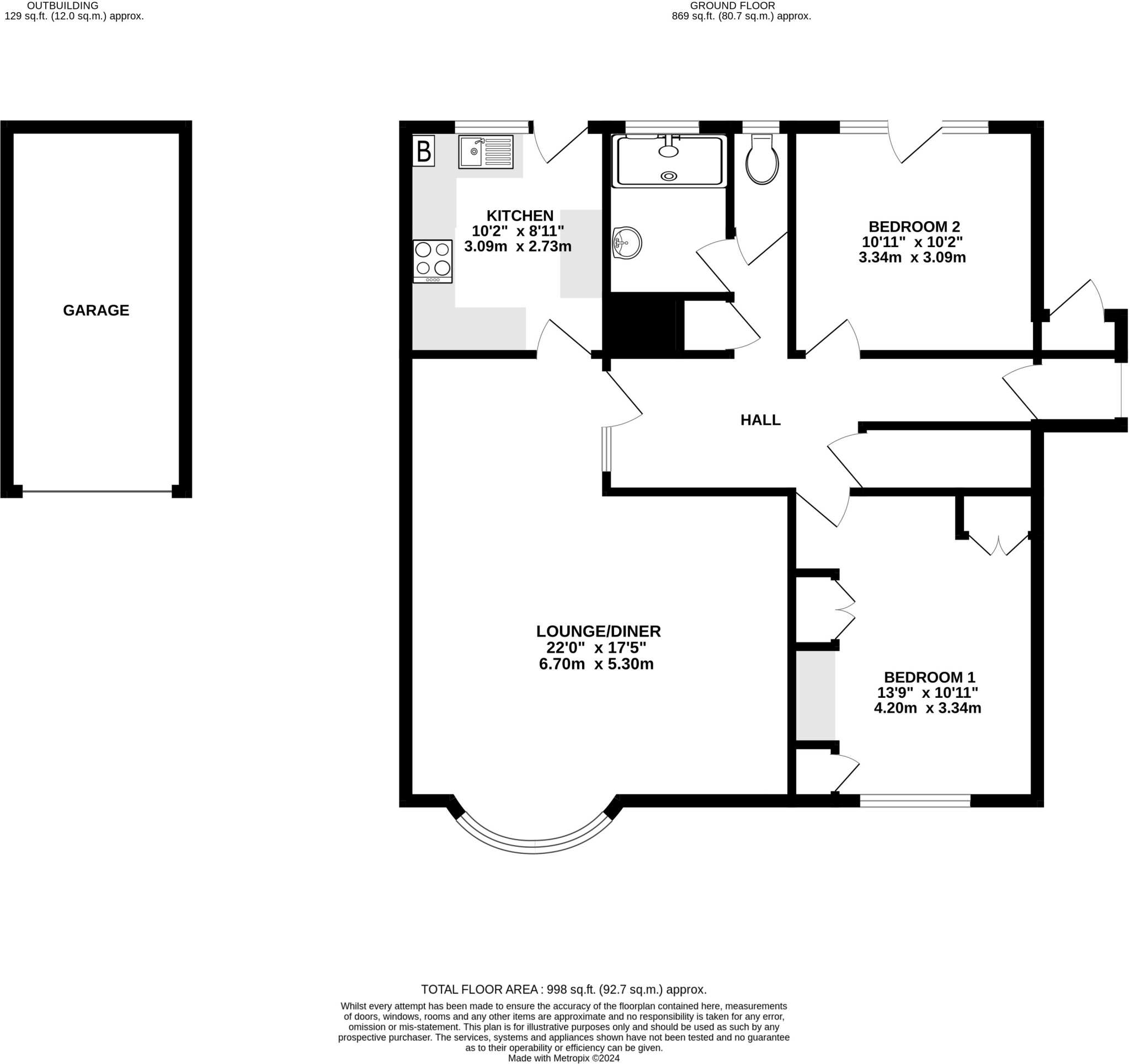
Situated within one of the most sought after developments in Pinner, is this luxury two bedroom ground floor apartment. Particular highlights of this property is the larger than average internal accommodation, garage in block and no upper chain.
Property Oracle says ..
This two-bedroom property in Barrowdene Close, Pinner, offers a comfortable living space in a desirable location. The property’s interior is presented in a functional but dated style, suggesting potential for modernisation to enhance its aesthetic appeal and market value. The photos reveal a reasonably well-maintained property with a communal garden area, although the lack of private outdoor space might be a drawback for some buyers. The location in Pinner benefits from its proximity to well-regarded schools and transport links, although the exact distance to these amenities is not specified. The price point of £499,950 appears relatively competitive within the context of the limited local comparable data available, though additional market research would be needed to fully assess its value. Potential buyers should weigh the need for modernisation against the property’s location and current condition to determine its suitability and value.
Therefore, we give this property 6 / 10. *Disclaimer: This is our option and does constitute a recommendation or financial advice. Do your own research. *
- Price
- 7
- Condition
- 6
- Location
- 7
- Land
- 4
- Bedrooms
- 2
- Bathrooms
- 0
- Sqft (est)
- 997.81
The heatmap indicates the level of crime in the area. The color of the heatmap indicates the crime severity and recency.
Metrics Year-on-Year
- Average area value
- 779,369.00 £Increased by 6.50 %
- Est sale value
- 594,694.76 £Increased by 8.17 %
- Average area rental value
- 2,356.00 £/moIncreased by 14.98 %
- Est letting value
- 997.81 £/moUnchanged by 0.00 %
- Est rental Yield
- 3.63 %Increased by 8.04 %
- Crime Rate
- 3.00 %Unchanged by 0.00 %
Agent Activity
Andrew Pearce created the listing.
Nearby Schools
| Name | Type | Ofsted | Distance |
|---|---|---|---|
| Reddiford School | Other Independent School | 1.16 KM | |
| West Lodge Primary School | Community School | Outstanding | 1.31 KM |
| Grimsdyke School | Community School | Outstanding | 1.34 KM |
| Pinner Wood | Children's Centre Linked Site | 1.64 KM | |
| Pinner Wood School | Community School | Outstanding | 1.72 KM |
Images
Nearby Streets
| Name | Average Price | Average Sqft | Distance |
|---|---|---|---|
| Old Hall Drive | £ 1,575,000 | 0 | 0.00 KM |
| Cherry Court | £ 230,000 | 0 | 0.00 KM |
| Seymour Close | £ 1,422,500 | 0 | 0.00 KM |
| Station Approach | £ 0 | 0 | 0.00 KM |
| Beechengrove | £ 1,475,000 | 0 | 0.00 KM |
Nearby Transport
| Name | NLC | TLC | Distance |
|---|---|---|---|
| Hatch End | 1398 | HTE | 1.64 KM |
| Headstone Lane | 1434 | HDL | 2.60 KM |
| Carpenders Park | 1442 | CPK | 3.11 KM |
| Bushey | 1395 | BSH | 5.02 KM |
| Harrow And Wealdstone | 1397 | HRW | 5.19 KM |
Nearby Listings
| Address | Price | Type | Score | Distance |
|---|---|---|---|---|
| Barrowdene Close, Pinner | £ 499,950 | BUY | 6 / 10 | 0.00 KM |
| Barrowdene Close, Pinner | £ 499,950 | BUY | 6 / 10 | 0.05 KM |
| Little Orchard Close, Pinner, Middlesex | £ 475,000 | BUY | 6 / 10 | 0.09 KM |
| Little Orchard Close, Pinner | £ 550,000 | BUY | 6 / 10 | 0.09 KM |
| Little Orchard Close, Pinner | £ 450,000 | BUY | 5 / 10 | 0.09 KM |
Nearby Properties
| Address | Price | Distance |
|---|---|---|
| 4 Barrowdene Close | £ 282,000 | 0.00 KM |
| 29 Barrowdene Close | £ 450,000 | 0.00 KM |
| 3 Barrowdene Close | £ 495,000 | 0.00 KM |
| 24 Barrowdene Close | £ 375,990 | 0.00 KM |
| 7 Barrowdene Close | £ 355,000 | 0.00 KM |