Nicholls Tyreman says ..
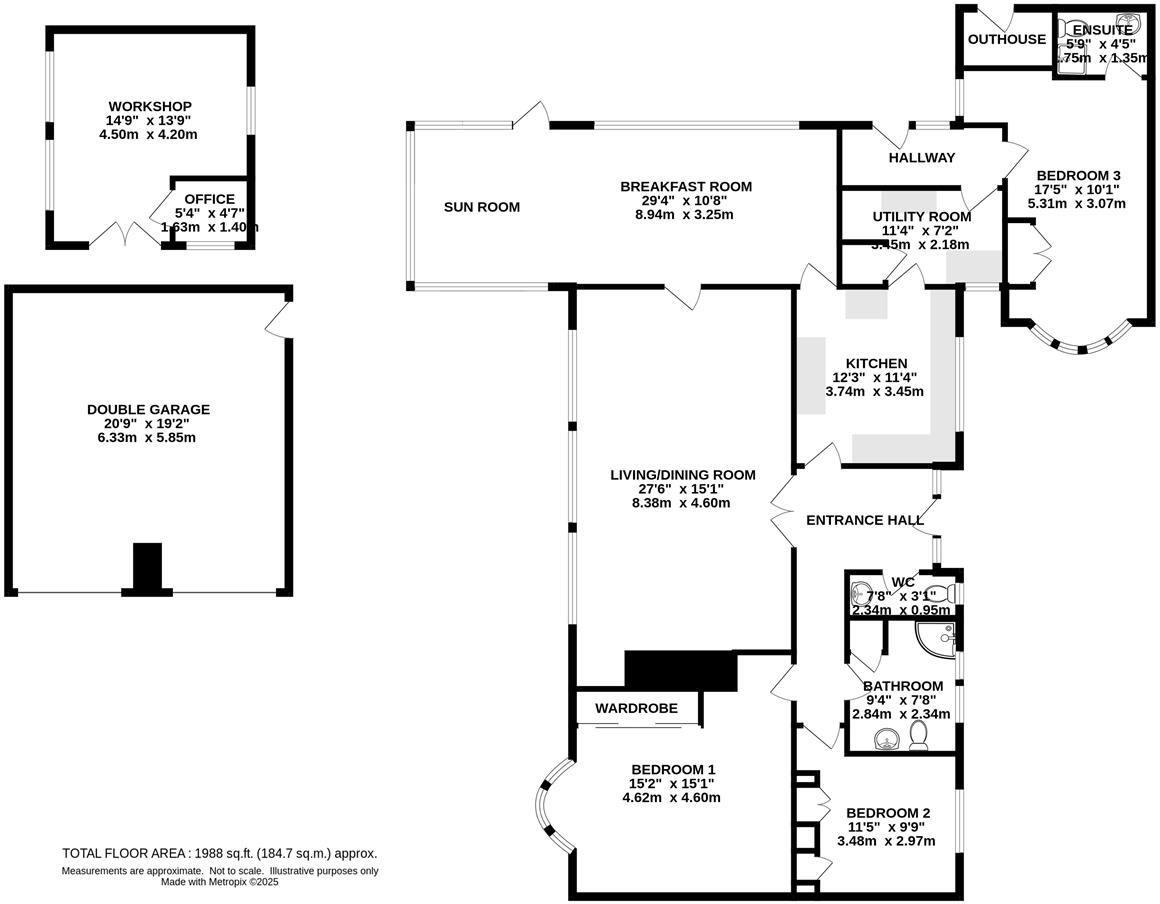
An excellent opportunity to purchase this spacious three-bedroom, detached bungalow that sits within stunning grounds and is located in a peaceful North Yorkshire village with countryside views all around. The property is a short drive from the town of Bedale and all the amenities it offers. ...
Property Oracle says ..
Therefore, we give this property 7 / 10. *Disclaimer: This is our option and does constitute a recommendation or financial advice. Do your own research. *
- Price
- 6
- Condition
- 7
- Location
- 0
- Land
- 8
- Bedrooms
- 3
- Bathrooms
- 2
- Sqft (est)
- 1,988.00
The heatmap indicates the level of crime in the area. The color of the heatmap indicates the crime severity and recency.
Metrics Year-on-Year
- Average area value
- 371,874.00 £Increased by 59.48 %
- Est sale value
- 576,520.00 £Increased by 62.01 %
- Average area rental value
- 771.00 £/moDecreased by 5.75 %
- Est letting value
- 0.00 £/mo
- Est rental Yield
- 2.49 %Decreased by 40.86 %
- Crime Rate
- 19.00 %Unchanged by 0.00 %
from 233,178.00 £
from 355,852.00 £
from 818.00 £/mo
from 0.00 £/mo
from 4.21 %
from 19.00 %
Agent Activity
Nicholls Tyreman created the listing.
Nearby Schools
| Name | Type | Ofsted | Distance |
|---|---|---|---|
| Burneston Church Of England Voluntary Aided Primary School | Voluntary Aided School | Requires improvement | 1.63 KM |
| Leeming Raf Community Primary School | Community School | Good | 5.13 KM |
| Leeming And Londonderry Community Primary School | Community School | Good | 6.29 KM |
| Pickhill Church Of England Primary School | Voluntary Controlled School | Good | 6.50 KM |
| Snape Community Primary School | Community School | Good | 6.83 KM |
Images
Nearby Streets
| Name | Average Price | Average Sqft | Distance |
|---|---|---|---|
| The Paddock | £ 0 | 0 | 0.00 KM |
| West Close | £ 550,000 | 0 | 0.00 KM |
Nearby Listings
| Address | Price | Type | Score | Distance |
|---|---|---|---|---|
| Carthorpe, Bedale | £ 650,000 | BUY | 7 / 10 | 0.00 KM |
| Carthorpe, Bedale, North Yorkshire, DL8 | £ 250,000 | BUY | 5 / 10 | 0.20 KM |
| The Orchard, Carthorpe, Bedale, DL8 2LF | £ 795,000 | BUY | 7 / 10 | 0.28 KM |
| Carthorpe, Bedale | £ 160,000 | BUY | Unknown | 0.33 KM |
| Carthorpe, Bedale, North Yorkshire | £ 825,000 | BUY | 6 / 10 | 0.38 KM |
Nearby Properties
| Address | Price | Distance |
|---|---|---|
| 3 Boston Row | £ 200,000 | 0.25 KM |
| 3 Church Wynd | £ 173,000 | 1.39 KM |
| 7 Church Wynd | £ 290,000 | 1.39 KM |
| 4 Church Wynd | £ 210,000 | 1.39 KM |
| 6 Church Wynd | £ 235,000 | 1.39 KM |