City Garden Apartment, Spinners Way, Manchester, Greater Manchester, M15
By Yours Link Limited
£ 275,000
Reviews
2 out of 5 stars
Yours Link Limited says ..
Genesis City are pleased to present this luxurious brand new apartment, located in the heart of Castlefield, Manchester, M15.City Gardens is a newly completed 9 storey building situated within the highly sought after area of Castlefield. The development benefits from a residents only roof top terr
Property Oracle says ..
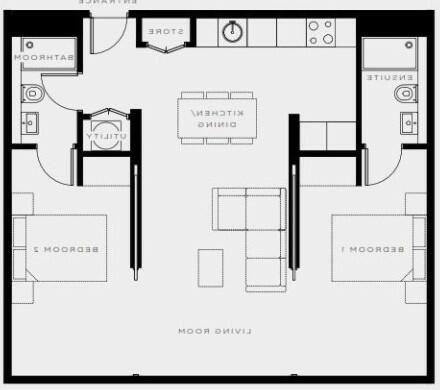
This two-bedroom, two-bathroom apartment in Manchester’s Hulme district is a modern and well-maintained property. The images show a clean, contemporary design with what appears to be new or recently renovated fixtures and fittings. The apartment’s location offers convenient access to public transport, with several train stations within a 1.12km - 2.69km radius. The surrounding area also has several well-regarded schools within walking distance, making it potentially suitable for families. While the property lacks any outdoor space, the internal layout is well-designed. The location, while functional, is not in one of Manchester’s most upscale neighbourhoods; therefore, it’s not a high-demand area. The price, while in line with nearby listings, should be evaluated against the overall condition and the relative lack of outdoor space common to city-centre apartments. The absence of plot size information from listings makes a detailed per square foot comparison challenging. However, the given price appears to be within the reasonably expected range for similar properties in the area.
Therefore, we give this property 5 / 10. *Disclaimer: This is our option and does constitute a recommendation or financial advice. Do your own research. *
- Price
- 7
- Condition
- 8
- Location
- 7
- Land
- 1
- Bedrooms
- 2
- Bathrooms
- 2
- Sqft (est)
- 710.40
The heatmap indicates the level of crime in the area. The color of the heatmap indicates the crime severity and recency.
Metrics Year-on-Year
- Average area value
- 268,192.00 £Increased by 9.79 %
- Est sale value
- 398,534.40 £Increased by 99.64 %
- Average area rental value
- 1,437.00 £/moDecreased by 10.24 %
- Est letting value
- 2,131.20 £/moIncreased by 200.00 %
- Est rental Yield
- 6.43 %Decreased by 18.19 %
- Crime Rate
- 0.00 %
Agent Activity
Yours Link Limited created the listing.
Nearby Schools
| Name | Type | Ofsted | Distance |
|---|---|---|---|
| Old Trafford Community Academy | Academy Converter | Good | 0.85 KM |
| St Wilfrid'S Rc Primary School | Voluntary Aided School | Good | 0.87 KM |
| St Alphonsus Rc Primary School | Voluntary Aided School | Outstanding | 0.92 KM |
| Afifah School | Other Independent School | Good | 1.05 KM |
| St Philip'S Cofe Primary School | Voluntary Aided School | Good | 1.24 KM |
Images
Nearby Streets
| Name | Average Price | Average Sqft | Distance |
|---|---|---|---|
| Ellesmere Street | £ 281,000 | 0 | 0.00 KM |
| Quenby Street | £ 150,000 | 0 | 0.00 KM |
| Egerton Street | £ 225,000 | 0 | 0.00 KM |
| Langholme Close | £ 180,000 | 0 | 0.00 KM |
| Egerton Street | £ 0 | 0 | 0.00 KM |
Nearby Transport
| Name | NLC | TLC | Distance |
|---|---|---|---|
| Deansgate | 2963 | DGT | 1.12 KM |
| Salford Central | 2798 | SFD | 1.46 KM |
| Manchester Oxford Road | 2966 | MCO | 2.09 KM |
| Salford Crescent | 2794 | SLD | 2.37 KM |
| Manchester Victoria | 2970 | MCV | 2.69 KM |
Nearby Listings
| Address | Price | Type | Score | Distance |
|---|---|---|---|---|
| Spinners Way, Manchester, Greater Manchester | £ 100,000 | BUY | 5 / 10 | 0.00 KM |
| 1st Floor, City Gardens, Spinners Way, Manchester, Greater Manchester, M15 | £ 230,000 | BUY | 5 / 10 | 0.00 KM |
| City Garden Apartment, Spinners Way, Manchester, Greater Manchester, M15 | £ 275,000 | BUY | 5 / 10 | 0.00 KM |
| Spinners Way, Manchester, Greater Manchester | £ 140,000 | BUY | 6 / 10 | 0.01 KM |
| Spinners Way, Manchester, Greater Manchester | £ 140,000 | BUY | 6 / 10 | 0.01 KM |
Nearby Properties
| Address | Price | Distance |
|---|---|---|
| 7 Catfield Walk | £ 135,000 | 0.08 KM |
| 4 Catfield Walk | £ 79,000 | 0.08 KM |
| 11 Kelling Walk | £ 125,000 | 0.13 KM |
| 5 Citygate | £ 154,000 | 0.32 KM |
| 2 Rosshill Walk | £ 215,000 | 0.56 KM |